Get discounts,
promos, see our
newest plans
and more!
+ 15% off any plan
See terms opt out anytime


No Thanks

Thanks for
signing up!


Use Code:

SIGNUP15

And save 15% off any plan!

Check your email for details.

CLOSE
Search Plans
Customer Reviews
     

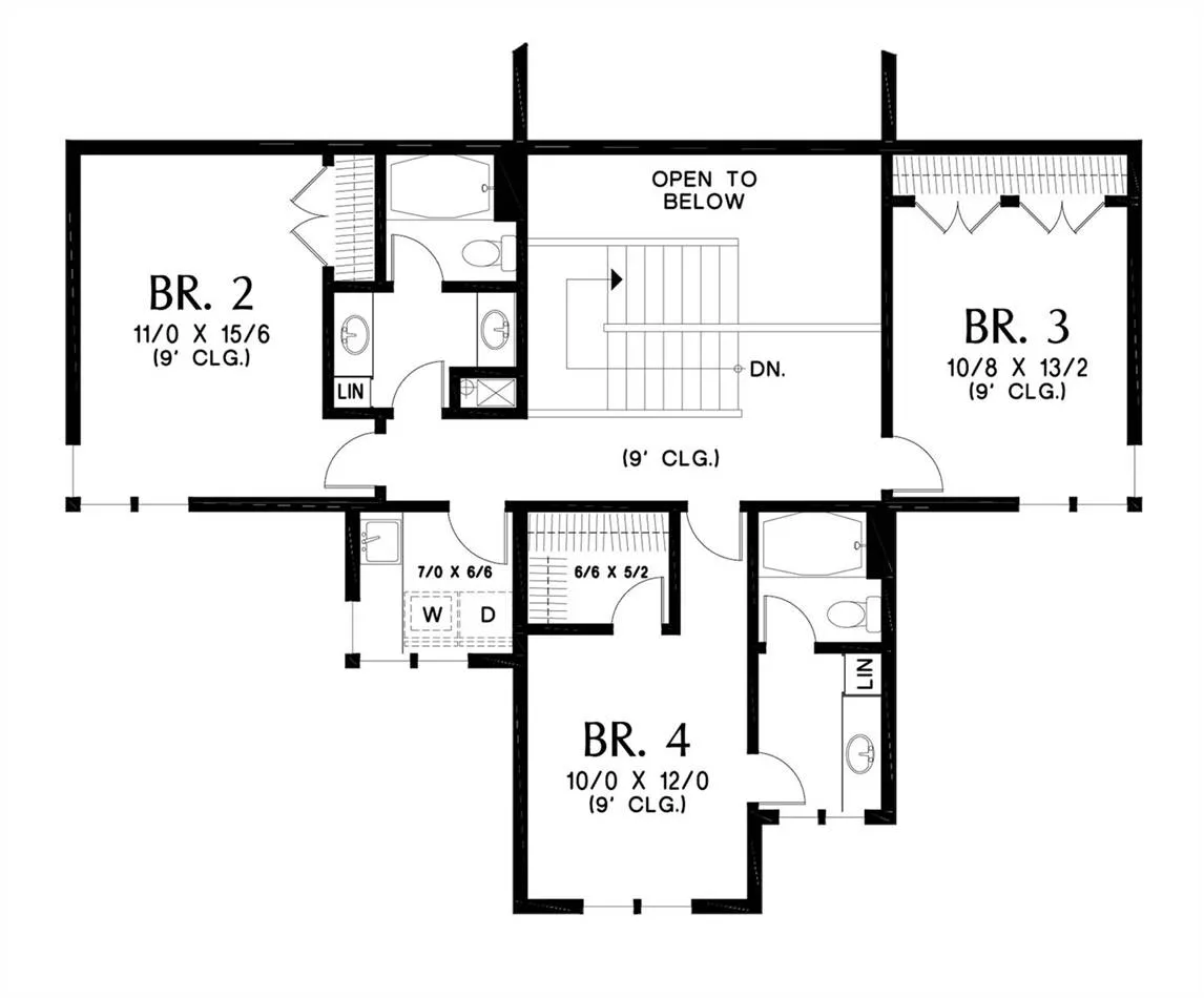
Berginville Two Story Contemporary Style House, Plan 7231

 
 

Sq Ft
2,790 FT²

Beds
4

Baths
3.5

Stories
2

Garage
2

Depth
58' 6"

Width
48'
From
$1,919.00
© copyright by designer
 View All 4 Images | Photographs may reflect modified home
Sq Ft
2,790 FT²
Beds
4
Baths
3.5
Stories
2
Garage
2
Depth
58' 6"
Width
48'
 
Click to Zoom In on Floor Plan
© copyright by designer
 
 

About This Plan

This home features an amazing contemporary charm that captures natural light at every angle amidst its 2,790 square foot floor plan. Enter this modern marvel either via the 2-car garage or the covered front porch. The garage enters into a convenient mudroom that keeps messes out of the home, while the front door swings into the foyer. A comfortable front den and formal dining room can be found at the front of the home, as is a powder room. As you move throughout the home, enjoy the open concept layout that joins the great room and breakfast nook with the island kitchen. Finally, you will love the ease that the first-floor master provides with its gorgeous spa bath and spacious walk-in closet. Upstairs, there is plenty of space for kids and guests alike, thanks to the 3 auxiliary bedrooms, two of which share a full hallway bath with dual vanities, and one that has its own en-suite, a great option for providing guests with added privacy. A second washer and dryer hookup will allow you the option to have a secondary laundry for added ease to your list of chores.

  

See All Plan Options
 

FEATURES & DETAILS

Kitchen features
Kitchen Island
Walk-in Pantry
Bedroom features
Double Vanity Sink
Primary Bdrm Main Floor
Separate Tub and Shower
Split Bedrooms
Walk-in Closet
Exterior features
Front Porch
Rear Porch
Foundation Options
Basement
Crawlspace
Slab
Additional features
Dining Room
Fireplace
Foyer
Great Room
Home Office
Laundry 1st Fl
Laundry 2nd Fl
Open Floor Plan
Garage Location
Front
Garage Options
Attached
Front-entry
2,790 Ft
2
Total Heated
1,831 Ft
2
1st Floor
959 Ft
2
2nd Floor
4
Bedrooms
3.5
Bathrooms
2
Garage
2
Stories
48' 0"
Width
58' 6"
Depth
25' 8"
Height
9-12' 0"
Main Floor Ceiling
9' 0"
Upper Floor Ceiling
2x6
Framing
Truss
Roof Framing
6/12
Primary Roof Pitch
Single
Dwelling Number

Unheated Living Space
432 Ft
2
Garage
 

Plan Package Options

 Select Plan Package
 Need To Reverse Plan? (Optional)
  Select Foundation Option
  Add-Ons (Optional)
INCLUDED WITH YOUR PURCHASE

Free Ground shipping in the U.S.

FREE

Home Building & Product Ideas Organizer

Sub Total
$0
Free Shipping
QUESTIONS OR NEED HELP ORDERING? LIVE CHAT OR CALL US AT 866-214-2242
Plan Packages

Each set of construction documents includes detailed, dimensioned floor plans, basic electric layouts, cross sections, roof details, cabinet layouts and elevations, as well as general IRC specifications. They contain virtually all of the information required to construct your home. The typical plan set does not include any plumbing, HVAC drawings, or engineering stamps due to the wide variety of specific needs, local codes, and climatic conditions. These details and specifications are easily obtained from your builder, contractors, and/or local engineers.

BEST PRICE GUARANTEE

Find the same house plan (modifications included!) and package for less on another site, show us the URL and we'll give you the difference plus an additional 10% back.

100% SATISFACTION GUARANTEE

We offer a one-time, 30-day exchange policy for unused, printed plan packages in the event you aren't satisfied with your first selection.

 
 

Plan 7231  Back to plan page

Loading...