Get discounts,
promos, see our
newest plans
and more!
+ 15% off any plan
See terms opt out anytime


No Thanks

Thanks for
signing up!


Use Code:

SIGNUP15

And save 15% off any plan!

Check your email for details.

CLOSE
Search Plans
Customer Reviews
     
15% off ALL House Plans Sitewide
15% off ALL House Plans Sitewide
15% off ALL House Plans Sitewide

Code: HONOR
Sale ends midnight 5/29/2026 PST

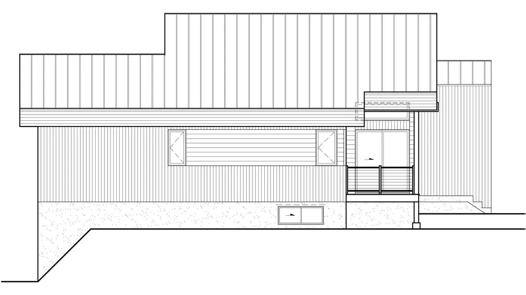
Atherstone Outdoor Living Contemporary Style House, Plan 8850

 
 

Sq Ft
1,104 FT²

Beds
2

Baths
1

Stories
1

Garage
0

Depth
48'

Width
41'
On Sale
$896.75
$1,055.00
© copyright by designer
 View All 7 Images | Photographs may reflect modified home
Sq Ft
1,104 FT²
Beds
2
Baths
1
Stories
1
Garage
0
Depth
48'
Width
41'
 
Click to Zoom In on Floor Plan
© copyright by designer
 
 

About This Plan

A distinctly urban feel surrounds this affordable contemporary plan. And with 2 bedrooms and 1.5 bathrooms plus plenty of space to grow, the design is ready for that new or growing family who wants a home with some unforgettable styles. Thanks to its slope-lot inspired design, you could easily add a full basement to double your square footage and living space throughout. Plus, the main areas that already come with the home are just as comfortable. Especially the living room and nearby kitchen, perfect for quick and easy family meals! 

See All Plan Options
 

FEATURES & DETAILS

Kitchen features
Kitchen Island
L-Shaped
Exterior features
Covered Rear Porch
Deck
Lot Options
Suited for sloping lot
Additional features
Foyer
Great Room
Laundry 1st Fl
Garage Location
None
Garage Options
None
1,104 Ft
2
Total Heated
1,104 Ft
2
1st Floor
2
Bedrooms
1
Bathrooms
0
Garage
1
Stories
41' 0"
Width
48' 0"
Depth
29' 8"
Height
10' 0"
Main Floor Ceiling
2x6
Framing
Truss
Roof Framing
4:12
Secondary Roof Pitch
Single
Dwelling Number
None
Bonus Access

Unheated Living Space
 

Plan Package Options

 Select Plan Package
 Need To Reverse Plan? (Optional)
  Select Foundation Option
  Add-Ons (Optional)
INCLUDED WITH YOUR PURCHASE

Free Ground shipping in the U.S.

FREE

Home Building & Product Ideas Organizer

Sub Total
$0
Free Shipping
Provinces of Québec and Ontario only: Purchasable options are 5 printed sets or 8 printed sets. PDF file and CAD file options are unavailable.
QUESTIONS OR NEED HELP ORDERING? LIVE CHAT OR CALL US AT 866-214-2242
Plan Packages

Each set of construction documents typically includes detailed, dimensioned floor plans, basic electric layouts, cross sections, roof details, cabinet layouts, and elevations, as well as general IRC specifications. Please refer to the ARCHITECT or DESIGNER’S PLAN DETAILS link above the floor plan on any plan page to determine the specific details for each plan. Our house plans contain virtually all of the information required to construct your home. The typical plan set does not include plumbing, HVAC drawings, or engineering stamps due to the wide variety of specific needs, local codes, and climatic conditions. These details and specifications are easily obtained from your builder, contractors, and/or local engineers.

BEST PRICE GUARANTEE

Find the same house plan (modifications included!) and package for less on another site, show us the URL and we'll give you the difference plus an additional 10% back.

100% SATISFACTION GUARANTEE

We offer a one-time, 30-day exchange policy for unused, printed plan packages in the event you aren't satisfied with your first selection.

 
 

Plan 8850  Back to plan page

Loading...