Get discounts,
promos, see our
newest plans
and more!
+ 15% off any plan
See terms opt out anytime


No Thanks

Thanks for
signing up!


Use Code:

SIGNUP15

And save 15% off any plan!

Check your email for details.

CLOSE
Search Plans
Customer Reviews
     
America’s Top Home Plans
Trusted House Plans From America's Leading Architects & Designers

Sq Ft
2,833 FT²

Beds
4

Baths
2.5

Stories
2

Garage
2

Depth
39'

Width
68'
From
$1,170.00
EXCLUSIVE PLAN
© copyright by architect
 View All 5 Images | Photographs may reflect modified home
Sq Ft
2,833 FT²
Beds
4
Baths
2.5
Stories
2
Garage
2
Depth
39'
Width
68'
 
Click to Zoom In on Floor Plan
© copyright by architect
 
 

About This Plan

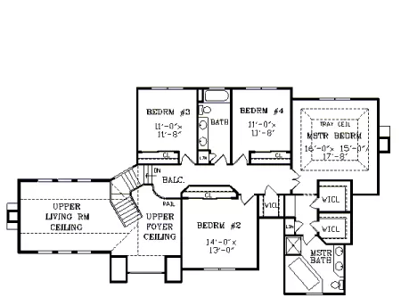
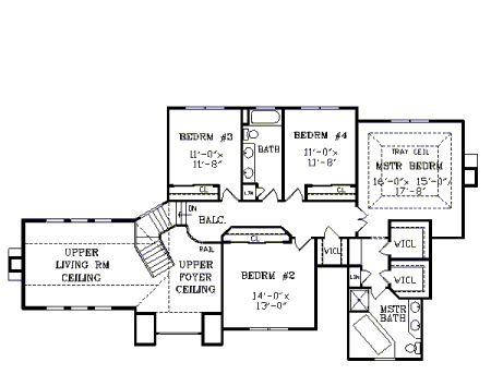
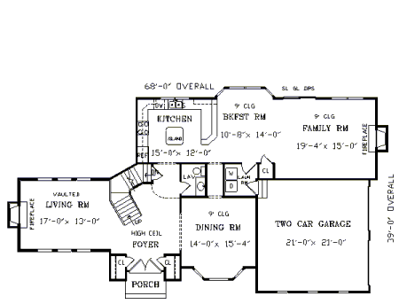
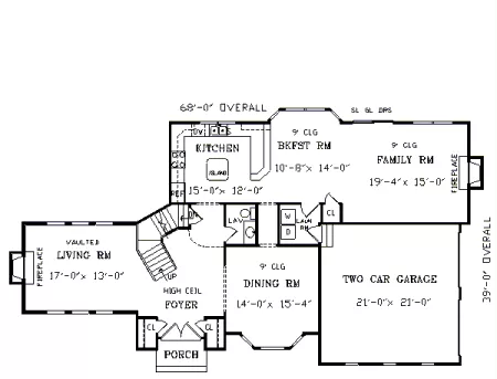
Double front doors open to foyer; vaulted living room with optional fireplace lies at left.
Island kitchen features serving bar and opens to breakfast room; family room boasts fireplace. Master suite has private bath with two walk-in closets, dual-sink vanity and whirlpool tub. Blueprints for this home include details for chimney on left side of home. 

See All Plan Options
 

FEATURES & DETAILS

Foundation Options
Basement
Crawlspace
Garage Location
Side
Garage Options
Attached
2,833 Ft
2
Total Heated
1,490 Ft
2
1st Floor
1,343 Ft
2
2nd Floor
4
Bedrooms
2.5
Bathrooms
2
Garage
2
Stories
68' 0"
Width
39' 0"
Depth
29' 4"
Height
9'-1"' 0"
Main Floor Ceiling
8'-1"' 0"
Upper Floor Ceiling
2x4
Framing
Stick
Roof Framing
12/12
Primary Roof Pitch
Single
Dwelling Number

Unheated Living Space
469 Ft
2
Garage
 

Plan Package Options

 Select Plan Package
  Select Foundation Option
  Add-Ons (Optional)
INCLUDED WITH YOUR PURCHASE

Free Ground shipping in the U.S.

FREE

Home Building & Product Ideas Organizer

Sub Total
$0
Free Shipping
QUESTIONS OR NEED HELP ORDERING? LIVE CHAT OR CALL US AT 866-214-2242
Plan Packages

Each set of construction documents typically includes detailed, dimensioned floor plans, basic electric layouts, cross sections, roof details, cabinet layouts, and elevations, as well as general IRC specifications. Please refer to the ARCHITECT or DESIGNER’S PLAN DETAILS link above the floor plan on any plan page to determine the specific details for each plan. Our house plans contain virtually all of the information required to construct your home. The typical plan set does not include plumbing, HVAC drawings, or engineering stamps due to the wide variety of specific needs, local codes, and climatic conditions. These details and specifications are easily obtained from your builder, contractors, and/or local engineers.

BEST PRICE GUARANTEE

Find the same house plan (modifications included!) and package for less on another site, show us the URL and we'll give you the difference plus an additional 10% back.

100% SATISFACTION GUARANTEE

We offer a one-time, 30-day exchange policy for unused, printed plan packages in the event you aren't satisfied with your first selection.

 
 

Plan 3378  Back to plan page

Loading...