Get discounts,
promos, see our
newest plans
and more!
+ 15% off any plan
See terms opt out anytime


No Thanks

Thanks for
signing up!


Use Code:

SIGNUP15

And save 15% off any plan!

Check your email for details.

CLOSE
Search Plans
     
20% Off House Plans Sitewide Ends Tuesday
20% Off House Plans Sitewide Ends Tuesday
20% Off House Plans Sitewide Ends Tuesday

Code: VET20
Sale ends midnight 11/11/2025 PST

Altair Contemporary Style House, Plan 7458

 
 

Sq Ft
3,668 FT²

Beds
4

Baths
4

Stories
3

Garage
2

Depth
64'

Width
36'
On Sale
$1,920.00
$2,400.00
© copyright by designer
 View All 26 Images | Photographs may reflect modified home
Sq Ft
3,668 FT²
Beds
4
Baths
4
Stories
3
Garage
2
Depth
64'
Width
36'
 
Click to Zoom In on Floor Plan
© copyright by designer
 
 

About This Plan

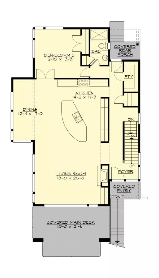
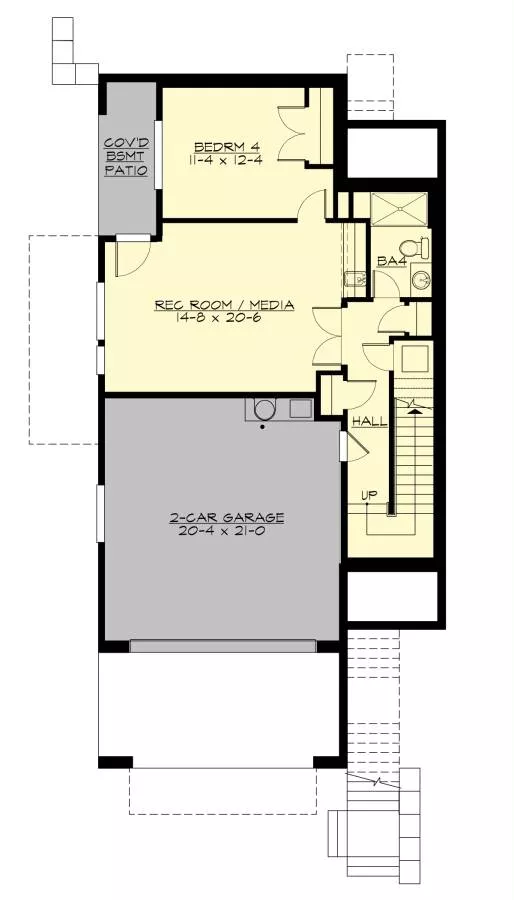
Perfectly suited for a narrow or limited lot, this stunning contemporary plan focuses heavily on value engineering to provide you with the most efficient and comfortable home available. A sleek and sharp façade adorns this 3-story marvel, complete with a spacious and convenient 2-car drive under garage. The bottom level not only contains your large garage, but it also provides a large rec room with space for a wet bar, as well as a bathroom and large bedroom with access to a covered basement patio. Move up the stairs to enter onto the main floor, this home’s centerpiece. A foyer is accessible both from the basement stairs and the front walkway with its covered front porch, giving way to the amazing open-concept floor plan. Here, the great room finds access to the covered front porch, while also joining with the gourmet island kitchen and dining nook with the option to add a den or another bedroom/office to the rear of the home. A full bathroom as well as a small covered rear porch complete this level. The third and final floor is home to the rest of the sleeping areas, including 2 auxiliary bedrooms and a shared full bath, and the master suite along with its large bathroom with dual vanities, and expansive walk-in closet. The master even features its own private 3rd floor covered balcony that looks out over the front of the home. The 3rd floor is not done yet, however! Relax in a more informal space thanks to the large loft that brings the bedrooms together. Or in the meantime, make quick work of chores thanks to the nearby laundry room. 

See All Plan Options
 

FEATURES & DETAILS

Kitchen features
Kitchen Island
Nook / Breakfast Area
Walk-in Pantry
Bedroom features
Double Vanity Sink
Primary Bdrm Upstairs
Separate Tub and Shower
Walk-in Closet
Exterior features
Covered Front Porch
Covered Rear Porch
Deck
Front Porch
Foundation Options
Daylight Basement
Lot Options
Suited for narrow lot
Additional features
Bonus Room
Dining Room
Family Room
Fireplace
Foyer
Great Room
Laundry 2nd Fl
Mud Room
Open Floor Plan
Rec Room
Storage Space
Garage Location
Front
Garage Options
Drive-under
3,668 Ft
2
Total Heated
830 Ft
2
1st Floor
1,472 Ft
2
2nd Floor
1,366 Ft
2
3rd Floor
4
Bedrooms
4
Bathrooms
2
Garage
3
Stories
36' 0"
Width
64' 0"
Depth
28' 0"
Height
9' 0"
Main Floor Ceiling
10' 0"
Upper Floor Ceiling
2x6
Framing
Stick
Roof Framing
Single
Dwelling Number

Unheated Living Space
466 Ft
2
Garage
 

Plan Package Options

 Select Plan Package
Sale: $1,920
PDF Single Build
$2,400

Digital plans emailed to you in PDF format that allows for printing copies and sharing electronically with contractors, subs, decorators, and more. This package includes a license to build the home one time.

Sale: $1,920
Sale: $2,960
CAD + PDF Unlimited Build
$3,700

CAD files are a complete set of construction drawings delivered electronically. They can be used for any type of modification—including major design changes and engineering—and include a release granting permission to modify the plan. Most CAD plan orders are emailed the same or next business day.
 
This package also comes with a PDF set of plans and a multi-use building license, granting permission to construct the home an unlimited number of times, along with a copyright release for making modifications and printing unlimited copies.
 
CAD files are provided in .dwg format. For details on the specific CAD program used, please refer to the PLAN DETAILS section located above the floor plan on each plan’s page.

Sale: $2,960
 Need To Reverse Plan? (Optional)
$300
Readable Reverse

Reverse house plans with readable text and dimensions 

$300
  Select Foundation Option
  Add-Ons (Optional)
INCLUDED WITH YOUR PURCHASE

Free Ground shipping in the Continental U.S.

FREE

Design consultation with the architect or designer to discuss your plan

Home Building & Product Ideas Organizer

Sub Total
$0
Free Shipping
IMPORTANT NOTE: Due to state regulations, this home is not available for purchase in the State of Washington. Contact us for more information.
QUESTIONS OR NEED HELP ORDERING? LIVE CHAT OR CALL US AT 866-214-2242
Plan Packages

Each set of construction documents includes detailed, dimensioned floor plans, basic electric layouts, cross sections, roof details, cabinet layouts and elevations, as well as general IRC specifications. They contain virtually all of the information required to construct your home. The typical plan set does not include any plumbing, HVAC drawings, or engineering stamps due to the wide variety of specific needs, local codes, and climatic conditions. These details and specifications are easily obtained from your builder, contractors, and/or local engineers.

BEST PRICE GUARANTEE

find the same house plan (modifications included!) and package for less on another site, show us the URL and we'll give you the difference plus an additional 5% back.

100% SATISFACTION GUARANTEE

We offer a one-time, 30-day exchange policy for unused, non-electronic plan packages in the event you aren't satisfied with your first selection.

 
 

Plan 7458  Back to plan page

Loading...