Get discounts,
promos, see our
newest plans
and more!
+ 15% off any plan
See terms opt out anytime


No Thanks

Thanks for
signing up!


Use Code:

SIGNUP15

And save 15% off any plan!

Check your email for details.

CLOSE
Search Plans
Customer Reviews
     
15% Off House Plans Sitewide Ends Sunday
15% Off House Plans Sitewide Ends Sunday
15% Off House Plans Sitewide Ends Sunday

Code: SAVE15
Sale ends midnight 1/18/2026 PST

Sq Ft
7,031 FT²

Beds
5

Baths
5.5

Stories
1

Garage
3

Depth
74' 7"

Width
130' 9"
On Sale
$3,246.15
$3,819.00
© copyright by designer
 View All 7 Images | Photographs may reflect modified home
Sq Ft
7,031 FT²
Beds
5
Baths
5.5
Stories
1
Garage
3
Depth
74' 7"
Width
130' 9"
 
Click to Zoom In on Floor Plan
© copyright by designer
 
 

About This Plan

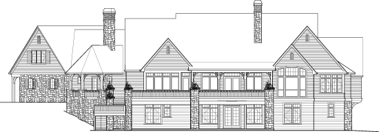
Timeless French country touches warm the luxurious proportions of the exterior. The straightforward mix of stone and lap siding is a classic look that will never go out of style. The main-level too, is timeless. Eschewing boxed-off formal rooms, the plan instead offers bigger spaces that openly connect. The 20-foot-long dining room will ensure the whole family a place at the table for holiday dinners. There also will be plenty of room to mingle about in the spacious great room and kitchen. The 25x18-foot great-room features a beamed ceiling, built-in shelves, a media center, and a fireplace. The long kitchen island isolates the cooking spaces of the kitchen, allowing guests a perch at one of the five snack bar seating spaces.
The master suite, an office, and a large laundry room fill up one wing of the plan. The master suite includes a large dressing closet with built-in dresser. Like the great room, it features a beamed ceiling and also includes a tall arched window that takes up the rear wall. Built-in shelves in the office across the hall will help stave off untidy messes.

Other practical features are built into the main-level as well, including a large mudroom off the garage and a huge storage area sandwiched between the garage and rear of the home. Its ideal for tool storage and gardening equipment. A bonus room above the garage provides even more space to stash goods.

The showcases of the lower level are the game room and a media room. Located below the ground with no access to windows, the media room is the ideal place to create a home theater. The game room is a casual hang-out spot, where guests can get away, or older children can have privacy. The rest of the lower level is devoted to four bedrooms and three baths.
 


See All Plan Options
 

FEATURES & DETAILS

Kitchen features
Butler's Pantry
Kitchen Island
Nook / Breakfast Area
Walk-in Pantry
Bedroom features
Double Vanity Sink
Guest Suite
Primary Bdrm Upstairs
Separate Tub and Shower
Walk-in Closet
Exterior features
Covered Rear Porch
Front Porch
Rear Porch
Foundation Options
Daylight Basement
Slab
Additional features
2 Story Volume
Bonus Room
Dining Room
Fireplace
Foyer
Great Room
Home Office
Laundry 1st Fl
Library/Media Rm
Mud Room
Rec Room
Vaulted Ceilings
Wine Cellar
Garage Location
Side
Garage Options
Attached
Side-entry
7,031 Ft
2
Total Heated
3,913 Ft
2
1st Floor
93 Ft
2
2nd Floor
3,913 Ft
2
Lower Floor
5
Bedrooms
5.5
Bathrooms
3
Garage
1
Stories
130' 9"
Width
74' 7"
Depth
32' 2"
Height
Varies' 0"
Main Floor Ceiling
2x6
Framing
Stick
Roof Framing
14/12
Primary Roof Pitch
12/12
Secondary Roof Pitch
14/12
Gable Roof Pitch
Single
Dwelling Number
2nd Floor
Bonus Access

Unheated Living Space
863 Ft
2
Garage
1,025 Ft
2
Storage
707 Ft
2
Bonus Room
 

Plan Package Options

 Select Plan Package
 Need To Reverse Plan? (Optional)
  Select Foundation Option
  Add-Ons (Optional)
INCLUDED WITH YOUR PURCHASE

Free Ground shipping in the Continental U.S.

FREE

Home Building & Product Ideas Organizer

Sub Total
$0
Free Shipping
QUESTIONS OR NEED HELP ORDERING? LIVE CHAT OR CALL US AT 866-214-2242
Plan Packages

Each set of construction documents includes detailed, dimensioned floor plans, basic electric layouts, cross sections, roof details, cabinet layouts and elevations, as well as general IRC specifications. They contain virtually all of the information required to construct your home. The typical plan set does not include any plumbing, HVAC drawings, or engineering stamps due to the wide variety of specific needs, local codes, and climatic conditions. These details and specifications are easily obtained from your builder, contractors, and/or local engineers.

BEST PRICE GUARANTEE

Find the same house plan (modifications included!) and package for less on another site, show us the URL and we'll give you the difference plus an additional 10% back.

100% SATISFACTION GUARANTEE

We offer a one-time, 30-day exchange policy for unused, printed plan packages in the event you aren't satisfied with your first selection. Exchanges are subject to a 20% restocking fee.

 
 

Plan 6394  Back to plan page

Loading...