Get discounts,
promos, see our
newest plans
and more!
+ 15% off any plan
See terms opt out anytime


No Thanks

Thanks for
signing up!


Use Code:

SIGNUP15

And save 15% off any plan!

Check your email for details.

CLOSE
Search Plans
Customer Reviews
     
15% off ALL House Plans Sitewide
15% off ALL House Plans Sitewide
15% off ALL House Plans Sitewide

Code: HONOR
Sale ends midnight 5/31/2026 PST

Fairholme | 4 Bedroom Style House, Plan 10664

 
 

Sq Ft
3,069 FT²

Beds
4

Baths
3.5

Stories
2

Garage
3

Depth
65' 6"

Width
74' 6"
On Sale
$1,657.50
$1,950.00
© copyright by designer
 View All 5 Images | Photographs may reflect modified home
Sq Ft
3,069 FT²
Beds
4
Baths
3.5
Stories
2
Garage
3
Depth
65' 6"
Width
74' 6"
 
Click to Zoom In on Floor Plan
© copyright by designer
 
 

About This Plan

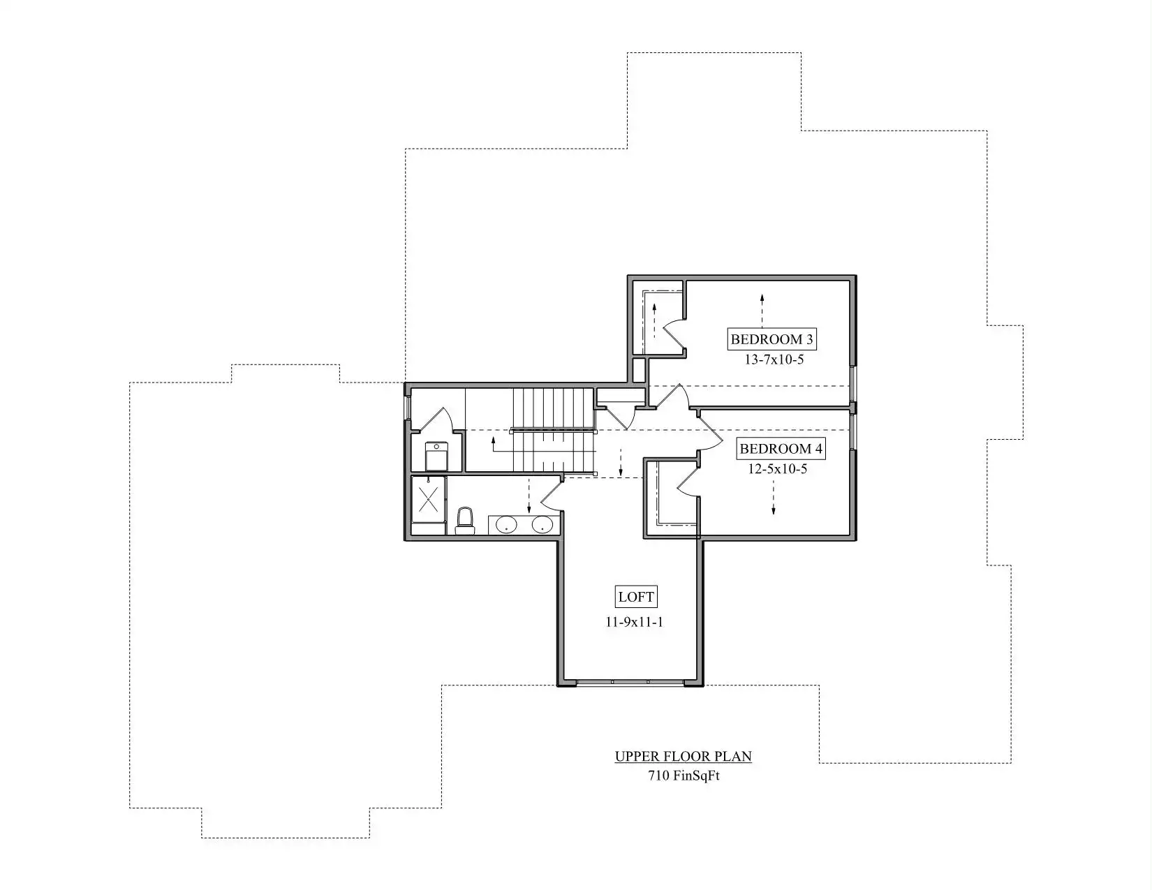
House Plan 10664 combines rustic elegance with modern living across 3,069 sq. ft. of well-designed space. This two-story plan offers 4 bedrooms and 3.5 bathrooms, including a luxurious main-floor primary suite with a spa-inspired bath and walk-in closet. The open-concept great room connects effortlessly to the kitchen, which features a large island and walk-in pantry, flowing into the dining area for easy entertaining. Upstairs, two additional bedrooms share the level with a versatile loft that can serve as a home office, playroom, or second living area. Outdoor spaces include a generous wraparound rear porch perfect for relaxing or hosting guests. A spacious 3-car garage adds ample storage and parking. Homeowners can also choose to finish the lower level, adding two more bedrooms, additional living space, and storage. Blending Craftsman details with barndominium appeal, House Plan 10664 delivers style, comfort, and flexibility for today’s lifestyle.
 

See All Plan Options
 

FEATURES & DETAILS

Kitchen features
Kitchen Island
L-Shaped
Nook / Breakfast Area
Walk-in Pantry
Bedroom features
Double Vanity Sink
Primary Bdrm Main Floor
Separate Tub and Shower
Split Bedrooms
Walk-in Closet
Exterior features
Covered Front Porch
Covered Rear Porch
Lot Options
Suited for view lot
Additional features
Dining Room
Fireplace
Foyer
Great Room
Home Office
Laundry 1st Fl
Loft / Balcony
Mud Room
Open Floor Plan
Rec Room
Storage Space
Unfinished Space
Garage Location
Front
Garage Options
Attached
Side-entry
4,580 Ft
2
Total Structure
3,069 Ft
2
Total Heated
2,359 Ft
2
1st Floor
710 Ft
2
2nd Floor
1,386 Ft
2
Lower Floor
4
Bedrooms
3.5
Bathrooms
3
Garage
2
Stories
74' 6"
Width
65' 6"
Depth
24' 3"
Height
10' 0"
Main Floor Ceiling
8' 0"
Upper Floor Ceiling
10' 0"
Lower Floor Ceiling
2x6
Framing
Truss
Roof Framing
7/12
Primary Roof Pitch
10/12
Secondary Roof Pitch
Single
Dwelling Number
None
Bonus Access

Unheated Living Space
965 Ft
2
Garage
1,224 Ft
2
Porch
 

Plan Package Options

 Select Plan Package
 Need To Reverse Plan? (Optional)
  Select Foundation Option
  Add-Ons (Optional)
INCLUDED WITH YOUR PURCHASE

Free Ground shipping in the U.S.

FREE

Home Building & Product Ideas Organizer

Sub Total
$0
Free Shipping
QUESTIONS OR NEED HELP ORDERING? LIVE CHAT OR CALL US AT 866-214-2242
Plan Packages

Each set of construction documents typically includes detailed, dimensioned floor plans, basic electric layouts, cross sections, roof details, cabinet layouts, and elevations, as well as general IRC specifications. Please refer to the ARCHITECT or DESIGNER’S PLAN DETAILS link above the floor plan on any plan page to determine the specific details for each plan. Our house plans contain virtually all of the information required to construct your home. The typical plan set does not include plumbing, HVAC drawings, or engineering stamps due to the wide variety of specific needs, local codes, and climatic conditions. These details and specifications are easily obtained from your builder, contractors, and/or local engineers.

BEST PRICE GUARANTEE

Find the same house plan (modifications included!) and package for less on another site, show us the URL and we'll give you the difference plus an additional 10% back.

100% SATISFACTION GUARANTEE

We offer a one-time, 30-day exchange policy for unused, printed plan packages in the event you aren't satisfied with your first selection.

 
 

Plan 10664  Back to plan page

Loading...