Get discounts,
promos, see our
newest plans
and more!
+ 15% off any plan
See terms opt out anytime


No Thanks

Thanks for
signing up!


Use Code:

SIGNUP15

And save 15% off any plan!

Check your email for details.

CLOSE
Search Plans
Customer Reviews
     
15% off ALL House Plans Sitewide
15% off ALL House Plans Sitewide
15% off ALL House Plans Sitewide

Code: SAVE15
Sale ends midnight 4/19/2026 PST

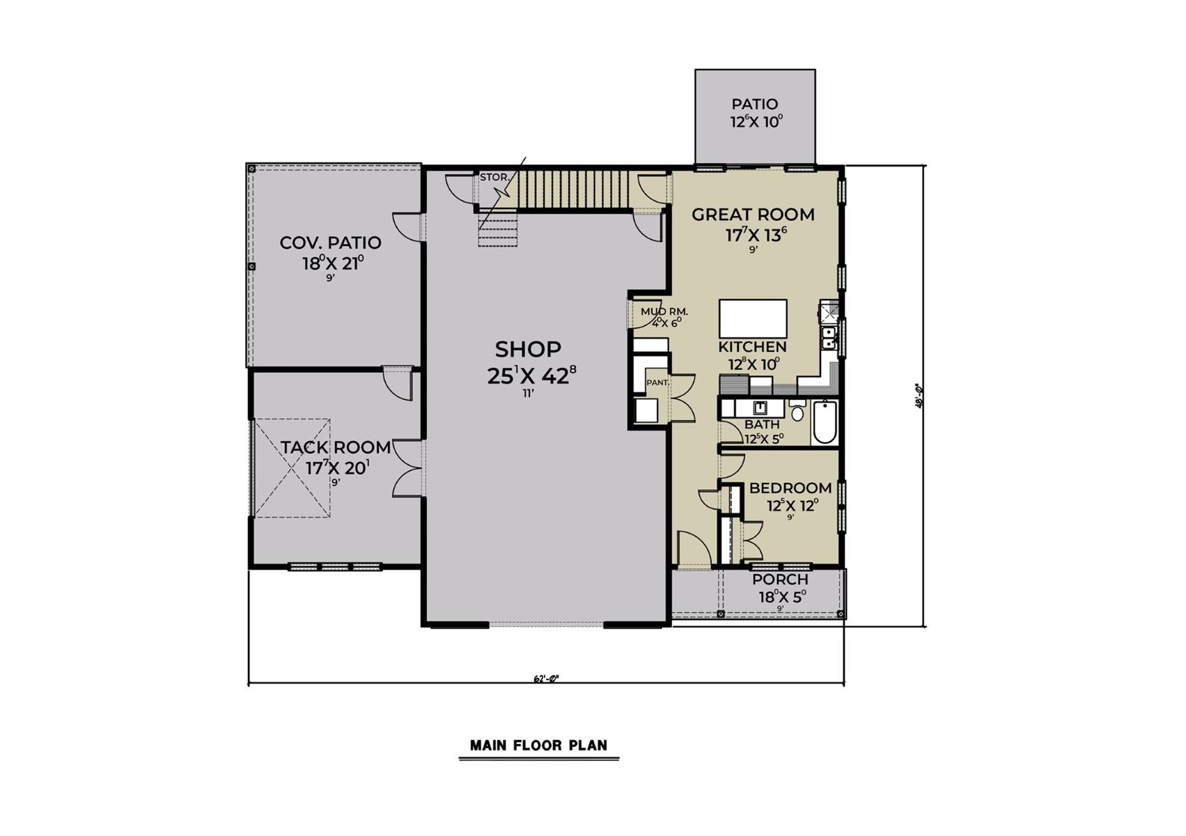
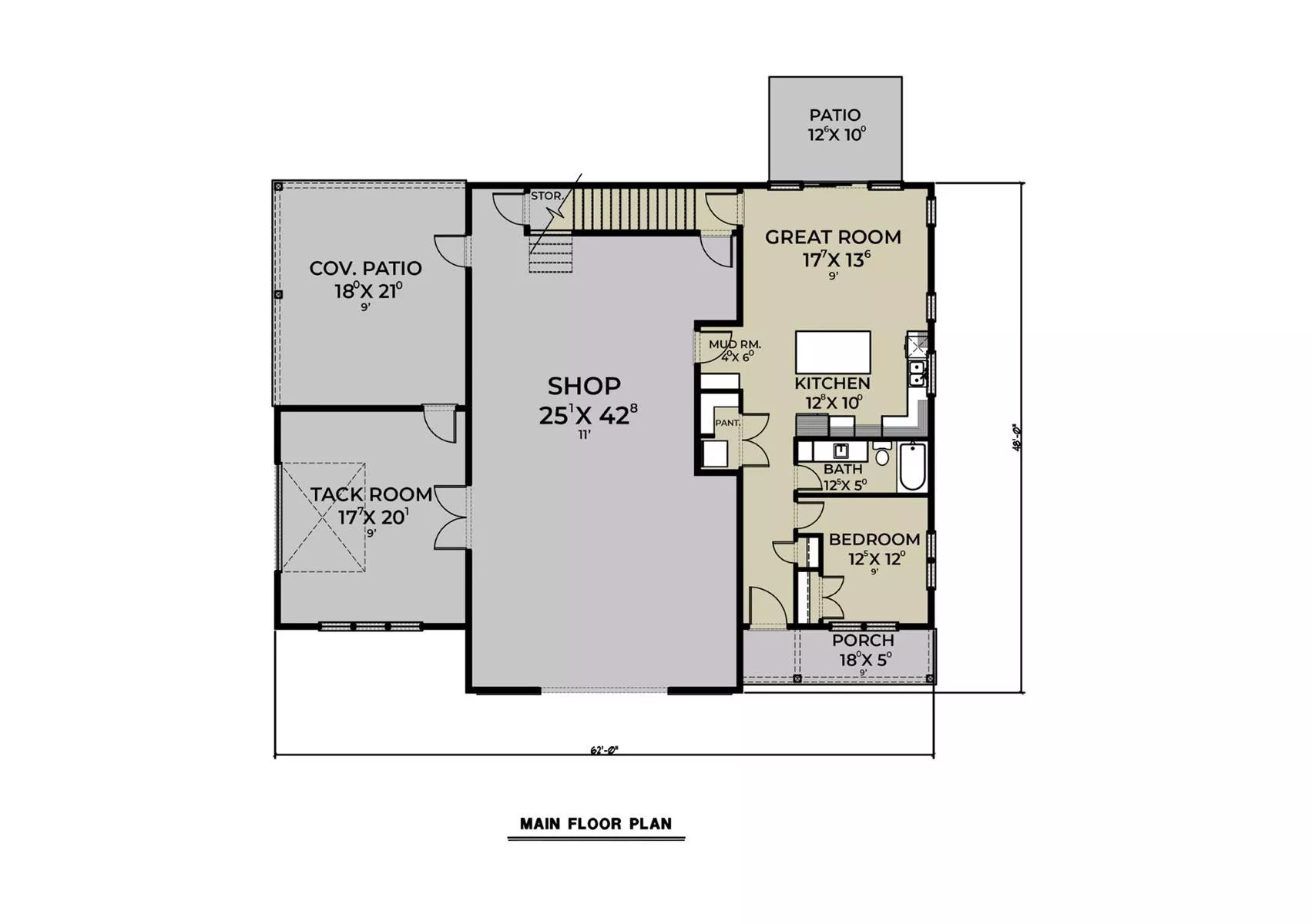
Garage Barndominium Apartment Style House, Plan 6605

 
 

Sq Ft
1,580 FT²

Beds
1

Baths
1

Stories
2

Garage
3

Depth
48'

Width
62'
On Sale
$1,487.50
$1,750.00
© copyright by designer
 View All 7 Images | Photographs may reflect modified home
Sq Ft
1,580 FT²
Beds
1
Baths
1
Stories
2
Garage
3
Depth
48'
Width
62'
 
Click to Zoom In on Floor Plan
© copyright by designer
 
 

About This Plan

Are you in the market for a super rustic home that gives you room to work? House Plan 6605 fits the bill with its traditional barn look, modest living area, and ample shop space. Starting with the interior, you'll find 1,580 square feet across two levels. The first floor has one bedroom, a hall bath, and an open great room with an island kitchen. The second floor consists of a loft that stretches across the whole depth of the home. This could be an awesome bunkroom to offer additional sleeping quarters, a huge storage room, or anything else you may need. On to the working potential of this design, the center portion of the main level provides over 1,000 square feet of shop space. In addition to that, there's a tack room on the side, complete with its own large exterior door. It's not very often you find a design like House Plan 6605 that's made for living and working in!  

See All Plan Options
 

FEATURES & DETAILS

Kitchen features
Kitchen Island
L-Shaped
Pantry
Walk-in Pantry
Bedroom features
Primary Bdrm Main Floor
Exterior features
Covered Front Porch
Front Porch
Outdoor Living Space
Additional features
Bonus Room
Great Room
Laundry 1st Fl
Loft / Balcony
Mud Room
Open Floor Plan
Workshop
Garage Location
Front
Garage Options
Attached
Front-entry
Oversized
RV Garage
Side-entry
Tandem
With Living Space
3,408 Ft
2
Total Structure
1,580 Ft
2
Total Heated
833 Ft
2
1st Floor
747 Ft
2
2nd Floor
1
Bedrooms
1
Bathrooms
3
Garage
2
Stories
62' 0"
Width
48' 0"
Depth
28' 8"
Height
9' 0"
Main Floor Ceiling
9' 0"
Upper Floor Ceiling
2x6
Framing
Truss
Roof Framing
10/12
Primary Roof Pitch
3/12
Secondary Roof Pitch
Garage
Dwelling Number
1st Floor
Bonus Access

Unheated Living Space
1,072 Ft
2
Garage
378 Ft
2
Storage
378 Ft
2
Deck
 

Plan Package Options

 Select Plan Package
 Need To Reverse Plan? (Optional)
  Select Foundation Option
  Add-Ons (Optional)
INCLUDED WITH YOUR PURCHASE

Free Ground shipping in the U.S.

FREE

Home Building & Product Ideas Organizer

Sub Total
$0
Free Shipping
QUESTIONS OR NEED HELP ORDERING? LIVE CHAT OR CALL US AT 866-214-2242
Plan Packages

Each set of construction documents typically includes detailed, dimensioned floor plans, basic electric layouts, cross sections, roof details, cabinet layouts, and elevations, as well as general IRC specifications. Please refer to the ARCHITECT or DESIGNER’S PLAN DETAILS link above the floor plan on any plan page to determine the specific details for each plan. Our house plans contain virtually all of the information required to construct your home. The typical plan set does not include plumbing, HVAC drawings, or engineering stamps due to the wide variety of specific needs, local codes, and climatic conditions. These details and specifications are easily obtained from your builder, contractors, and/or local engineers.

BEST PRICE GUARANTEE

Find the same house plan (modifications included!) and package for less on another site, show us the URL and we'll give you the difference plus an additional 10% back.

100% SATISFACTION GUARANTEE

We offer a one-time, 30-day exchange policy for unused, printed plan packages in the event you aren't satisfied with your first selection.

 
 

Plan 6605  Back to plan page

Loading...