Get discounts,
promos, see our
newest plans
and more!
+ 15% off any plan
See terms opt out anytime


No Thanks

Thanks for
signing up!


Use Code:

SIGNUP15

And save 15% off any plan!

Check your email for details.

CLOSE
Search Plans
Customer Reviews
     
15% off ALL House Plans Sitewide
15% off ALL House Plans Sitewide
15% off ALL House Plans Sitewide

Code: HONOR
Sale ends midnight 5/31/2026 PST

4 Car Garage With Full Apartment Country Style House, Plan 6604

 
 

Sq Ft
1,273 FT²

Beds
1

Baths
1.5

Stories
1

Garage
4

Depth
49'

Width
74'
On Sale
$1,487.50
$1,750.00
© copyright by designer
 View All 7 Images | Photographs may reflect modified home
Sq Ft
1,273 FT²
Beds
1
Baths
1.5
Stories
1
Garage
4
Depth
49'
Width
74'
 
Click to Zoom In on Floor Plan
© copyright by designer
 
 

About This Plan

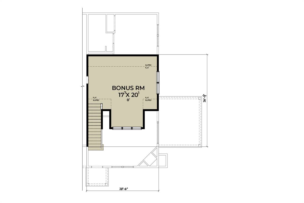
Vehicle enthusiasts look no further--House Plan 6604 has tandem parking for four cars and room for an RV! In fact, this design is primarily made up of garage space, so it makes a great option for those who need a lot of indoor parking but don't need too much room for themselves. Or perhaps you're looking to add onto an existing property? It would fit right in beside another structure with farmhouse style. In any case, the 1,273-square-foot interior with one bedroom suite offers comfortable living for an individual or couple. The open-concept layout seamlessly connects the living, dining, and kitchen areas and opens the door to hosting. There's even a laundry closet to simplify chores, and a powder room to serve guests. All this is placed on one convenient level, but there's also a bonus upstairs if you'd like more storage, an office, or anything else. House Plan 6604 offers tons more flexible potential than you'll usually find in a garage design!  

See All Plan Options
 

FEATURES & DETAILS

Kitchen features
Kitchen Island
Pantry
Bedroom features
Primary Bdrm Main Floor
Walk-in Closet
Exterior features
Front Porch
Additional features
Bonus Room
Great Room
Laundry 1st Fl
Open Floor Plan
Garage Location
Front
Garage Options
Attached
Front-entry
Oversized
RV Garage
3,114 Ft
2
Total Structure
1,273 Ft
2
Total Heated
902 Ft
2
1st Floor
371 Ft
2
2nd Floor
1
Bedrooms
1.5
Bathrooms
4
Garage
1
Stories
74' 0"
Width
49' 0"
Depth
23' 5"
Height
9' 0"
Main Floor Ceiling
8' 0"
Upper Floor Ceiling
9' 0"
Living/Great Room Ceiling
9' 0"
Primary Ceiling
2x6
Framing
Truss
Roof Framing
8/12
Primary Roof Pitch
4/12
Secondary Roof Pitch
Single
Dwelling Number
2nd Floor
Bonus Access

Unheated Living Space
1,672 Ft
2
Garage
168 Ft
2
Patio
 

Plan Package Options

 Select Plan Package
 Need To Reverse Plan? (Optional)
  Select Foundation Option
  Add-Ons (Optional)
INCLUDED WITH YOUR PURCHASE

Free Ground shipping in the U.S.

FREE

Home Building & Product Ideas Organizer

Sub Total
$0
Free Shipping
QUESTIONS OR NEED HELP ORDERING? LIVE CHAT OR CALL US AT 866-214-2242
Plan Packages

Each set of construction documents typically includes detailed, dimensioned floor plans, basic electric layouts, cross sections, roof details, cabinet layouts, and elevations, as well as general IRC specifications. Please refer to the ARCHITECT or DESIGNER’S PLAN DETAILS link above the floor plan on any plan page to determine the specific details for each plan. Our house plans contain virtually all of the information required to construct your home. The typical plan set does not include plumbing, HVAC drawings, or engineering stamps due to the wide variety of specific needs, local codes, and climatic conditions. These details and specifications are easily obtained from your builder, contractors, and/or local engineers.

BEST PRICE GUARANTEE

Find the same house plan (modifications included!) and package for less on another site, show us the URL and we'll give you the difference plus an additional 10% back.

100% SATISFACTION GUARANTEE

We offer a one-time, 30-day exchange policy for unused, printed plan packages in the event you aren't satisfied with your first selection.

 
 

Plan 6604  Back to plan page

Loading...