Get discounts,
promos, see our
newest plans
and more!
+ 15% off any plan
See terms opt out anytime


No Thanks

Thanks for
signing up!


Use Code:

SIGNUP15

And save 15% off any plan!

Check your email for details.

CLOSE
Search Plans
Customer Reviews
     
America’s Top Home Plans
Trusted House Plans From America's Leading Architects & Designers

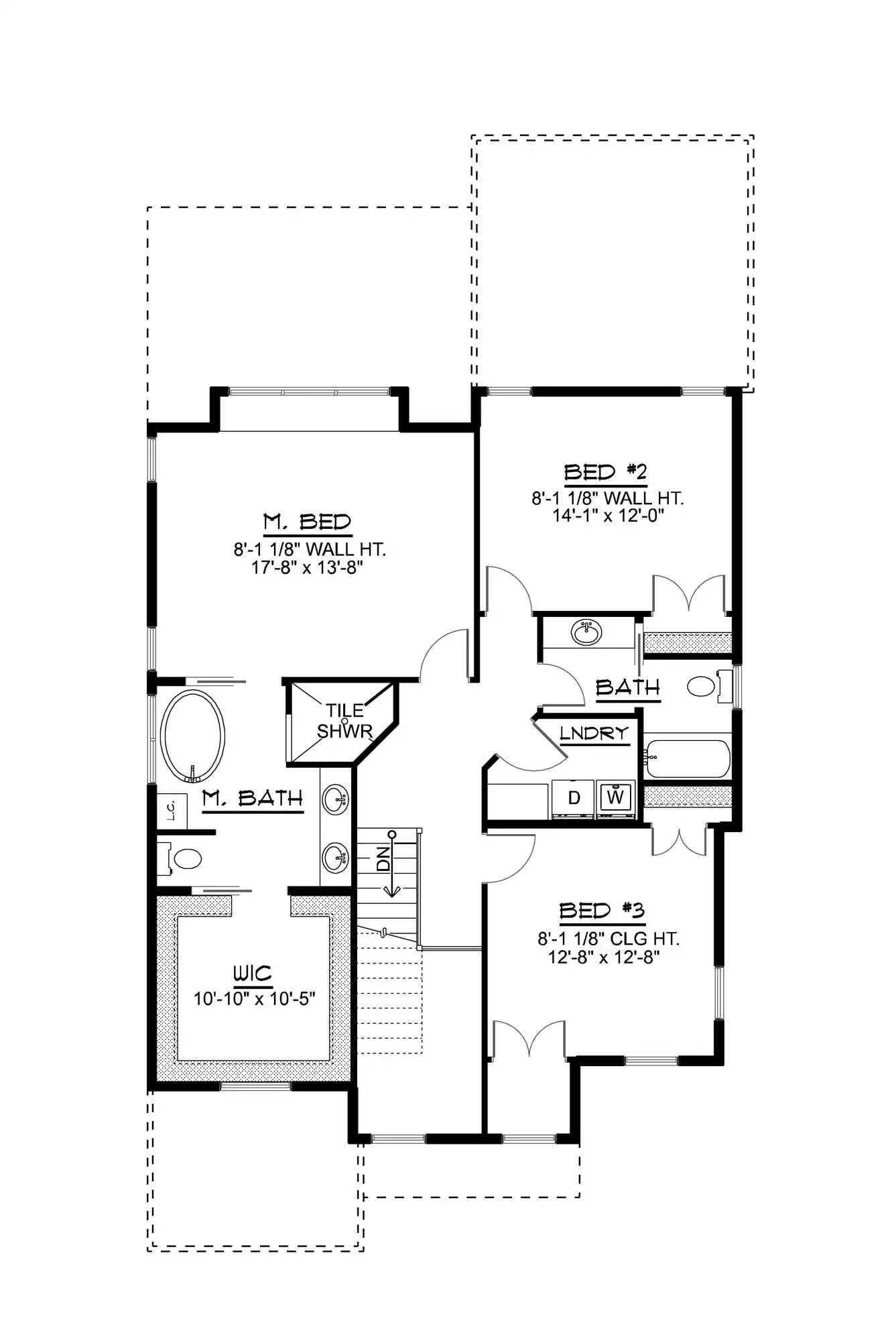
Belleville | Flexible 3 Bedroom Traditional Style House, Plan 10992

 
 

Sq Ft
2,262 FT²

Beds
3

Baths
3

Stories
2

Garage
1

Depth
48'

Width
32'
From
$1,250.00
© copyright by designer
 View All 6 Images | Photographs may reflect modified home
Sq Ft
2,262 FT²
Beds
3
Baths
3
Stories
2
Garage
1
Depth
48'
Width
32'
 
Click to Zoom In on Floor Plan
© copyright by designer
 
 

About This Plan

With its simple traditional style and narrow facade, House Plan 10992 is here to make the most of a tight neighborhood lot! This unique design offers 2,262 square feet with three bedrooms and three bathrooms as well as a one-car garage. The main level features a long foyer with a laundry center behind a barn door, an office, and a full bathroom--you could easily make this a convenient place to host guests! The great room fills out the rear of the house and includes an L-shaped island kitchen beside open living and dining space. There's also outdoor living potential with a covered porch and a screened porch! Head upstairs to find the bedrooms of the family. The primary suite has a five-piece bath and a walk-in closet while the other two bedrooms share a divided three-piece hall bath. The laundry room is centrally located for convenience. That's right--you get laundry on both levels. This nifty design is perfect for busy and outdoorsy families! 

See All Plan Options
 

FEATURES & DETAILS

Kitchen features
Kitchen Island
L-Shaped
Walk-in Pantry
Bedroom features
Double Vanity Sink
Family Style
Primary Bdrm Upstairs
Separate Tub and Shower
Walk-in Closet
Exterior features
Covered Front Porch
Covered Rear Porch
Outdoor Living Space
Screened Porch/Sunroom
Lot Options
Suited for narrow lot
Additional features
Fireplace
Foyer
Great Room
Home Office
Laundry 1st Fl
Laundry 2nd Fl
Open Floor Plan
Garage Location
Front
Garage Options
Attached
Front-entry
3,035 Ft
2
Total Structure
2,262 Ft
2
Total Heated
1,073 Ft
2
1st Floor
1,189 Ft
2
2nd Floor
214 Ft
2
Rear Porch - Covered
219 Ft
2
Rear Porch - Screened
3
Bedrooms
3
Bathrooms
1
Garage
2
Stories
32' 0"
Width
48' 0"
Depth
29' 7"
Height
9' 0"
Main Floor Ceiling
8' 0"
Upper Floor Ceiling
2x6
Framing
Truss
Roof Framing
7/12
Primary Roof Pitch
10/12
Secondary Roof Pitch
Single
Dwelling Number
None
Bonus Access

Unheated Living Space
298 Ft
2
Garage
475 Ft
2
Porch
42 Ft
2
Front Porch
 

Plan Package Options

 Select Plan Package
 Need To Reverse Plan? (Optional)
  Select Foundation Option
  Add-Ons (Optional)
INCLUDED WITH YOUR PURCHASE

Free Ground shipping in the U.S.

FREE

Home Building & Product Ideas Organizer

Sub Total
$0
Free Shipping
QUESTIONS OR NEED HELP ORDERING? LIVE CHAT OR CALL US AT 866-214-2242
Plan Packages

Each set of construction documents typically includes detailed, dimensioned floor plans, basic electric layouts, cross sections, roof details, cabinet layouts, and elevations, as well as general IRC specifications. Please refer to the ARCHITECT or DESIGNER’S PLAN DETAILS link above the floor plan on any plan page to determine the specific details for each plan. Our house plans contain virtually all of the information required to construct your home. The typical plan set does not include plumbing, HVAC drawings, or engineering stamps due to the wide variety of specific needs, local codes, and climatic conditions. These details and specifications are easily obtained from your builder, contractors, and/or local engineers.

BEST PRICE GUARANTEE

Find the same house plan (modifications included!) and package for less on another site, show us the URL and we'll give you the difference plus an additional 10% back.

100% SATISFACTION GUARANTEE

We offer a one-time, 30-day exchange policy for unused, printed plan packages in the event you aren't satisfied with your first selection.

 
 

Plan 10992  Back to plan page

Loading...