Get discounts,
promos, see our
newest plans
and more!
+ 15% off any plan
See terms opt out anytime


No Thanks

Thanks for
signing up!


Use Code:

SIGNUP15

And save 15% off any plan!

Check your email for details.

CLOSE
Search Plans
Customer Reviews
     
15% off ALL House Plans Sitewide
15% off ALL House Plans Sitewide
15% off ALL House Plans Sitewide

Code: HONOR
Sale ends midnight 5/31/2026 PST

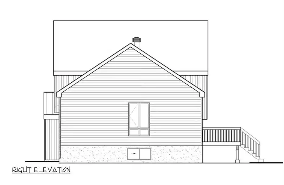
Amalia 2 Bed Scandinavian-Inspired House, Plan 8738

 
 

Sq Ft
1,164 FT²

Beds
2

Baths
1

Stories
2

Garage
1

Depth
30'

Width
34'
On Sale
$896.75
$1,055.00
© copyright by designer
 View All 8 Images | Photographs may reflect modified home
Sq Ft
1,164 FT²
Beds
2
Baths
1
Stories
2
Garage
1
Depth
30'
Width
34'
 
Click to Zoom In on Floor Plan
© copyright by designer
 
 

About This Plan

Looking for a unique little home perfect for your favorite natural location? Give House Plan 8738 a try! This 1,164-square-foot Scandinavian design offers a split-level layout to boost its spaces and create a quieter living experience. Enter into the foyer from the front door or the garage and you can step up to the main level or down to the unfinished basement. The main level includes all the living areas, including an island kitchen in front, room for a dining table in the middle, and living space in back. Up the stairs from here, you'll find two bedrooms, a large four-piece bath, and the laundry room on the upper level placed over the garage. Speaking of the garage, it has room for a full workshop!  

See All Plan Options
 

FEATURES & DETAILS

Kitchen features
Kitchen Island
Pantry
Bedroom features
Family Style
Primary Bdrm Upstairs
Walk-in Closet
Exterior features
Covered Front Porch
Lot Options
Suited for narrow lot
Suited for sloping lot
Suited for view lot
Additional features
Foyer
Great Room
Laundry 2nd Fl
Open Floor Plan
Workshop
Garage Location
Front
Garage Options
Attached
Front-entry
Oversized
1,531 Ft
2
Total Structure
1,164 Ft
2
Total Heated
564 Ft
2
1st Floor
600 Ft
2
2nd Floor
2
Bedrooms
1
Bathrooms
1
Garage
2
Stories
34' 0"
Width
30' 0"
Depth
29' 6"
Height
9' 0"
Main Floor Ceiling
8' 0"
Upper Floor Ceiling
2x6
Framing
Truss
Roof Framing
8/12
Primary Roof Pitch
12/12
Secondary Roof Pitch
Single
Dwelling Number
None
Bonus Access

Unheated Living Space
367 Ft
2
Garage
 

Plan Package Options

 Select Plan Package
 Need To Reverse Plan? (Optional)
  Select Foundation Option
  Add-Ons (Optional)
INCLUDED WITH YOUR PURCHASE

Free Ground shipping in the U.S.

FREE

Home Building & Product Ideas Organizer

Sub Total
$0
Free Shipping
Provinces of Québec and Ontario only: Purchasable options are 5 printed sets or 8 printed sets. PDF file and CAD file options are unavailable.
QUESTIONS OR NEED HELP ORDERING? LIVE CHAT OR CALL US AT 866-214-2242
Plan Packages

Each set of construction documents typically includes detailed, dimensioned floor plans, basic electric layouts, cross sections, roof details, cabinet layouts, and elevations, as well as general IRC specifications. Please refer to the ARCHITECT or DESIGNER’S PLAN DETAILS link above the floor plan on any plan page to determine the specific details for each plan. Our house plans contain virtually all of the information required to construct your home. The typical plan set does not include plumbing, HVAC drawings, or engineering stamps due to the wide variety of specific needs, local codes, and climatic conditions. These details and specifications are easily obtained from your builder, contractors, and/or local engineers.

BEST PRICE GUARANTEE

Find the same house plan (modifications included!) and package for less on another site, show us the URL and we'll give you the difference plus an additional 10% back.

100% SATISFACTION GUARANTEE

We offer a one-time, 30-day exchange policy for unused, printed plan packages in the event you aren't satisfied with your first selection.

 
 

Plan 8738  Back to plan page

Loading...