Get discounts,
promos, see our
newest plans
and more!
+ 15% off any plan
See terms opt out anytime


No Thanks

Thanks for
signing up!


Use Code:

SIGNUP15

And save 15% off any plan!

Check your email for details.

CLOSE
Search Plans
Customer Reviews
     
15% off ALL House Plans Sitewide
15% off ALL House Plans Sitewide
15% off ALL House Plans Sitewide

Code: HONOR
Sale ends midnight 5/31/2026 PST

Beausejour 5 Bedroom Rustic Farmhouse Style House, Plan 6608

 
 

Sq Ft
2,826 FT²

Beds
5

Baths
2.5

Stories
2

Garage
0

Depth
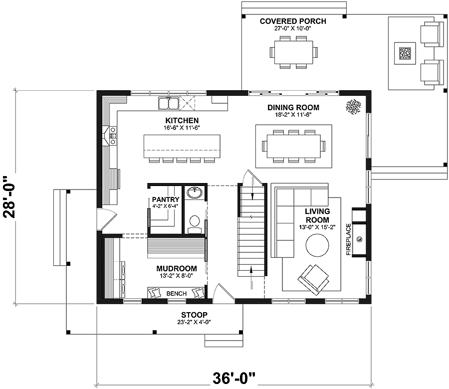
28'

Width
36'
On Sale
$1,870.00
$2,200.00
© copyright by designer
 View All 21 Images | Photographs may reflect modified home
Sq Ft
2,826 FT²
Beds
5
Baths
2.5
Stories
2
Garage
0
Depth
28'
Width
36'
 
Click to Zoom In on Floor Plan
© copyright by designer
 
 

About This Plan

This FINISHED BASEMENT DESIGN allows up to 5 bedrooms and as few as 3. All three levels are included in the 2,826 heated square feet.

If your lot is small in width and depth, and you want to maximize the limited space, this gorgeous 3 level home provides just that.

Entering this modernized country style home after a long day, the left of the home (divided by the stairwell) has the family hub of the mudroom with beautiful built-ins, the powder bath, as well as the pantry, accessible by a side door for unloading groceries.

The living spaces of the home are in an L shape with the kitchen has a large 5 seater island, ample counter and cabinet space, and the kitchen window has the coveted view of the backyard.

The dedicated dining space provides a semi-formal space to enjoy friends and family and has loads of natural light. The slider doors open to a huge covered porch, perfect for mild weather evenings and bbqs on the weekends. The living room is tucked away with a fireplace, perfect for cozy winter nights and a movie.

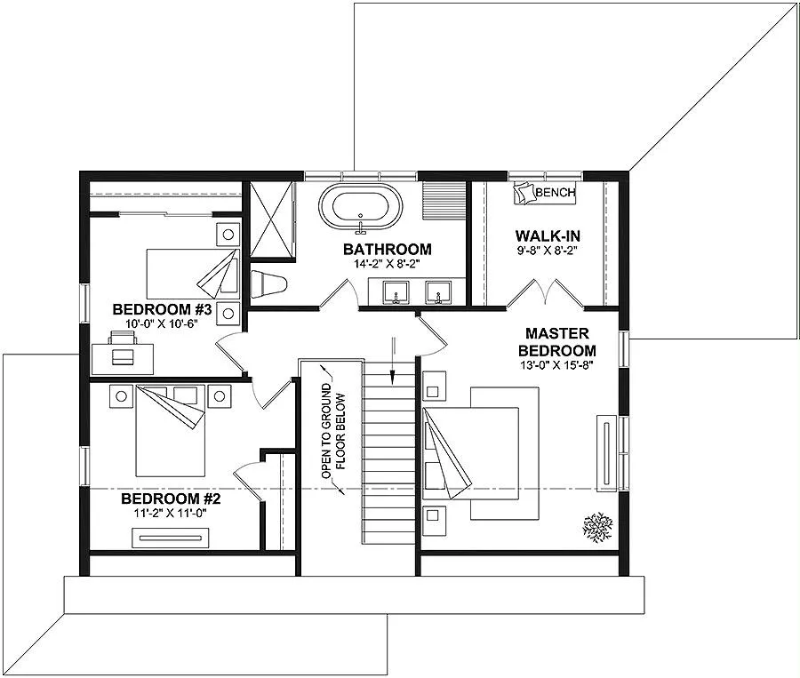
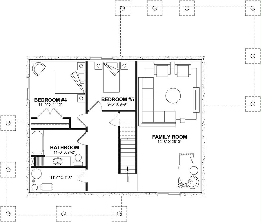
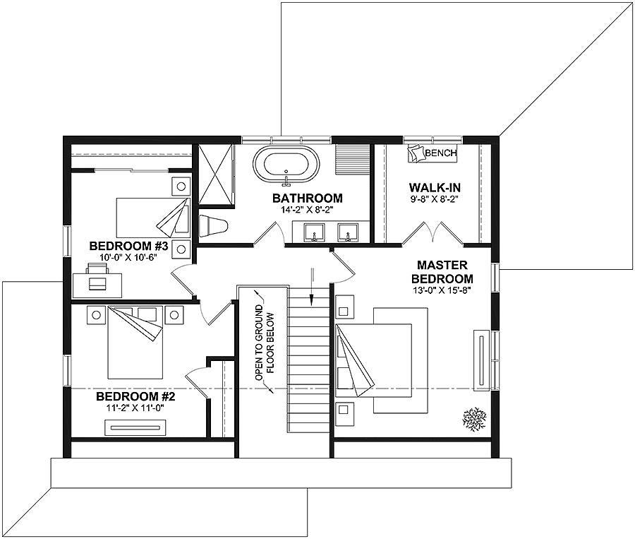
The upper second level of the home (810 sq.ft.)  has 3 bedrooms that share 1 large bathroom. The larger bedroom (master) has a walk-in closet while the two secondary bedrooms have smaller wall closets.

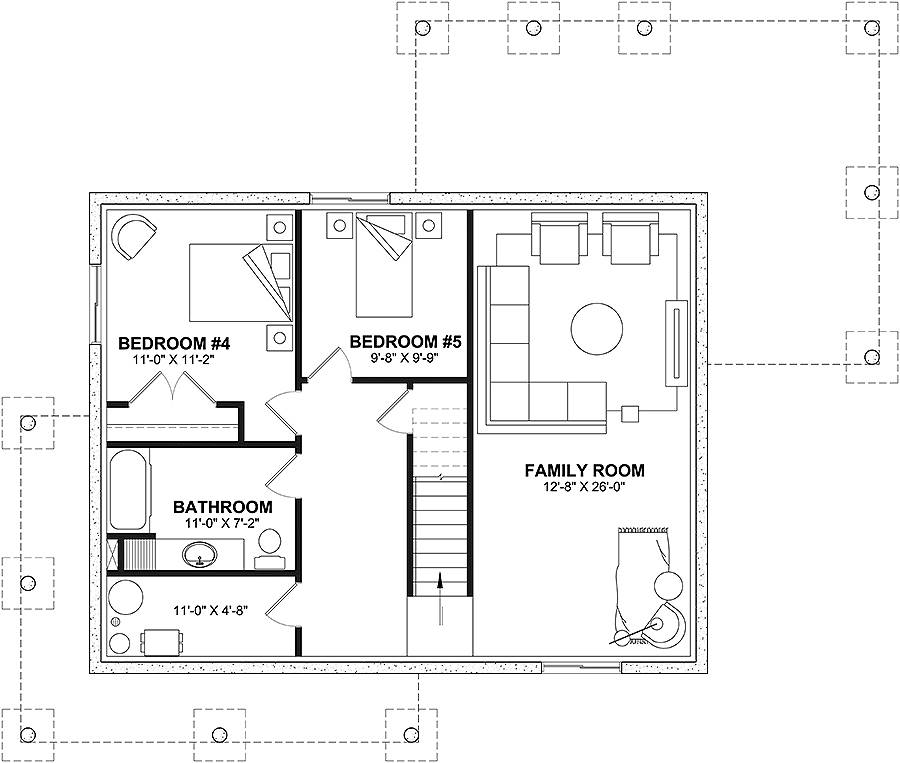
The lower basement level (1008 sq.ft.) holds two more small bedrooms and a shared hallway bathroom and there is a large family room, perfect for family movie nights or it could be used for other various purposes. 

See All Plan Options
 

FEATURES & DETAILS

Kitchen features
Country Kitchen
Kitchen Island
L-Shaped
Walk-in Pantry
Bedroom features
Double Vanity Sink
Family Style
His and Hers Primary Closets
Primary Bdrm Upstairs
Walk-in Closet
Exterior features
Covered Front Porch
Covered Rear Porch
Outdoor Living Space
Lot Options
Suited for corner lot
Suited for narrow lot
Suited for view lot
Additional features
2 Story Volume
Dining Room
Family Room
Fireplace
Foyer
Laundry 1st Fl
Loft / Balcony
Mud Room
Vaulted Ceilings
Vaulted Foyer
Garage Location
None
Garage Options
None
2,826 Ft
2
Total Heated
1,008 Ft
2
1st Floor
810 Ft
2
2nd Floor
1,008 Ft
2
Lower Floor
5
Bedrooms
2.5
Bathrooms
0
Garage
2
Stories
36' 0"
Width
28' 0"
Depth
28' 4"
Height
9' 0"
Main Floor Ceiling
8' 0"
Upper Floor Ceiling
8' 0"
Lower Floor Ceiling
18' 4"
Foyer Ceiling
2x6
Framing
Truss
Roof Framing
12:12
Primary Roof Pitch
4:12
Secondary Roof Pitch
Single
Dwelling Number
None
Bonus Access

Unheated Living Space
 

Plan Package Options

 Select Plan Package
 Need To Reverse Plan? (Optional)
  Select Foundation Option
  Add-Ons (Optional)
INCLUDED WITH YOUR PURCHASE

Free Ground shipping in the U.S.

FREE

Home Building & Product Ideas Organizer

Sub Total
$0
Free Shipping
Please allow 3-5 business days for delivery of this plan Please check our PDFs NOW collection for plans that can be downloaded and received immediately or live chat us to help you find a similar plan available now.
QUESTIONS OR NEED HELP ORDERING? LIVE CHAT OR CALL US AT 866-214-2242
Plan Packages

Each set of construction documents typically includes detailed, dimensioned floor plans, basic electric layouts, cross sections, roof details, cabinet layouts, and elevations, as well as general IRC specifications. Please refer to the ARCHITECT or DESIGNER’S PLAN DETAILS link above the floor plan on any plan page to determine the specific details for each plan. Our house plans contain virtually all of the information required to construct your home. The typical plan set does not include plumbing, HVAC drawings, or engineering stamps due to the wide variety of specific needs, local codes, and climatic conditions. These details and specifications are easily obtained from your builder, contractors, and/or local engineers.

BEST PRICE GUARANTEE

Find the same house plan (modifications included!) and package for less on another site, show us the URL and we'll give you the difference plus an additional 10% back.

100% SATISFACTION GUARANTEE

We offer a one-time, 30-day exchange policy for unused, printed plan packages in the event you aren't satisfied with your first selection.

 
 

Plan 6608  Back to plan page

Loading...