Get discounts,
promos, see our
newest plans
and more!
+ 15% off any plan
See terms opt out anytime


No Thanks

Thanks for
signing up!


Use Code:

SIGNUP15

And save 15% off any plan!

Check your email for details.

CLOSE
Search Plans
Customer Reviews
     
15% off ALL House Plans Sitewide
15% off ALL House Plans Sitewide
15% off ALL House Plans Sitewide

Code: SAVE15
Sale ends midnight 4/19/2026 PST

Brookside Luxury Modern Farmhouse Style House, Plan 6498

 
 

Sq Ft
4,119 FT²

Beds
4

Baths
3.5

Stories
2

Garage
3

Depth
35'

Width
90'
On Sale
$2,210.00
$2,600.00
© copyright by designer
 View All 42 Images | Photographs may reflect modified home
Sq Ft
4,119 FT²
Beds
4
Baths
3.5
Stories
2
Garage
3
Depth
35'
Width
90'
 
Click to Zoom In on Floor Plan
© copyright by designer
 
 

About This Plan

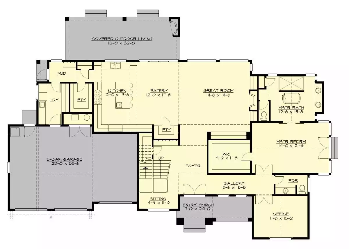
Discover the Brookside, an expansive 4,119-square-foot modern farmhouse radiating luminosity. Its sleek design, where contemporary meets charming, is captivating from the first glance. Step inside through the covered porch into a spacious foyer, offering an immediate sense of the home's grandeur. As you traverse the great room, natural light floods the space from two-story windows, creating an open and inviting atmosphere. Gather with loved ones around the fireplace, seamlessly transitioning from entertaining to dinner with the open floor plan connecting the eatery to the gorgeous, large kitchen—a hub for integrated family moments, from cooking to entertaining. This space effortlessly extends to the covered outdoor living area, perfect for enjoying summer dinners outdoors. On the right side of the house, the master bedroom awaits—a secluded oasis with a master bathroom exuding the ambiance of a home spa. Indulge in a large soaker tub and a separate walk-in shower. An adjacent office adds convenience for those work-from-home days. Ascend upstairs to discover three bedrooms, two full bathrooms with double vanity sinks, a rec room, and a study—an ideal space for kids to focus on homework or entertain their friends away from the main living areas. Back on the first floor, a spacious three-car garage connects to a mudroom, leading seamlessly to the pantry for easy offloading of groceries. Brookside invites you to experience a luminous and functional home, where modern design meets comfort in every detail. 

See All Plan Options
 

FEATURES & DETAILS

Kitchen features
Kitchen Island
U-Shaped
Walk-in Pantry
Bedroom features
Double Vanity Sink
Primary Bdrm Main Floor
Separate Tub and Shower
Walk-in Closet
Exterior features
Covered Front Porch
Covered Rear Porch
Outdoor Living Space
Lot Options
Suited for view lot
Additional features
Dining Room
Fireplace
Foyer
Great Room
Home Office
Laundry 1st Fl
Library/Media Rm
Mud Room
Open Floor Plan
Rec Room
Vaulted Foyer
Vaulted Great Room/Living
Vaulted Primary
Garage Location
Front
Garage Options
Attached
Front-entry
4,119 Ft
2
Total Heated
2,659 Ft
2
1st Floor
1,460 Ft
2
2nd Floor
4
Bedrooms
3.5
Bathrooms
3
Garage
2
Stories
90' 0"
Width
35' 0"
Depth
28' 4"
Height
10' 0"
Main Floor Ceiling
9' 0"
Upper Floor Ceiling
10' 0"
Living/Great Room Ceiling
10' 0"
Primary Ceiling
2x6
Framing
Truss
Roof Framing
12:12
Primary Roof Pitch
6:12
Secondary Roof Pitch
Single
Dwelling Number
None
Bonus Access

Unheated Living Space
801 Ft
2
Garage
 

Plan Package Options

 Select Plan Package
 Need To Reverse Plan? (Optional)
  Select Foundation Option
  Add-Ons (Optional)
INCLUDED WITH YOUR PURCHASE

Free Ground shipping in the U.S.

FREE

Home Building & Product Ideas Organizer

Sub Total
$0
Free Shipping
IMPORTANT NOTE: Due to state regulations, this home is not available for purchase in the State of Washington. Contact us for more information.
QUESTIONS OR NEED HELP ORDERING? LIVE CHAT OR CALL US AT 866-214-2242
Plan Packages

Each set of construction documents includes detailed, dimensioned floor plans, basic electric layouts, cross sections, roof details, cabinet layouts and elevations, as well as general IRC specifications. They contain virtually all of the information required to construct your home. The typical plan set does not include any plumbing, HVAC drawings, or engineering stamps due to the wide variety of specific needs, local codes, and climatic conditions. These details and specifications are easily obtained from your builder, contractors, and/or local engineers.

BEST PRICE GUARANTEE

Find the same house plan (modifications included!) and package for less on another site, show us the URL and we'll give you the difference plus an additional 10% back.

100% SATISFACTION GUARANTEE

We offer a one-time, 30-day exchange policy for unused, printed plan packages in the event you aren't satisfied with your first selection.

 
 

Plan 6498  Back to plan page

Loading...