Get discounts,
promos, see our
newest plans
and more!
+ 15% off any plan
See terms opt out anytime


No Thanks

Thanks for
signing up!


Use Code:

SIGNUP15

And save 15% off any plan!

Check your email for details.

CLOSE
Search Plans
Customer Reviews
     
15% off ALL House Plans Sitewide
15% off ALL House Plans Sitewide
15% off ALL House Plans Sitewide

Code: SAVE15
Sale ends midnight 4/22/2026 PST

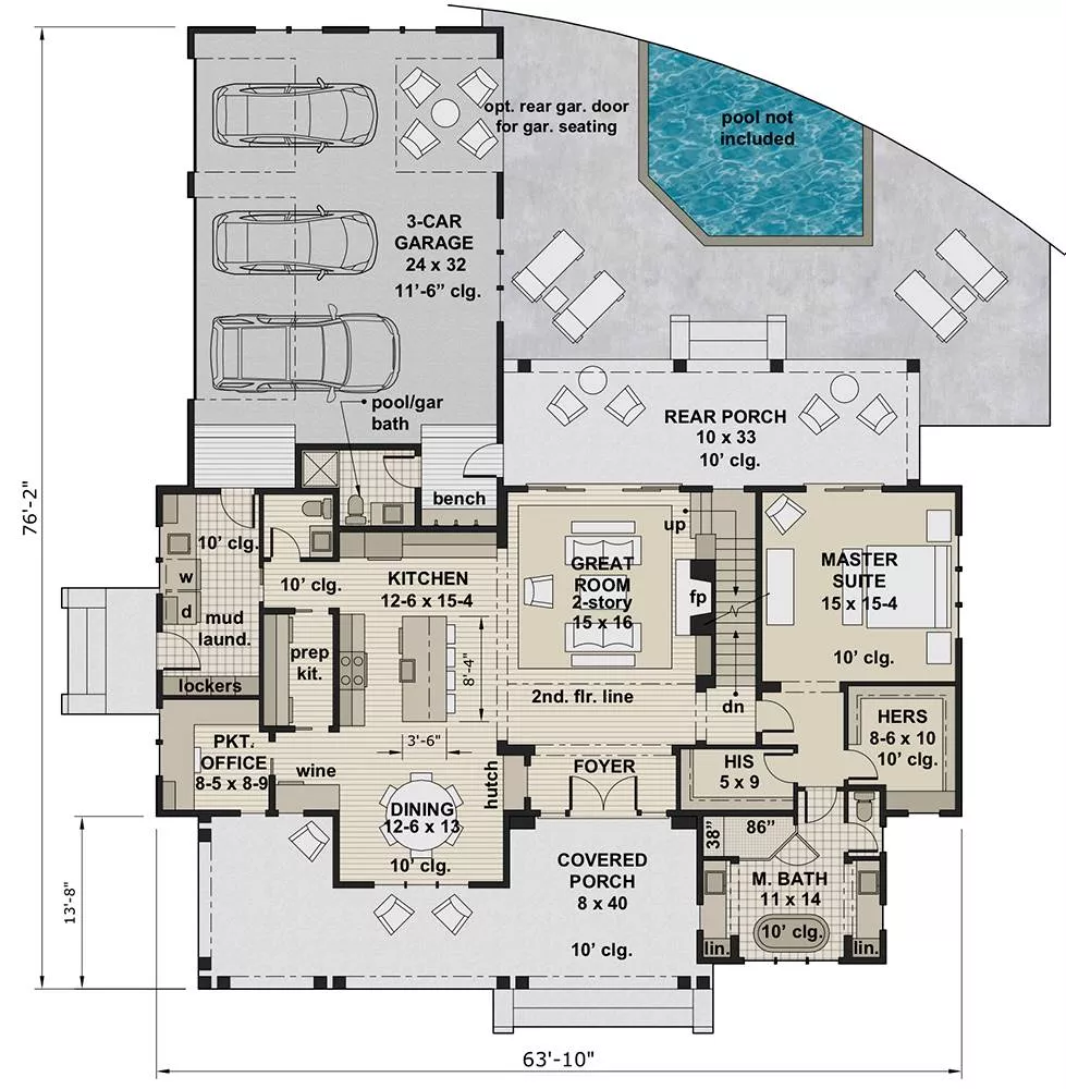
The Reid Beautiful Modern Farmhouse Style House, Plan 6650

 
 

Sq Ft
2,913 FT²

Beds
4

Baths
4.5

Stories
2

Garage
3

Depth
76' 2"

Width
63' 10"
On Sale
$1,742.50
$2,050.00
© copyright by designer
 View All 21 Images | Photographs may reflect modified home
Sq Ft
2,913 FT²
Beds
4
Baths
4.5
Stories
2
Garage
3
Depth
76' 2"
Width
63' 10"
 
Click to Zoom In on Floor Plan
© copyright by designer
 
 

About This Plan

This luxury modern farmhouse was built and customized by Reid & Company Construction in TN. It features a beautiful exterior and a functional floor plan featuring 2,913 s.f. The great room has a two-story ceiling and beautiful windows that access the rear covered porch. The kitchen boasts a large prep island with seating, built-in wine fridge and hutch—perfect for entertaining! A hidden prep island provides additional workspace when needed. A pocket office built next to the kitchen provides a private place for working or doing homework. The master suite provides a private retreat, with his-and-hers closets that lead to an expansive spa-like bathroom. Upstairs, three bedrooms surround a loft; two share a Jack-and-Jill bath and one sits across from a full bathroom. The 3-car garage attaches to the rear of the home, and includes a pool bath and 640 s.f. bonus above the garage. 

See All Plan Options
 

FEATURES & DETAILS

Kitchen features
Kitchen Island
Walk-in Pantry
Bedroom features
Double Vanity Sink
His and Hers Primary Closets
Primary Bdrm Main Floor
Exterior features
Covered Front Porch
Covered Rear Porch
Foundation Options
Basement
Crawlspace
Daylight Basement
Walkout Basement
Lot Options
Suited for view lot
Additional features
Dining Room
Fireplace
Foyer
Great Room
Home Office
Laundry 1st Fl
Library/Media Rm
Loft / Balcony
Mud Room
Open Floor Plan
Storage Space
Vaulted Great Room/Living
Garage Location
Rear
Garage Options
Rear-entry
2,913 Ft
2
Total Heated
1,941 Ft
2
1st Floor
972 Ft
2
2nd Floor
4
Bedrooms
4.5
Bathrooms
3
Garage
2
Stories
63' 10"
Width
76' 2"
Depth
31' 1"
Height
10' 0"
Main Floor Ceiling
9' 0"
Upper Floor Ceiling
2 story' 0"
Living/Great Room Ceiling
2x6
Framing
Truss
Roof Framing
12:12
Primary Roof Pitch
Single
Dwelling Number
2nd Floor
Bonus Access

Unheated Living Space
896 Ft
2
Garage
640 Ft
2
Bonus Room
 

Plan Package Options

 Select Plan Package
 Need To Reverse Plan? (Optional)
  Select Foundation Option
  Add-Ons (Optional)
INCLUDED WITH YOUR PURCHASE

Free Ground shipping in the U.S.

FREE

Home Building & Product Ideas Organizer

Sub Total
$0
Free Shipping
QUESTIONS OR NEED HELP ORDERING? LIVE CHAT OR CALL US AT 866-214-2242
Plan Packages

Each set of construction documents typically includes detailed, dimensioned floor plans, basic electric layouts, cross sections, roof details, cabinet layouts, and elevations, as well as general IRC specifications. Please refer to the ARCHITECT or DESIGNER’S PLAN DETAILS link above the floor plan on any plan page to determine the specific details for each plan. Our house plans contain virtually all of the information required to construct your home. The typical plan set does not include plumbing, HVAC drawings, or engineering stamps due to the wide variety of specific needs, local codes, and climatic conditions. These details and specifications are easily obtained from your builder, contractors, and/or local engineers.

BEST PRICE GUARANTEE

Find the same house plan (modifications included!) and package for less on another site, show us the URL and we'll give you the difference plus an additional 10% back.

100% SATISFACTION GUARANTEE

We offer a one-time, 30-day exchange policy for unused, printed plan packages in the event you aren't satisfied with your first selection.

 
 

Plan 6650  Back to plan page

Loading...