Get discounts,
promos, see our
newest plans
and more!
+ 15% off any plan
See terms opt out anytime


No Thanks

Thanks for
signing up!


Use Code:

SIGNUP15

And save 15% off any plan!

Check your email for details.

CLOSE
Search Plans
     

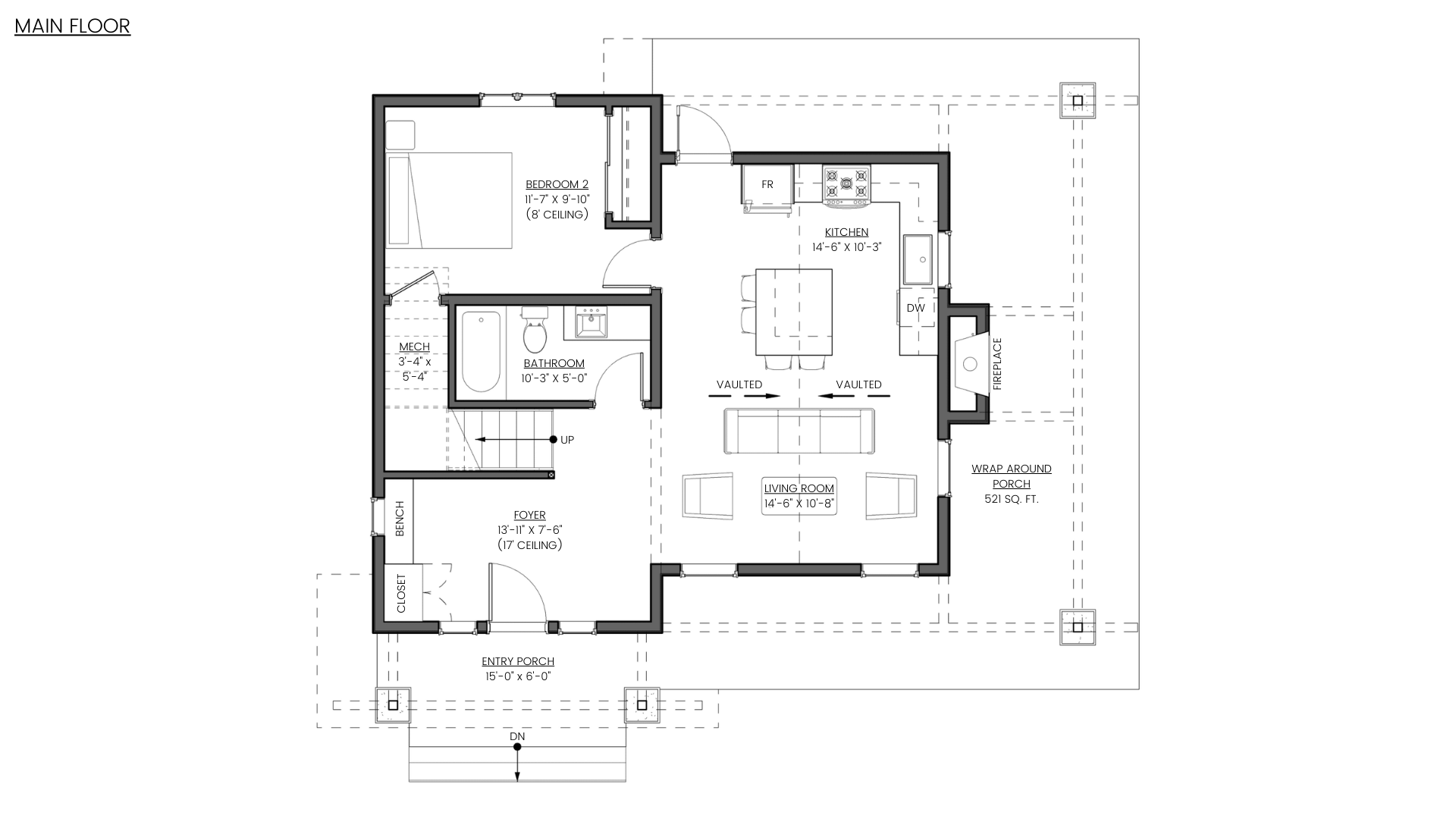
Juniper Ave | 2 Bedroom Lake Style House, Plan 10607

 
 

Sq Ft
988 FT²

Beds
2

Baths
2

Stories
2

Garage
0

Depth
34'

Width
40'
From
$995.00
© copyright by designer
 View All 11 Images | Photographs may reflect modified home
Sq Ft
988 FT²
Beds
2
Baths
2
Stories
2
Garage
0
Depth
34'
Width
40'
 
Click to Zoom In on Floor Plan
© copyright by designer
 
 

About This Plan

Juniper Ave is a charming 988 square foot two-story home that offers big character in a compact footprint. A wraparound porch spans the front, side, and rear, creating a cozy yet grand outdoor living experience centered around a striking exterior fireplace. Inside, a spacious 17-foot-high foyer welcomes you into the vaulted open-concept living area, where the L-shaped kitchen shines with a large island and bar seating perfect for casual dining or entertaining. The main floor includes a full bathroom and a well-sized bedroom ideal for guests or everyday convenience. Upstairs, a private second bedroom and full bathroom create a perfect retreat, making this design ideal for couples, small families, or a stylish getaway home. 

See All Plan Options
 

FEATURES & DETAILS

Kitchen features
Kitchen Island
L-Shaped
Bedroom features
Primary Bdrm Upstairs
Walk-in Closet
Exterior features
Wraparound Porch
Lot Options
Suited for corner lot
Suited for narrow lot
Suited for view lot
Additional features
2 Story Volume
Fireplace
Foyer
Laundry 2nd Fl
Open Floor Plan
Vaulted Ceilings
Vaulted Great Room/Living
Vaulted Kitchen
Garage Options
None
988 Ft
2
Total Heated
750 Ft
2
1st Floor
238 Ft
2
2nd Floor
2
Bedrooms
2
Bathrooms
0
Garage
2
Stories
40' 0"
Width
34' 0"
Depth
24' 10"
Height
8' 0"
Main Floor Ceiling
8' 0"
Upper Floor Ceiling
10' 0"
Living/Great Room Ceiling
17' 0"
Foyer Ceiling
8' 0"
Primary Ceiling
2x6
Framing
Truss
Roof Framing
9:12
Primary Roof Pitch
4:12
Secondary Roof Pitch
4:12
Porch Roof Pitch
Single
Dwelling Number

Unheated Living Space
600 Ft
2
Porch
 

Plan Package Options

 Select Plan Package
$995
PDF Single Build

Digital plans emailed to you in PDF format that allows for printing copies and sharing electronically with contractors, subs, decorators, and more. This package includes a license to build the home one time.

$995
$1,295
PDF Unlimited Build

Digital plans with an unlimited build license emailed in PDF format, that allows for printing copies on a home printer or local print shop and sharing with contractors, subs, decorators and more 

$1,295
$1,695
CAD + PDF Unlimited Build

CAD files are a complete set of construction drawings delivered electronically. They can be used for any type of modification—including major design changes and engineering—and include a release granting permission to modify the plan. Most CAD plan orders are emailed the same or next business day.
 
This package also comes with a PDF set of plans and a multi-use building license, granting permission to construct the home an unlimited number of times, along with a copyright release for making modifications and printing unlimited copies.
 
CAD files are provided in .dwg format. For details on the specific CAD program used, please refer to the PLAN DETAILS section located above the floor plan on each plan’s page.

$1,695
  Select Foundation Option
  Add-Ons (Optional)
INCLUDED WITH YOUR PURCHASE

Free Ground shipping in the Continental U.S.

FREE

Design consultation with the architect or designer to discuss your plan

Home Building & Product Ideas Organizer

Sub Total
$0
Free Shipping
QUESTIONS OR NEED HELP ORDERING? LIVE CHAT OR CALL US AT 866-214-2242
Plan Packages

Each set of construction documents includes detailed, dimensioned floor plans, basic electric layouts, cross sections, roof details, cabinet layouts and elevations, as well as general IRC specifications. They contain virtually all of the information required to construct your home. The typical plan set does not include any plumbing, HVAC drawings, or engineering stamps due to the wide variety of specific needs, local codes, and climatic conditions. These details and specifications are easily obtained from your builder, contractors, and/or local engineers.

BEST PRICE GUARANTEE

find the same house plan (modifications included!) and package for less on another site, show us the URL and we'll give you the difference plus an additional 5% back.

100% SATISFACTION GUARANTEE

We offer a one-time, 30-day exchange policy for unused, non-electronic plan packages in the event you aren't satisfied with your first selection.

 
 

Plan 10607  Back to plan page

Loading...