Get discounts,
promos, see our
newest plans
and more!
+ 15% off any plan
See terms opt out anytime


No Thanks

Thanks for
signing up!


Use Code:

SIGNUP15

And save 15% off any plan!

Check your email for details.

CLOSE
Search Plans
Customer Reviews
     
15% off ALL House Plans Sitewide
15% off ALL House Plans Sitewide
15% off ALL House Plans Sitewide

Code: SAVE15
Sale ends midnight 4/19/2026 PST

Dewberry Lane 4 Bedroom Country Farmhouse Style House, Plan 7460

 
 

Sq Ft
4,348 FT²

Beds
4

Baths
4.5

Stories
2

Garage
3

Depth
82'

Width
70'
On Sale
$2,210.00
$2,600.00
© copyright by designer
 View All 5 Images | Photographs may reflect modified home
Sq Ft
4,348 FT²
Beds
4
Baths
4.5
Stories
2
Garage
3
Depth
82'
Width
70'
 
Click to Zoom In on Floor Plan
© copyright by designer
 
 

About This Plan

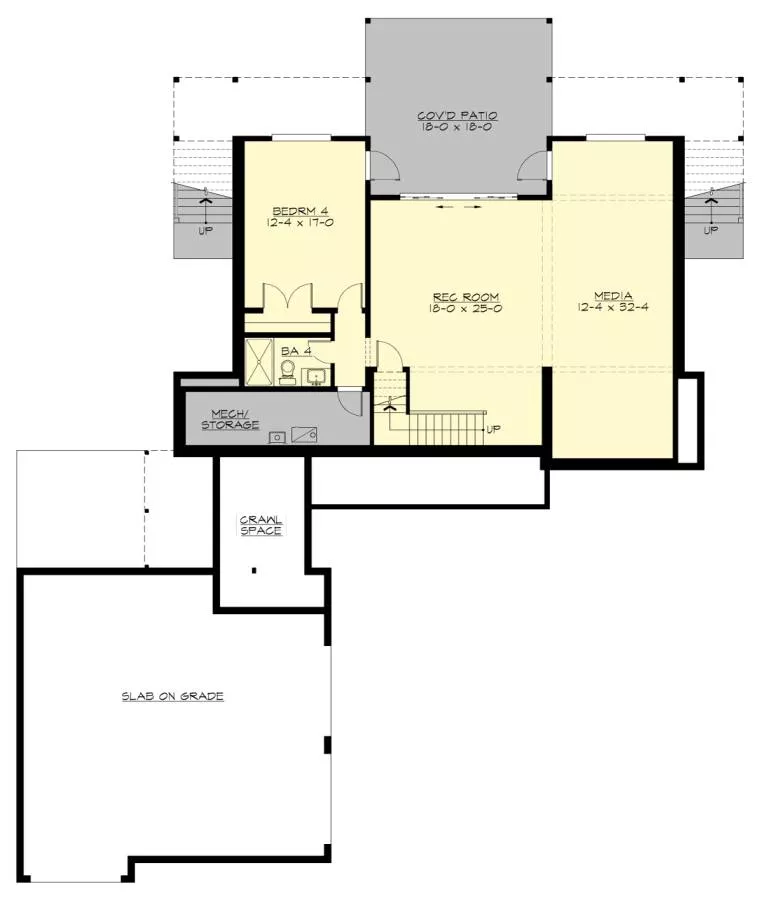
For fans of our original ‘Dewberry’ house plan (THD-7455), we have taken the farm house style and captivating charm that you know and love, and upgraded it! With an additional 1,313 square feet of living space and an a whole new level, this popular plan just got that much better. Perfect for a sloping lot, this plan features a walk-out basement level, resulting in a 3-story, 4,348 square foot home that is sure to amaze. A 3-car garage provides ample parking and storage, as well as access to a patio and covered barbecue porch. Meanwhile, a gorgeous front drive leads to the covered front porch and entryway. Step in to the foyer to be amazed by the great open layout that spans the main floor. The vaulted great room joins with the gourmet island kitchen and dining room with its access to the spacious covered rear porch, to create a totally breathtaking space. Close by, the laundry and a walk-in pantry make for convenient and discreet access. Finally, the stunning master suite is located on the first floor, complete with a spa style bath and double vanities, as well as an amazing walk-in closet. The upper floor is equally as functional and comfortable. Here you will find 2 large bedrooms, each with their own private en-suite, a wonderfully private option for kids or guests to enjoy. The addition of a bonus room above the garage makes for a great space to customize to your family’s specific needs or desires to make this home extremely comfortable. Finally, the basement level, the newest addition to this plan, is one that you have to see to believe. Another bedroom with a full en-suite joins with an expansive rec room and a media room, great for your own private movie theater! A covered patio is available as well, adding to the outdoor living options that this home provides. 

See All Plan Options
 

FEATURES & DETAILS

Kitchen features
Kitchen Island
Nook / Breakfast Area
Peninsula / Eating Bar
Walk-in Pantry
Bedroom features
Double Vanity Sink
Primary Bdrm Main Floor
Separate Tub and Shower
Split Bedrooms
Walk-in Closet
Exterior features
Courtyard
Covered Front Porch
Covered Rear Porch
Deck
Rear Porch
Foundation Options
Daylight Basement
Lot Options
Suited for sloping lot
Additional features
Bonus Room
Dining Room
Exercise Room
Family Room
Fireplace
Formal LR
Foyer
Great Room
Laundry 1st Fl
Mud Room
Open Floor Plan
Rec Room
Storage Space
Vaulted Foyer
Vaulted Great Room/Living
Garage Location
Front
Garage Options
Attached
Courtyard/Motorcourt Entry
Front-entry
4,348 Ft
2
Total Heated
1,635 Ft
2
1st Floor
1,400 Ft
2
2nd Floor
1,313 Ft
2
Lower Floor
4
Bedrooms
4.5
Bathrooms
3
Garage
2
Stories
70' 0"
Width
82' 0"
Depth
27' 6"
Height
9' 0"
Main Floor Ceiling
8' 0"
Upper Floor Ceiling
2x6
Framing
Combination
Roof Framing
12:12
Primary Roof Pitch
4:12
Secondary Roof Pitch
Single
Dwelling Number
2nd Floor
Bonus Access

Unheated Living Space
940 Ft
2
Garage
 

Plan Package Options

 Select Plan Package
 Need To Reverse Plan? (Optional)
  Select Foundation Option
  Add-Ons (Optional)
INCLUDED WITH YOUR PURCHASE

Free Ground shipping in the U.S.

FREE

Home Building & Product Ideas Organizer

Sub Total
$0
Free Shipping
IMPORTANT NOTE: Due to state regulations, this home is not available for purchase in the State of Washington. Contact us for more information.
QUESTIONS OR NEED HELP ORDERING? LIVE CHAT OR CALL US AT 866-214-2242
Plan Packages

Each set of construction documents typically includes detailed, dimensioned floor plans, basic electric layouts, cross sections, roof details, cabinet layouts, and elevations, as well as general IRC specifications. Please refer to the ARCHITECT or DESIGNER’S PLAN DETAILS link above the floor plan on any plan page to determine the specific details for each plan. Our house plans contain virtually all of the information required to construct your home. The typical plan set does not include plumbing, HVAC drawings, or engineering stamps due to the wide variety of specific needs, local codes, and climatic conditions. These details and specifications are easily obtained from your builder, contractors, and/or local engineers.

BEST PRICE GUARANTEE

Find the same house plan (modifications included!) and package for less on another site, show us the URL and we'll give you the difference plus an additional 10% back.

100% SATISFACTION GUARANTEE

We offer a one-time, 30-day exchange policy for unused, printed plan packages in the event you aren't satisfied with your first selection.

 
 

Plan 7460  Back to plan page

Loading...