Get discounts,
promos, see our
newest plans
and more!
+ 15% off any plan
See terms opt out anytime


No Thanks

Thanks for
signing up!


Use Code:

SIGNUP15

And save 15% off any plan!

Check your email for details.

CLOSE
Search Plans
Customer Reviews
     
20% off ALL House Plans Sitewide
20% off ALL House Plans Sitewide
20% off ALL House Plans Sitewide

Code: HONOR20
Sale ends midnight 5/25/2026 PST

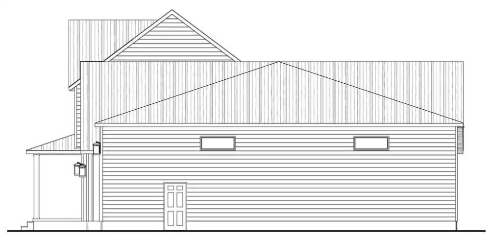
Minto Springs Open Floor Plan Farmhouse Style House, Plan 9337

 
 

Sq Ft
2,769 FT²

Beds
3

Baths
2.5

Stories
2

Garage
3

Depth
60'

Width
116'
On Sale
$1,116.00
$1,395.00
© copyright by designer
 View All 15 Images | Photographs may reflect modified home
Sq Ft
2,769 FT²
Beds
3
Baths
2.5
Stories
2
Garage
3
Depth
60'
Width
116'
 
Click to Zoom In on Floor Plan
© copyright by designer
 
 

About This Plan

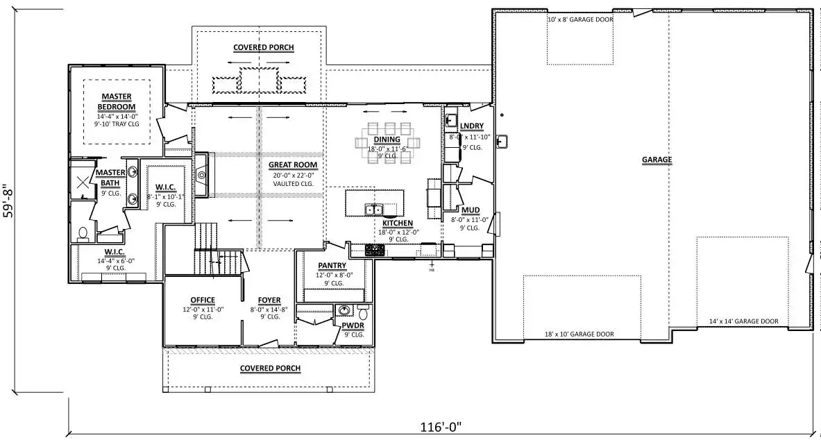
House Plan 9337 is ideal for the average family with a larger than average need for garage parking! This farmhouse design offers 2,769 square feet of living space across two stories, plus a huge garage with a double bay for cars--with room for tandem parking inside--as well as an extra-large bay that can fit an RV or another oversized vehicle. Inside, an office is placed off the foyer before you enter the great room, complete with an island kitchen and a vaulted ceiling over the living space. The primary suite is also placed on the main level and has a tray ceiling, a four-piece bath, and a huge walk-in closet that's easy to share. Head upstairs and the two other bedrooms share a divided hall bath for convenience. House Plan 9337 has a thoughtful design through and though--make sure not to miss the coat closet and powder room off the foyer, the spacious walk-in pantry off the kitchen, the mudroom with built-ins, and the laundry room that connects to the mudroom as well as an exterior door! 

See All Plan Options
 

FEATURES & DETAILS

Kitchen features
Country Kitchen
Kitchen Island
L-Shaped
Walk-in Pantry
Bedroom features
Double Vanity Sink
Primary Bdrm Main Floor
Split Bedrooms
Walk-in Closet
Exterior features
Covered Front Porch
Covered Rear Porch
Additional features
Fireplace
Foyer
Great Room
Home Office
Laundry 1st Fl
Mud Room
Open Floor Plan
Vaulted Ceilings
Vaulted Great Room/Living
Garage Location
Side
Garage Options
Attached
Front-entry
RV Garage
2,769 Ft
2
Total Heated
2,206 Ft
2
1st Floor
563 Ft
2
2nd Floor
2,046 Ft
2
Lower Floor
3
Bedrooms
2.5
Bathrooms
3
Garage
2
Stories
116' 0"
Width
60' 0"
Depth
30' 8"
Height
9' 0"
Main Floor Ceiling
8' 0"
Upper Floor Ceiling
9' 0"
Lower Floor Ceiling
10' 0"
Primary Ceiling
2x4
Framing
Truss
Roof Framing
10/12
Primary Roof Pitch
9/12
Secondary Roof Pitch
Single
Dwelling Number
None
Bonus Access

Unheated Living Space
2,560 Ft
2
Garage
231 Ft
2
Front Porch
465 Ft
2
Rear Porch
 

Plan Package Options

 Select Plan Package
 Need To Reverse Plan? (Optional)
  Select Foundation Option
  Add-Ons (Optional)
INCLUDED WITH YOUR PURCHASE

Free Ground shipping in the U.S.

FREE

Home Building & Product Ideas Organizer

Sub Total
$0
Free Shipping
QUESTIONS OR NEED HELP ORDERING? LIVE CHAT OR CALL US AT 866-214-2242
Plan Packages

Each set of construction documents typically includes detailed, dimensioned floor plans, basic electric layouts, cross sections, roof details, cabinet layouts, and elevations, as well as general IRC specifications. Please refer to the ARCHITECT or DESIGNER’S PLAN DETAILS link above the floor plan on any plan page to determine the specific details for each plan. Our house plans contain virtually all of the information required to construct your home. The typical plan set does not include plumbing, HVAC drawings, or engineering stamps due to the wide variety of specific needs, local codes, and climatic conditions. These details and specifications are easily obtained from your builder, contractors, and/or local engineers.

BEST PRICE GUARANTEE

Find the same house plan (modifications included!) and package for less on another site, show us the URL and we'll give you the difference plus an additional 10% back.

100% SATISFACTION GUARANTEE

We offer a one-time, 30-day exchange policy for unused, printed plan packages in the event you aren't satisfied with your first selection.

 
 

Plan 9337  Back to plan page

Loading...