Get discounts,
promos, see our
newest plans
and more!
+ 15% off any plan
See terms opt out anytime


No Thanks

Thanks for
signing up!


Use Code:

SIGNUP15

And save 15% off any plan!

Check your email for details.

CLOSE
Search Plans
     
20% Off House Plans Sitewide Ends Tuesday
20% Off House Plans Sitewide Ends Tuesday
20% Off House Plans Sitewide Ends Tuesday

Code: VET20
Sale ends midnight 11/11/2025 PST

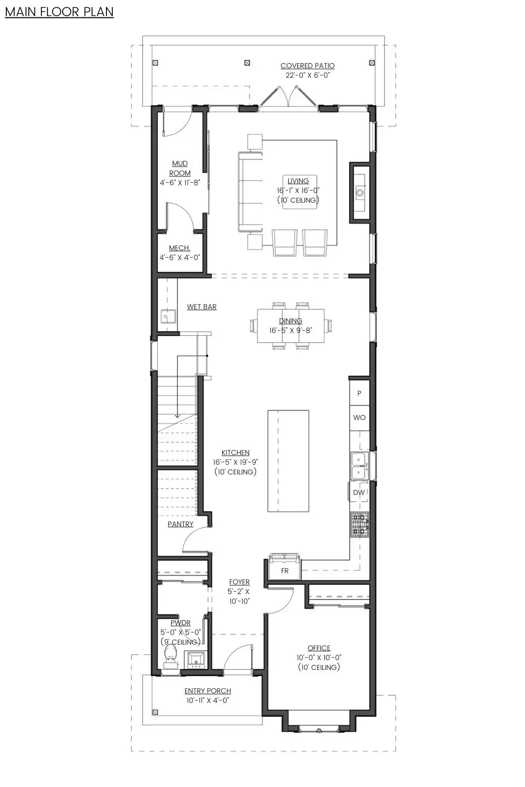
Arden Mills 4 Bedroom Craftsman Style House, Plan 10083

 
 

Sq Ft
2,494 FT²

Beds
3

Baths
2.5

Stories
2

Garage
0

Depth
64' 6"

Width
22'
On Sale
$956.00
$1,195.00
© copyright by designer
 View All 8 Images | Photographs may reflect modified home
Sq Ft
2,494 FT²
Beds
3
Baths
2.5
Stories
2
Garage
0
Depth
64' 6"
Width
22'
 
Click to Zoom In on Floor Plan
© copyright by designer
 
 

About This Plan

Arden Mills House Plan is a thoughtfully designed 2,494 sq ft farmhouse perfect for narrow lots at just 22' wide. This home offers 4 bedrooms, 2.5 baths, with all bedrooms and a convenient laundry room located on the second floor. The foyer leads to a home office and powder room, while the back of the home opens to a spacious kitchen with a walk-in pantry, an impressive island, wet bar, and unobstructed views to the dining and living areas. A generous mudroom adds to the livability, making Arden Mills an ideal blend of style and functionality.
 

See All Plan Options
 

FEATURES & DETAILS

Kitchen features
Kitchen Island
L-Shaped
Pantry
Peninsula / Eating Bar
Bedroom features
Double Vanity Sink
Family Style
Primary Bdrm Upstairs
Separate Tub and Shower
Walk-in Closet
Exterior features
Covered Front Porch
Covered Rear Porch
Lot Options
Suited for corner lot
Suited for narrow lot
Suited for view lot
Additional features
Dining Room
Fireplace
Formal LR
Foyer
Home Office
Laundry 1st Fl
Laundry 2nd Fl
Mud Room
Open Floor Plan
2,494 Ft
2
Total Heated
1,276 Ft
2
1st Floor
1,218 Ft
2
2nd Floor
3
Bedrooms
2.5
Bathrooms
0
Garage
2
Stories
22' 0"
Width
64' 6"
Depth
31' 5"
Height
10' 0"
Main Floor Ceiling
9' 0"
Upper Floor Ceiling
2x6
Framing
Truss
Roof Framing
9/12
Primary Roof Pitch
4/12
Secondary Roof Pitch
Single
Dwelling Number
None
Bonus Access

Unheated Living Space
143 Ft
2
Porch
 

Plan Package Options

 Select Plan Package
Sale: $956
PDF Single Build
$1,195

Digital plans emailed to you in PDF format that allows for printing copies and sharing electronically with contractors, subs, decorators, and more. This package includes a license to build the home one time.

Sale: $956
Sale: $1,196
PDF Unlimited Build
$1,495

Digital plans with an unlimited build license emailed in PDF format, that allows for printing copies on a home printer or local print shop and sharing with contractors, subs, decorators and more 

Sale: $1,196
Sale: $1,596
CAD + PDF Unlimited Build
$1,995

CAD files are a complete set of construction drawings delivered electronically. They can be used for any type of modification—including major design changes and engineering—and include a release granting permission to modify the plan. Most CAD plan orders are emailed the same or next business day.
 
This package also comes with a PDF set of plans and a multi-use building license, granting permission to construct the home an unlimited number of times, along with a copyright release for making modifications and printing unlimited copies.
 
CAD files are provided in .dwg format. For details on the specific CAD program used, please refer to the PLAN DETAILS section located above the floor plan on each plan’s page.

Sale: $1,596
  Select Foundation Option
  Add-Ons (Optional)
INCLUDED WITH YOUR PURCHASE

Free Ground shipping in the Continental U.S.

FREE

Design consultation with the architect or designer to discuss your plan

Home Building & Product Ideas Organizer

Sub Total
$0
Free Shipping
QUESTIONS OR NEED HELP ORDERING? LIVE CHAT OR CALL US AT 866-214-2242
Plan Packages

Each set of construction documents includes detailed, dimensioned floor plans, basic electric layouts, cross sections, roof details, cabinet layouts and elevations, as well as general IRC specifications. They contain virtually all of the information required to construct your home. The typical plan set does not include any plumbing, HVAC drawings, or engineering stamps due to the wide variety of specific needs, local codes, and climatic conditions. These details and specifications are easily obtained from your builder, contractors, and/or local engineers.

BEST PRICE GUARANTEE

find the same house plan (modifications included!) and package for less on another site, show us the URL and we'll give you the difference plus an additional 5% back.

100% SATISFACTION GUARANTEE

We offer a one-time, 30-day exchange policy for unused, non-electronic plan packages in the event you aren't satisfied with your first selection.

 
 

Plan 10083  Back to plan page

Loading...