Get discounts,
promos, see our
newest plans
and more!
+ 15% off any plan
See terms opt out anytime


No Thanks

Thanks for
signing up!


Use Code:

SIGNUP15

And save 15% off any plan!

Check your email for details.

CLOSE
Search Plans
Customer Reviews
     

Twingate 6 Bedroom Family Craftsman Style House, Plan 6660

 
 

Sq Ft
3,295 FT²

Beds
6

Baths
3.5

Stories
2

Garage
2

Depth
40'

Width
46'
From
$2,310.00
© copyright by designer
 View All 6 Images | Photographs may reflect modified home
Sq Ft
3,295 FT²
Beds
6
Baths
3.5
Stories
2
Garage
2
Depth
40'
Width
46'
 
Click to Zoom In on Floor Plan
© copyright by designer
 
 

About This Plan

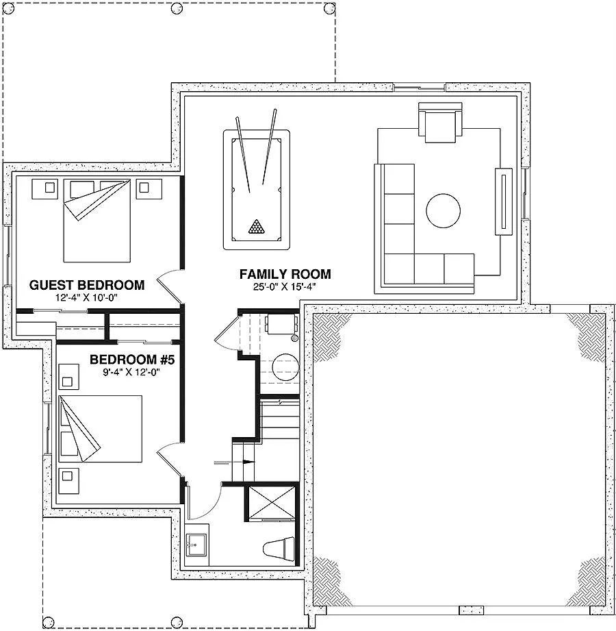
This charming country farmhouse boasts 6 bedrooms and 3.5 bathrooms spread over three levels, including a finished lower level, providing ample space for family and guests. The main level features a welcoming front porch that leads to a spacious foyer with home office. An open floor plan seamlessly flows from the great room to the kitchen and dining area. The kitchen boasts a large center island, walk-in pantry, and access to a covered porch, making it perfect for entertaining guests. The upper level features four bedrooms, a laundry room and master suite. The lower level features a large recreation and family room, 2 bedrooms and a full bath. This country farmhouse offers the perfect blend of modern amenities and rustic charm, providing a comfortable space for multi-generational living. 

See All Plan Options
 

FEATURES & DETAILS

Kitchen features
Kitchen Island
L-Shaped
Walk-in Pantry
Bedroom features
Double Vanity Sink
Guest Suite
His and Hers Primary Closets
Primary Bdrm Upstairs
Separate Tub and Shower
Walk-in Closet
Exterior features
Covered Front Porch
Covered Rear Porch
Lot Options
Suited for corner lot
Suited for view lot
Additional features
Arches
Dining Room
Family Room
Fireplace
Formal LR
Foyer
Home Office
Laundry 2nd Fl
Open Floor Plan
Rec Room
Garage Location
Front
Garage Options
Attached
Front-entry
3,295 Ft
2
Total Heated
981 Ft
2
1st Floor
1,333 Ft
2
2nd Floor
981 Ft
2
Lower Floor
6
Bedrooms
3.5
Bathrooms
2
Garage
2
Stories
46' 0"
Width
40' 0"
Depth
32' 8"
Height
8' 0"
Main Floor Ceiling
8' 0"
Upper Floor Ceiling
8' 0"
Lower Floor Ceiling
2x6
Framing
Truss
Roof Framing
16
Primary Roof Pitch
16
Secondary Roof Pitch
Single
Dwelling Number
None
Bonus Access

Unheated Living Space
545 Ft
2
Garage
 

Plan Package Options

 Select Plan Package
$2,310
PDF Single Build

Digital plans emailed to you in PDF format that allows for printing copies and sharing electronically with contractors, subs, decorators, and more. This package includes a license to build the home one time.

$2,310
$2,450
3 sets + PDF
Please allow 3-5 days for delivery
$2,450
$3,310
CAD + PDF Single Build

CAD files are a complete set of construction drawings delivered electronically. They can be used for any type of modification—including major design changes and engineering—and include a release granting permission to modify the plan. Most CAD plan orders are emailed the same or next business day.
 
This package also comes with a PDF set of plans and a copyright release for making modifications and printing unlimited copies.
 
CAD files are provided in .dwg format. For details on the specific CAD program used, please refer to the PLAN DETAILS section located above the floor plan on each plan’s page.

$3,310
 Need To Reverse Plan? (Optional)
$265
Readable Reverse

Reverse house plans with readable text and dimensions 

$265
  Select Foundation Option
  Add-Ons (Optional)
INCLUDED WITH YOUR PURCHASE

Free Ground shipping in the Continental U.S.

FREE

Design consultation with the architect or designer to discuss your plan

Home Building & Product Ideas Organizer

Sub Total
$0
Free Shipping
Please allow 3-5 business days for delivery of this plan Please check our PDFs NOW collection for plans that can be downloaded and received immediately or live chat us to help you find a similar plan available now.
QUESTIONS OR NEED HELP ORDERING? LIVE CHAT OR CALL US AT 866-214-2242
Plan Packages

Each set of construction documents includes detailed, dimensioned floor plans, basic electric layouts, cross sections, roof details, cabinet layouts and elevations, as well as general IRC specifications. They contain virtually all of the information required to construct your home. The typical plan set does not include any plumbing, HVAC drawings, or engineering stamps due to the wide variety of specific needs, local codes, and climatic conditions. These details and specifications are easily obtained from your builder, contractors, and/or local engineers.

BEST PRICE GUARANTEE

find the same house plan (modifications included!) and package for less on another site, show us the URL and we'll give you the difference plus an additional 5% back.

100% SATISFACTION GUARANTEE

We offer a one-time, 30-day exchange policy for unused, non-electronic plan packages in the event you aren't satisfied with your first selection.

 
 

Plan 6660  Back to plan page

Loading...