Get discounts,
promos, see our
newest plans
and more!
+ 15% off any plan
See terms opt out anytime


No Thanks

Thanks for
signing up!


Use Code:

SIGNUP15

And save 15% off any plan!

Check your email for details.

CLOSE
Search Plans
Customer Reviews
     
15% off ALL House Plans Sitewide
15% off ALL House Plans Sitewide
15% off ALL House Plans Sitewide

Code: SAVE15
Sale ends midnight 4/19/2026 PST

The Willow Tree Charming Country Farmhouse Style House, Plan 5976

 
 

Sq Ft
2,935 FT²

Beds
4

Baths
4.5

Stories
2

Garage
3

Depth
61'

Width
86'
On Sale
$1,831.75
$2,155.00
© copyright by designer
 View All 5 Images | Photographs may reflect modified home
Sq Ft
2,935 FT²
Beds
4
Baths
4.5
Stories
2
Garage
3
Depth
61'
Width
86'
 
Click to Zoom In on Floor Plan
© copyright by designer
 
 

About This Plan

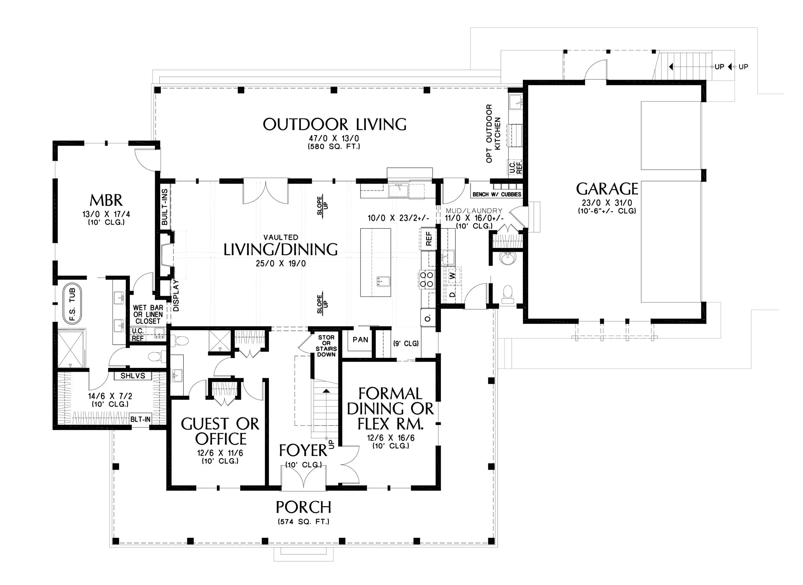
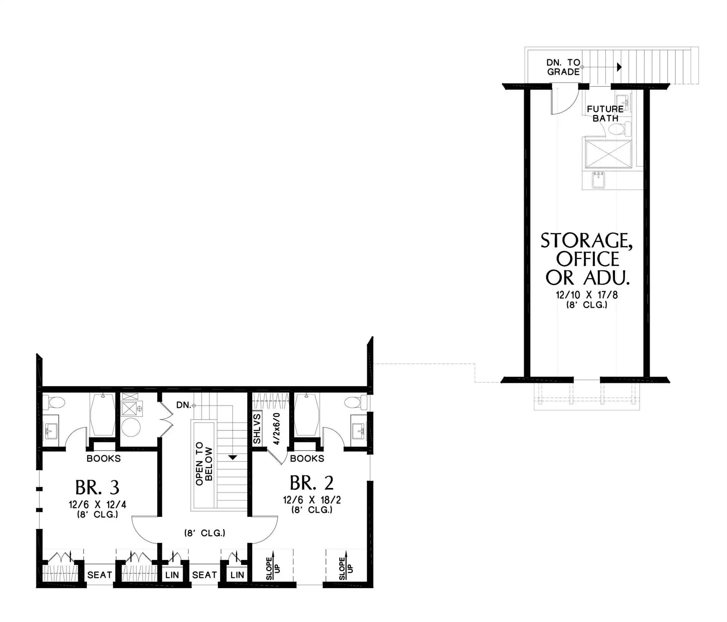
Approaching The Willow Tree, a timeless 2,935 square foot classic country farmhouse, you'll be immediately captivated by its inviting wrap-around porch, setting the stage for the treasures inside. To your right, a versatile space stands ready for transformation, whether as a formal dining room or a cozy den, tailored to your unique lifestyle and preferences. On the left, a flexible guest suite or an office area offers convenience and practicality, designed to meet your specific needs. Continuing down the hallway, a spectacular vaulted living and dining area unfolds, seamlessly connecting to a well-appointed kitchen featuring a spacious island, the true heart of this home. Just beyond the kitchen, a practical mudroom and laundry area grant access to the garage, ensuring everyday convenience. On the opposite side of the home, a luxurious master bedroom awaits, complete with a spa-like en-suite boasting a shower, a soothing tub, dual sinks, and an ample walk-in closet. Towards the rear of the home, a generous outdoor living space beckons you to revel in the joys of nature, with the option to create your own outdoor kitchen—a perfect setting for entertaining and embracing the fresh air. Ascending to the upper level, a versatile loft area stands ready to accommodate various uses. Additionally, two well-appointed bedrooms, each with its private bathroom, guarantee that everyone enjoys their personal space. Above the 3-car garage, an optional area offers ample storage or can be configured as an accessory dwelling unit (ADU), delivering increased flexibility and customization to seamlessly align with your lifestyle. 

See All Plan Options
 

FEATURES & DETAILS

Kitchen features
Butler's Pantry
Kitchen Island
Pantry
Bedroom features
Double Vanity Sink
Guest Suite
Primary Bdrm Main Floor
Separate Tub and Shower
Split Bedrooms
Walk-in Closet
Exterior features
Covered Front Porch
Covered Rear Porch
Outdoor Kitchen
Outdoor Living Space
Wraparound Porch
Lot Options
Suited for view lot
Additional features
Bonus Room
Dining Room
Fireplace
Formal LR
Foyer
Home Office
Laundry 1st Fl
Mud Room
Open Floor Plan
Storage Space
Unfinished Space
Vaulted Great Room/Living
Vaulted Kitchen
Garage Location
Side
Garage Options
Attached
Front-entry
Side-entry
2,935 Ft
2
Total Heated
2,237 Ft
2
1st Floor
689 Ft
2
2nd Floor
427 Ft
2
ADU
4
Bedrooms
4.5
Bathrooms
3
Garage
2
Stories
86' 0"
Width
61' 0"
Depth
28' 1"
Height
10' 0"
Main Floor Ceiling
8' 0"
Upper Floor Ceiling
10' 0"
Foyer Ceiling
10' 0"
Primary Ceiling
2x6
Framing
Truss
Roof Framing
8/12
Primary Roof Pitch
Single
Dwelling Number
2nd Floor
Bonus Access

Unheated Living Space
780 Ft
2
Garage
574 Ft
2
Porch
580 Ft
2
Deck
427 Ft
2
Bonus Room
 

Plan Package Options

 Select Plan Package
 Need To Reverse Plan? (Optional)
  Select Foundation Option
  Add-Ons (Optional)
INCLUDED WITH YOUR PURCHASE

Free Ground shipping in the U.S.

FREE

Home Building & Product Ideas Organizer

Sub Total
$0
Free Shipping
QUESTIONS OR NEED HELP ORDERING? LIVE CHAT OR CALL US AT 866-214-2242
Plan Packages

Each set of construction documents typically includes detailed, dimensioned floor plans, basic electric layouts, cross sections, roof details, cabinet layouts, and elevations, as well as general IRC specifications. Please refer to the ARCHITECT or DESIGNER’S PLAN DETAILS link above the floor plan on any plan page to determine the specific details for each plan. Our house plans contain virtually all of the information required to construct your home. The typical plan set does not include plumbing, HVAC drawings, or engineering stamps due to the wide variety of specific needs, local codes, and climatic conditions. These details and specifications are easily obtained from your builder, contractors, and/or local engineers.

BEST PRICE GUARANTEE

Find the same house plan (modifications included!) and package for less on another site, show us the URL and we'll give you the difference plus an additional 10% back.

100% SATISFACTION GUARANTEE

We offer a one-time, 30-day exchange policy for unused, printed plan packages in the event you aren't satisfied with your first selection.

 
 

Plan 5976  Back to plan page

Loading...