Get discounts,
promos, see our
newest plans
and more!
+ 15% off any plan
See terms opt out anytime


No Thanks

Thanks for
signing up!


Use Code:

SIGNUP15

And save 15% off any plan!

Check your email for details.

CLOSE
Search Plans
Customer Reviews
     
15% off ALL House Plans Sitewide
15% off ALL House Plans Sitewide
15% off ALL House Plans Sitewide

Code: SAVE15
Sale ends midnight 4/22/2026 PST

Starling Acres | 3 Bedroom Barndominium Style House, Plan 11577

 
 

Sq Ft
2,191 FT²

Beds
3

Baths
3

Stories
2

Garage
3

Depth
82'

Width
50'
On Sale
$1,487.50
$1,750.00
© copyright by designer
 View All 30 Images | Photographs may reflect modified home
Sq Ft
2,191 FT²
Beds
3
Baths
3
Stories
2
Garage
3
Depth
82'
Width
50'
 
Click to Zoom In on Floor Plan
© copyright by designer
 
 

About This Plan

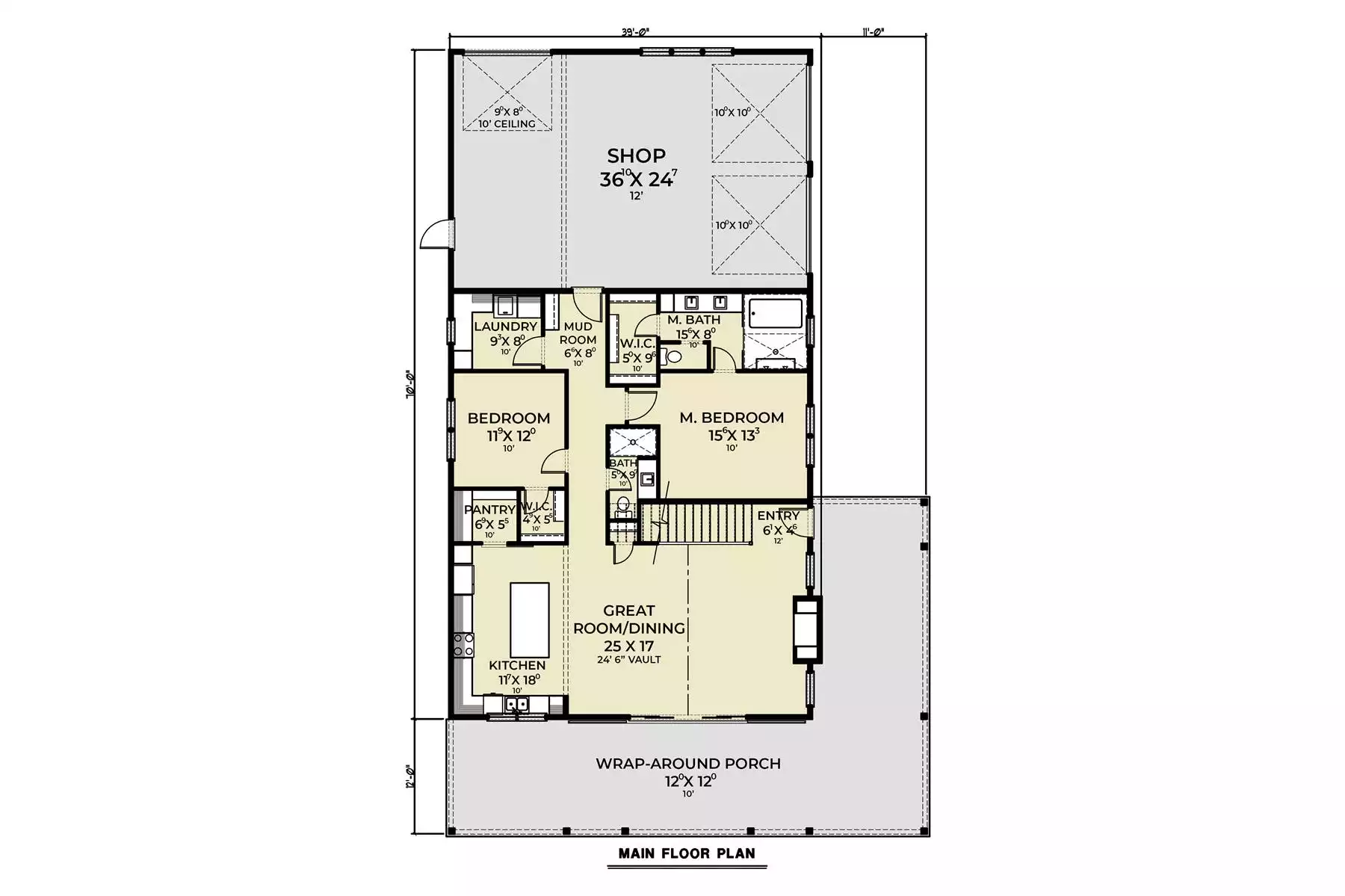
Starling Acres is a 2,191-square-foot modern barndominium that perfectly combines rustic charm with practical, family-friendly design. A large wrap-around porch enhances its farmhouse appeal while offering plenty of space to relax and enjoy the outdoors. Inside, the open-concept great room and dining area feature vaulted ceilings and an airy layout that flows seamlessly into the L-shaped kitchen, complete with a spacious island and walk-in pantry. The main-level primary suite includes a luxurious ensuite with dual vanities and a large walk-in closet, while a second bedroom with its own ensuite provides comfort for guests or family. A generous laundry and mudroom connect to the oversized garage, which doubles as a workshop with three entry points—ideal for farmers, hobbyists, or anyone needing equipment storage. Upstairs, a third bedroom with an ensuite and a flexible loft space add versatility for work, guests, or recreation. Thoughtfully designed for both living and working, Starling Acres offers the perfect blend of modern convenience and rustic style. 

See All Plan Options
 

FEATURES & DETAILS

Kitchen features
Country Kitchen
Kitchen Island
Pantry
Peninsula / Eating Bar
U-Shaped
Walk-in Pantry
Bedroom features
Double Vanity Sink
Primary Bdrm Main Floor
Separate Tub and Shower
Walk-in Closet
Exterior features
Covered Front Porch
Front Porch
Outdoor Living Space
Wraparound Porch
Lot Options
Suited for corner lot
Additional features
Dining Room
Fireplace
Great Room
Laundry 1st Fl
Loft / Balcony
Mud Room
Open Floor Plan
Vaulted Ceilings
Vaulted Great Room/Living
Garage Location
Side
Garage Options
Attached
Oversized
RV Garage
Side-entry
4,010 Ft
2
Total Structure
2,191 Ft
2
Total Heated
1,717 Ft
2
1st Floor
474 Ft
2
2nd Floor
3
Bedrooms
3
Bathrooms
3
Garage
2
Stories
50' 0"
Width
82' 0"
Depth
28' 1"
Height
10' 1"
Main Floor Ceiling
8' 1"
Upper Floor Ceiling
2x6
Framing
Truss
Roof Framing
12/12
Primary Roof Pitch
4/12
Secondary Roof Pitch
Single
Dwelling Number

Unheated Living Space
950 Ft
2
Garage
869 Ft
2
Front Porch
 

Plan Package Options

 Select Plan Package
 Need To Reverse Plan? (Optional)
  Select Foundation Option
  Add-Ons (Optional)
INCLUDED WITH YOUR PURCHASE

Free Ground shipping in the U.S.

FREE

Home Building & Product Ideas Organizer

Sub Total
$0
Free Shipping
QUESTIONS OR NEED HELP ORDERING? LIVE CHAT OR CALL US AT 866-214-2242
Plan Packages

Each set of construction documents typically includes detailed, dimensioned floor plans, basic electric layouts, cross sections, roof details, cabinet layouts, and elevations, as well as general IRC specifications. Please refer to the ARCHITECT or DESIGNER’S PLAN DETAILS link above the floor plan on any plan page to determine the specific details for each plan. Our house plans contain virtually all of the information required to construct your home. The typical plan set does not include plumbing, HVAC drawings, or engineering stamps due to the wide variety of specific needs, local codes, and climatic conditions. These details and specifications are easily obtained from your builder, contractors, and/or local engineers.

BEST PRICE GUARANTEE

Find the same house plan (modifications included!) and package for less on another site, show us the URL and we'll give you the difference plus an additional 10% back.

100% SATISFACTION GUARANTEE

We offer a one-time, 30-day exchange policy for unused, printed plan packages in the event you aren't satisfied with your first selection.

 
 

Plan 11577  Back to plan page

Loading...