Get discounts,
promos, see our
newest plans
and more!
+ 15% off any plan
See terms opt out anytime


No Thanks

Thanks for
signing up!


Use Code:

SIGNUP15

And save 15% off any plan!

Check your email for details.

CLOSE
Search Plans
Customer Reviews
     
15% off ALL House Plans Sitewide
15% off ALL House Plans Sitewide
15% off ALL House Plans Sitewide

Code: SAVE15
Sale ends midnight 4/22/2026 PST

Ridgehaven Path | 3 Bedroom Craftsman Style House, Plan 11754

 
 

Sq Ft
1,933 FT²

Beds
3

Baths
2.5

Stories
2

Garage
2

Depth
48'

Width
40'
On Sale
$973.25
$1,145.00
© copyright by designer
 View All 22 Images | Photographs may reflect modified home
Sq Ft
1,933 FT²
Beds
3
Baths
2.5
Stories
2
Garage
2
Depth
48'
Width
40'
 
Click to Zoom In on Floor Plan
© copyright by designer
 
 

About This Plan

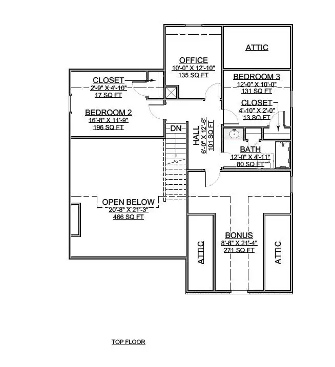
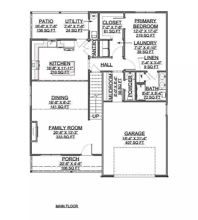
This charming 1,933 square feet home offers a warm and inviting layout designed for comfortable family living. The main-floor primary suite brings convenience and privacy, while the split-bedroom layout ensures quiet, restful spaces for everyone. An open family room connects easily to the dining area and kitchen, making daily life flow naturally. The kitchen includes a walk-in pantry, peninsula seating, and an L-shaped layout that welcomes gathering and conversation. A dedicated home office and mud room add practical function to busy routines. Upstairs, the bonus room offers flexible space for hobbies, play, or future expansion. With its thoughtful layout and cozy touches, this home provides a relaxing place for your family to grow and enjoy each day. 

See All Plan Options
 

FEATURES & DETAILS

Kitchen features
Kitchen Island
L-Shaped
Peninsula / Eating Bar
Walk-in Pantry
Bedroom features
Double Vanity Sink
Primary Bdrm Main Floor
Split Bedrooms
Walk-in Closet
Exterior features
Covered Front Porch
Lot Options
Suited for corner lot
Additional features
Bonus Room
Dining Room
Family Room
Fireplace
Home Office
Laundry 1st Fl
Mud Room
Garage Location
Front
Garage Options
Attached
Front-entry
1,933 Ft
2
Total Heated
1,251 Ft
2
1st Floor
682 Ft
2
2nd Floor
3
Bedrooms
2.5
Bathrooms
2
Garage
2
Stories
40' 0"
Width
48' 0"
Depth
27' 4"
Height
9' 0"
Main Floor Ceiling
8' 0"
Upper Floor Ceiling
2x4
Framing
Stick
Roof Framing
10/12
Primary Roof Pitch
14/12
Secondary Roof Pitch
Single
Dwelling Number
2nd Floor
Bonus Access

Unheated Living Space
407 Ft
2
Garage
106 Ft
2
Porch
272 Ft
2
Bonus Room
 

Plan Package Options

 Select Plan Package
 Need To Reverse Plan? (Optional)
  Select Foundation Option
  Add-Ons (Optional)
INCLUDED WITH YOUR PURCHASE

Free Ground shipping in the U.S.

FREE

Home Building & Product Ideas Organizer

Sub Total
$0
Free Shipping
QUESTIONS OR NEED HELP ORDERING? LIVE CHAT OR CALL US AT 866-214-2242
Plan Packages

Each set of construction documents typically includes detailed, dimensioned floor plans, basic electric layouts, cross sections, roof details, cabinet layouts, and elevations, as well as general IRC specifications. Please refer to the ARCHITECT or DESIGNER’S PLAN DETAILS link above the floor plan on any plan page to determine the specific details for each plan. Our house plans contain virtually all of the information required to construct your home. The typical plan set does not include plumbing, HVAC drawings, or engineering stamps due to the wide variety of specific needs, local codes, and climatic conditions. These details and specifications are easily obtained from your builder, contractors, and/or local engineers.

BEST PRICE GUARANTEE

Find the same house plan (modifications included!) and package for less on another site, show us the URL and we'll give you the difference plus an additional 10% back.

100% SATISFACTION GUARANTEE

We offer a one-time, 30-day exchange policy for unused, printed plan packages in the event you aren't satisfied with your first selection.

 
 

Plan 11754  Back to plan page

Loading...