Get discounts,
promos, see our
newest plans
and more!
+ 15% off any plan
See terms opt out anytime


No Thanks

Thanks for
signing up!


Use Code:

SIGNUP15

And save 15% off any plan!

Check your email for details.

CLOSE
Search Plans
Customer Reviews
     
15% off ALL House Plans Sitewide
15% off ALL House Plans Sitewide
15% off ALL House Plans Sitewide

Code: SAVE15
Sale ends midnight 4/19/2026 PST

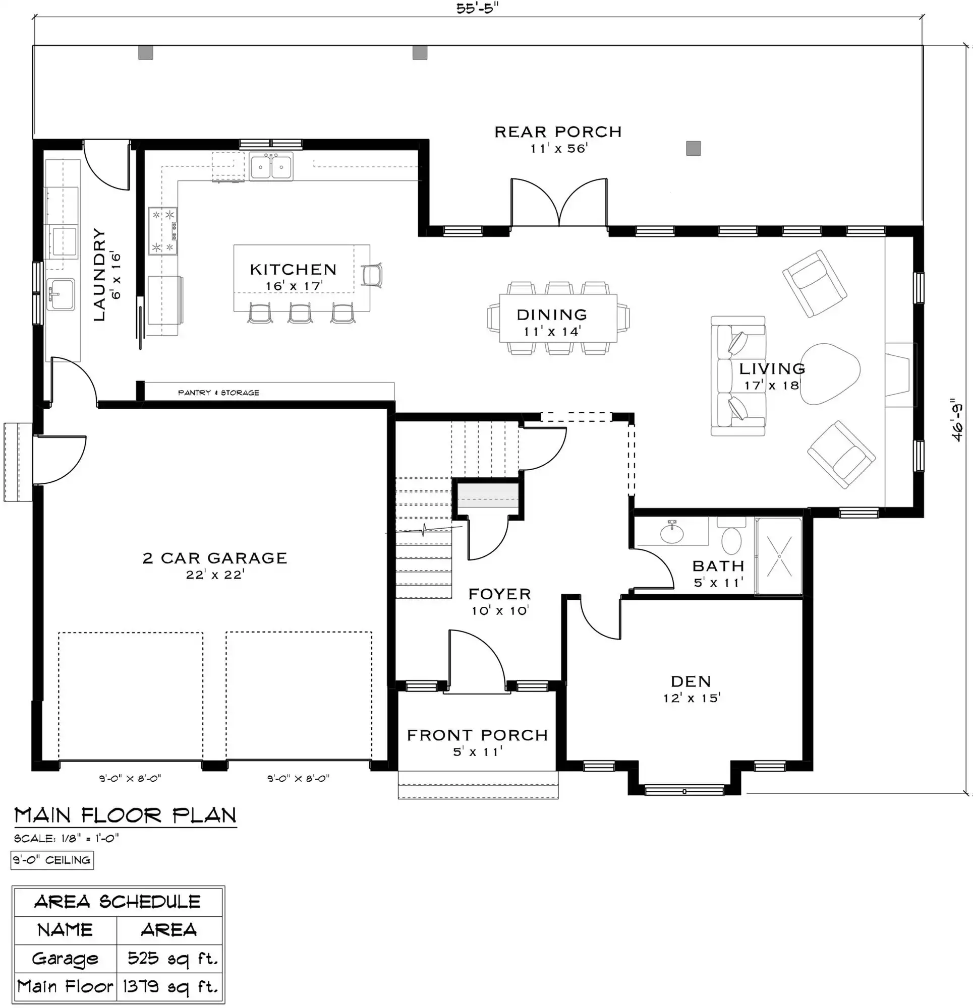
Maple Grove Two Story Cottage Style House, Plan 9301

 
 

Sq Ft
2,559 FT²

Beds
3

Baths
3

Stories
2

Garage
2

Depth
46' 9"

Width
55' 5"
On Sale
$1,245.25
$1,465.00
© copyright by designer
 View All 9 Images | Photographs may reflect modified home
Sq Ft
2,559 FT²
Beds
3
Baths
3
Stories
2
Garage
2
Depth
46' 9"
Width
55' 5"
 
Click to Zoom In on Floor Plan
© copyright by designer
 
 

About This Plan

If you're looking for a cottage with traditional and modern appeal, stop and take a look at House Plan 9301. This lovely design has Craftsman decorative elements for curb appeal and a great 2,559-square-foot layout for a family. The main level places the den and a full bath off the foyer while the open common areas spread out in back, with an L-shaped island kitchen, dining space, and a living room with a fireplace. The back porch spans the entire rear of the house! There's also a rear entry from the back porch that enters into the laundry/mudroom to help contain any messes coming inside. All three bedrooms are located upstairs. The primary suite has a five-piece bath and its own covered deck looking over the back yard while the two other bedrooms share a four-piece hall bath. This arrangement is perfect for traditionalists and families with younger kids!  

See All Plan Options
 

FEATURES & DETAILS

Kitchen features
Kitchen Island
L-Shaped
Pantry
Bedroom features
Double Vanity Sink
Family Style
Primary Bdrm Upstairs
Separate Tub and Shower
Walk-in Closet
Exterior features
Deck
Front Porch
Rear Porch
Lot Options
Suited for view lot
Additional features
Fireplace
Foyer
Great Room
Home Office
Laundry 1st Fl
Mud Room
Open Floor Plan
Garage Location
Front
Garage Options
Attached
Front-entry
3,747 Ft
2
Total Structure
2,559 Ft
2
Total Heated
1,379 Ft
2
1st Floor
1,180 Ft
2
2nd Floor
3
Bedrooms
3
Bathrooms
2
Garage
2
Stories
55' 5"
Width
46' 9"
Depth
30' 6"
Height
9' 0"
Main Floor Ceiling
8' 0"
Upper Floor Ceiling
9' 0"
Living/Great Room Ceiling
9' 0"
Foyer Ceiling
8' 0"
Primary Ceiling
2x6
Framing
Truss
Roof Framing
9/12
Primary Roof Pitch
9/12
Secondary Roof Pitch
Single
Dwelling Number
None
Bonus Access

Unheated Living Space
525 Ft
2
Garage
555 Ft
2
Porch
55 Ft
2
Front Porch
500 Ft
2
Rear Porch
108 Ft
2
Deck
 

Plan Package Options

 Select Plan Package
 Need To Reverse Plan? (Optional)
  Select Foundation Option
  Add-Ons (Optional)
INCLUDED WITH YOUR PURCHASE

Free Ground shipping in the U.S.

FREE

Home Building & Product Ideas Organizer

Sub Total
$0
Free Shipping
QUESTIONS OR NEED HELP ORDERING? LIVE CHAT OR CALL US AT 866-214-2242
Plan Packages

Each set of construction documents typically includes detailed, dimensioned floor plans, basic electric layouts, cross sections, roof details, cabinet layouts, and elevations, as well as general IRC specifications. Please refer to the ARCHITECT or DESIGNER’S PLAN DETAILS link above the floor plan on any plan page to determine the specific details for each plan. Our house plans contain virtually all of the information required to construct your home. The typical plan set does not include plumbing, HVAC drawings, or engineering stamps due to the wide variety of specific needs, local codes, and climatic conditions. These details and specifications are easily obtained from your builder, contractors, and/or local engineers.

BEST PRICE GUARANTEE

Find the same house plan (modifications included!) and package for less on another site, show us the URL and we'll give you the difference plus an additional 10% back.

100% SATISFACTION GUARANTEE

We offer a one-time, 30-day exchange policy for unused, printed plan packages in the event you aren't satisfied with your first selection.

 
 

Plan 9301  Back to plan page

Loading...