Get discounts,
promos, see our
newest plans
and more!
+ 15% off any plan
See terms opt out anytime


No Thanks

Thanks for
signing up!


Use Code:

SIGNUP15

And save 15% off any plan!

Check your email for details.

CLOSE
Search Plans
Customer Reviews
     
15% off ALL House Plans Sitewide
15% off ALL House Plans Sitewide
15% off ALL House Plans Sitewide

Code: HONOR
Sale ends midnight 5/31/2026 PST

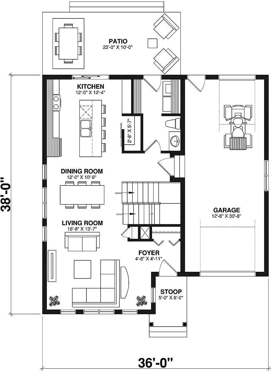
Augusta 3 Bedroom Cottage Style House, Plan 2797

 
 

Sq Ft
1,687 FT²

Beds
3

Baths
1.5

Stories
2

Garage
1

Depth
38'

Width
36'
On Sale
$1,428.00
$1,680.00
© copyright by designer
 View All 11 Images | Photographs may reflect modified home
Sq Ft
1,687 FT²
Beds
3
Baths
1.5
Stories
2
Garage
1
Depth
38'
Width
36'
 
Click to Zoom In on Floor Plan
© copyright by designer
 
 

About This Plan

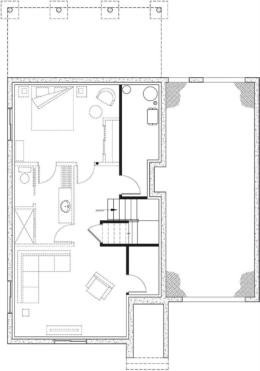
If you're looking to build affordably, give House Plan 2797 your consideration! This compact design features 1,687 square feet in a two-story layout to help keep building costs low. The main level includes a one-car garage beside the open-concept common areas. The interior stretches back from the living area, to the dining space, to the island kitchen in back. You'll also appreciate the coat closet in the foyer and the powder room that connects to the laundry and the door to the back patio. All three bedrooms are upstairs, including one with a large walk-in closet and sitting area. The bedrooms share a four-piece bath, a space and money-saving feature as bathrooms are one of the most expensive parts of construction. All this comes wrapped up in cottage style that'll fit in anywhere! 

See All Plan Options
 

FEATURES & DETAILS

Kitchen features
Kitchen Island
U-Shaped
Walk-in Pantry
Bedroom features
Primary Bdrm Upstairs
Separate Tub and Shower
Sitting Area
Exterior features
Front Porch
Rear Porch
Lot Options
Suited for narrow lot
Additional features
Family Room
Foyer
Great Room
Laundry 1st Fl
Open Floor Plan
Unfinished Space
Garage Location
Front
Garage Options
Attached
Front-entry
2,156 Ft
2
Total Structure
1,687 Ft
2
Total Heated
827 Ft
2
1st Floor
860 Ft
2
2nd Floor
827 Ft
2
Lower Floor
3
Bedrooms
1.5
Bathrooms
1
Garage
2
Stories
36' 0"
Width
38' 0"
Depth
24' 8"
Height
9' 0"
Main Floor Ceiling
8' 0"
Upper Floor Ceiling
8' 0"
Lower Floor Ceiling
9' 0"
Living/Great Room Ceiling
9' 0"
Foyer Ceiling
8' 0"
Primary Ceiling
2x6
Framing
Truss
Roof Framing
6/12
Primary Roof Pitch
Single
Dwelling Number
None
Bonus Access

Unheated Living Space
433 Ft
2
Garage
40 Ft
2
Porch
 

Plan Package Options

 Select Plan Package
 Need To Reverse Plan? (Optional)
  Select Foundation Option
  Add-Ons (Optional)
INCLUDED WITH YOUR PURCHASE

Free Ground shipping in the U.S.

FREE

Home Building & Product Ideas Organizer

Sub Total
$0
Free Shipping
Please allow 3-5 business days for delivery of this plan Please check our PDFs NOW collection for plans that can be downloaded and received immediately or live chat us to help you find a similar plan available now.
QUESTIONS OR NEED HELP ORDERING? LIVE CHAT OR CALL US AT 866-214-2242
Plan Packages

Each set of construction documents typically includes detailed, dimensioned floor plans, basic electric layouts, cross sections, roof details, cabinet layouts, and elevations, as well as general IRC specifications. Please refer to the ARCHITECT or DESIGNER’S PLAN DETAILS link above the floor plan on any plan page to determine the specific details for each plan. Our house plans contain virtually all of the information required to construct your home. The typical plan set does not include plumbing, HVAC drawings, or engineering stamps due to the wide variety of specific needs, local codes, and climatic conditions. These details and specifications are easily obtained from your builder, contractors, and/or local engineers.

BEST PRICE GUARANTEE

Find the same house plan (modifications included!) and package for less on another site, show us the URL and we'll give you the difference plus an additional 10% back.

100% SATISFACTION GUARANTEE

We offer a one-time, 30-day exchange policy for unused, printed plan packages in the event you aren't satisfied with your first selection.

 
 

Plan 2797  Back to plan page

Loading...