Get discounts,
promos, see our
newest plans
and more!
+ 15% off any plan
See terms opt out anytime


No Thanks

Thanks for
signing up!


Use Code:

SIGNUP15

And save 15% off any plan!

Check your email for details.

CLOSE
Search Plans
Customer Reviews
     
15% off ALL House Plans Sitewide
15% off ALL House Plans Sitewide
15% off ALL House Plans Sitewide

Code: SAVE15
Sale ends midnight 4/22/2026 PST

Oakveil Stretch | 4 Bedroom Barndominium Style House, Plan 11797

 
 

Sq Ft
2,860 FT²

Beds
4

Baths
3

Stories
2

Garage
4

Depth
50'

Width
127'
On Sale
$1,058.25
$1,245.00
© copyright by designer
 View All 22 Images | Photographs may reflect modified home
Sq Ft
2,860 FT²
Beds
4
Baths
3
Stories
2
Garage
4
Depth
50'
Width
127'
 
Click to Zoom In on Floor Plan
© copyright by designer
 
 

About This Plan

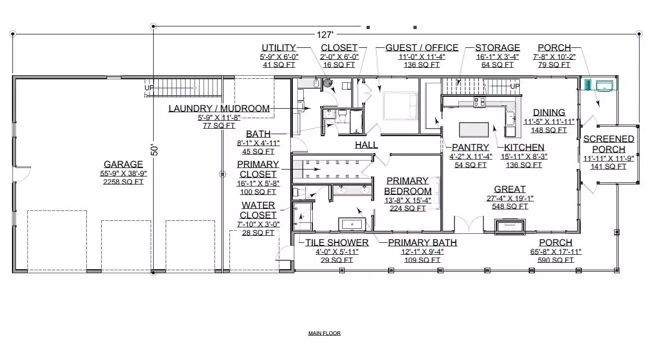
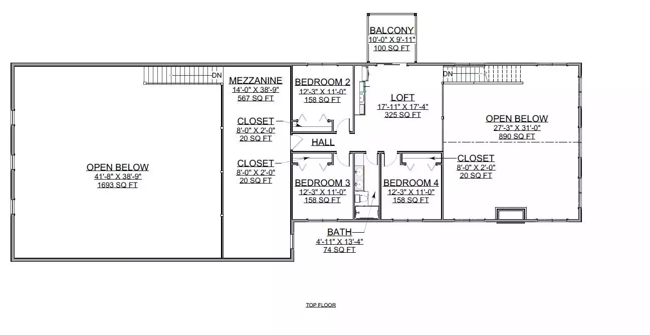
This 2,860 sq ft design offers a welcoming mix of open gathering areas and thoughtfully placed private spaces. The great room flows effortlessly into the L-shaped kitchen, which features an island, peninsula, and walk-in pantry for smooth meal prep and entertaining. Just steps away, an outdoor kitchen and wraparound porch extend daily living outdoors, giving you fresh-air spaces that work beautifully for both quiet mornings and lively evenings. The main-floor primary suite includes a double vanity, separate tub and shower, and a spacious walk-in closet for everyday comfort. Upstairs, a loft overlooks the main living area and provides a flexible space for work, study, or downtime, while additional bedrooms and baths offer room for everyone. A dedicated home office, mud room, and first-floor laundry help keep the household organized and efficient. The oversized rear, side-entry garage provides exceptional storage and clean access to the home. Altogether, the plan feels inviting, functional, and easy to settle into, offering a comfortable rhythm that fits the flow of everyday life. 

See All Plan Options
 

FEATURES & DETAILS

Kitchen features
Kitchen Island
L-Shaped
Peninsula / Eating Bar
Walk-in Pantry
Bedroom features
Double Vanity Sink
Primary Bdrm Main Floor
Separate Tub and Shower
Split Bedrooms
Walk-in Closet
Exterior features
Outdoor Kitchen
Wraparound Porch
Lot Options
Suited for corner lot
Additional features
Dining Room
Fireplace
Great Room
Home Office
Laundry 1st Fl
Loft / Balcony
Mud Room
Garage Location
Side
Garage Options
Attached
RV Garage
Side-entry
2,860 Ft
2
Total Heated
1,875 Ft
2
1st Floor
985 Ft
2
2nd Floor
4
Bedrooms
3
Bathrooms
4
Garage
2
Stories
127' 0"
Width
50' 0"
Depth
30' 10"
Height
10' 0"
Main Floor Ceiling
8' 0"
Upper Floor Ceiling
2x4
Framing
Stick
Roof Framing
8/12
Primary Roof Pitch
2/12
Secondary Roof Pitch
Single
Dwelling Number

Unheated Living Space
2,258 Ft
2
Garage
731 Ft
2
Porch
 

Plan Package Options

 Select Plan Package
 Need To Reverse Plan? (Optional)
  Select Foundation Option
  Add-Ons (Optional)
INCLUDED WITH YOUR PURCHASE

Free Ground shipping in the U.S.

FREE

Home Building & Product Ideas Organizer

Sub Total
$0
Free Shipping
QUESTIONS OR NEED HELP ORDERING? LIVE CHAT OR CALL US AT 866-214-2242
Plan Packages

Each set of construction documents typically includes detailed, dimensioned floor plans, basic electric layouts, cross sections, roof details, cabinet layouts, and elevations, as well as general IRC specifications. Please refer to the ARCHITECT or DESIGNER’S PLAN DETAILS link above the floor plan on any plan page to determine the specific details for each plan. Our house plans contain virtually all of the information required to construct your home. The typical plan set does not include plumbing, HVAC drawings, or engineering stamps due to the wide variety of specific needs, local codes, and climatic conditions. These details and specifications are easily obtained from your builder, contractors, and/or local engineers.

BEST PRICE GUARANTEE

Find the same house plan (modifications included!) and package for less on another site, show us the URL and we'll give you the difference plus an additional 10% back.

100% SATISFACTION GUARANTEE

We offer a one-time, 30-day exchange policy for unused, printed plan packages in the event you aren't satisfied with your first selection.

 
 

Plan 11797  Back to plan page

Loading...