Get discounts,
promos, see our
newest plans
and more!
+ 15% off any plan
See terms opt out anytime


No Thanks

Thanks for
signing up!


Use Code:

SIGNUP15

And save 15% off any plan!

Check your email for details.

CLOSE
Search Plans
Customer Reviews
     

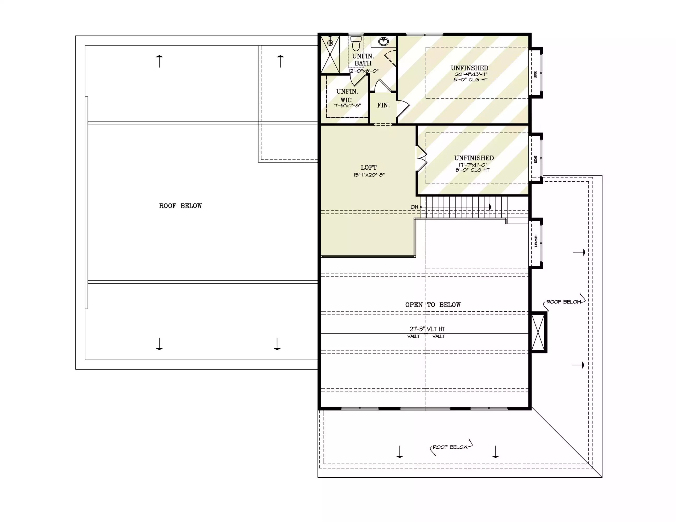
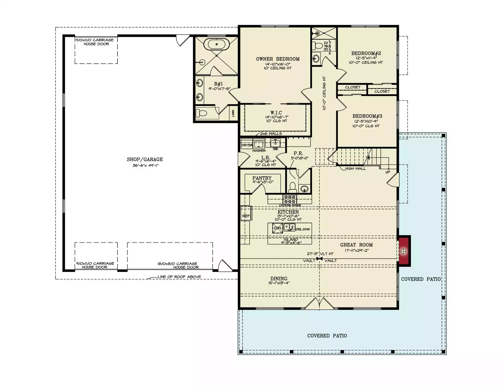
Alderwood 3 Bedroom Barndominium Style House, Plan 10060

 
 

Sq Ft
2,577 FT²

Beds
3

Baths
2.5

Stories
2

Garage
3

Depth
69' 6"

Width
81'
From
$1,450.00
© copyright by designer
 View All 30 Images | Photographs may reflect modified home | 3D Video Tour | 360° View
Sq Ft
2,577 FT²
Beds
3
Baths
2.5
Stories
2
Garage
3
Depth
69' 6"
Width
81'
 

 
Click to Zoom In on Floor Plan
© copyright by designer
 
 

About This Plan

The Alderwood House Plan redefines modern barndominium living with an inviting, open layout ideal for families and gatherings. With 2,577 square feet across two stories, this country-style design offers 3 bedrooms and 2.5 baths, with an option to add a fourth bedroom and additional bath in the unfinished second-floor space. The open floor plan seamlessly connects a two-story great room, dining area, and a gourmet kitchen featuring a large island and spacious walk-in pantry with prep space, ensuring ample storage and functionality. The primary suite is a private haven with a luxurious ensuite bath and walk-in closet. Two additional bedrooms and a three-car garage complete the main level. Experience the Alderwood—a perfect blend of space, style, and functionality. 

See All Plan Options
 

FEATURES & DETAILS

Kitchen features
Kitchen Island
L-Shaped
Walk-in Pantry
Bedroom features
Double Vanity Sink
Primary Bdrm Main Floor
Walk-in Closet
Exterior features
Covered Front Porch
Outdoor Living Space
Wraparound Porch
Lot Options
Suited for corner lot
Suited for view lot
Additional features
Bonus Room
Dining Room
Fireplace
Laundry 1st Fl
Loft / Balcony
Open Floor Plan
Vaulted Great Room/Living
Garage Location
Front
Garage Options
Attached
Front-entry
2,577 Ft
2
Total Heated
2,214 Ft
2
1st Floor
363 Ft
2
2nd Floor
3
Bedrooms
2.5
Bathrooms
3
Garage
2
Stories
81' 0"
Width
69' 6"
Depth
28' 1"
Height
10' 0"
Main Floor Ceiling
8' 0"
Upper Floor Ceiling
27' 3"
Living/Great Room Ceiling
2x6
Framing
6/12
Primary Roof Pitch
Single
Dwelling Number
2nd Floor
Bonus Access

Unheated Living Space
1,674 Ft
2
Garage
793 Ft
2
Porch
704 Ft
2
Bonus Room
 

Plan Package Options

 Select Plan Package
 Need To Reverse Plan? (Optional)
  Select Foundation Option
  Add-Ons (Optional)
INCLUDED WITH YOUR PURCHASE

Free Ground shipping in the U.S.

FREE

Home Building & Product Ideas Organizer

Sub Total
$0
Free Shipping
QUESTIONS OR NEED HELP ORDERING? LIVE CHAT OR CALL US AT 866-214-2242
Plan Packages

Each set of construction documents includes detailed, dimensioned floor plans, basic electric layouts, cross sections, roof details, cabinet layouts and elevations, as well as general IRC specifications. They contain virtually all of the information required to construct your home. The typical plan set does not include any plumbing, HVAC drawings, or engineering stamps due to the wide variety of specific needs, local codes, and climatic conditions. These details and specifications are easily obtained from your builder, contractors, and/or local engineers.

BEST PRICE GUARANTEE

Find the same house plan (modifications included!) and package for less on another site, show us the URL and we'll give you the difference plus an additional 10% back.

100% SATISFACTION GUARANTEE

We offer a one-time, 30-day exchange policy for unused, printed plan packages in the event you aren't satisfied with your first selection.

 
 

Plan 10060  Back to plan page

Loading...