Get discounts,
promos, see our
newest plans
and more!
+ 15% off any plan
See terms opt out anytime


No Thanks

Thanks for
signing up!


Use Code:

SIGNUP15

And save 15% off any plan!

Check your email for details.

CLOSE
Search Plans
Customer Reviews
     
20% off ALL House Plans Sitewide
20% off ALL House Plans Sitewide
20% off ALL House Plans Sitewide

Code: LOVE20
Sale ends midnight 2/15/2026 PST

Allenwood 2 Bedroom Cottage Style ADU House, Plan 10061

 
 

Sq Ft
837 FT²

Beds
2

Baths
1

Stories
2

Garage
2

Depth
35' 3"

Width
31' 3"
On Sale
$796.00
$995.00
© copyright by designer
 View All 11 Images | Photographs may reflect modified home
Sq Ft
837 FT²
Beds
2
Baths
1
Stories
2
Garage
2
Depth
35' 3"
Width
31' 3"
 
Click to Zoom In on Floor Plan
© copyright by designer
 
 

About This Plan

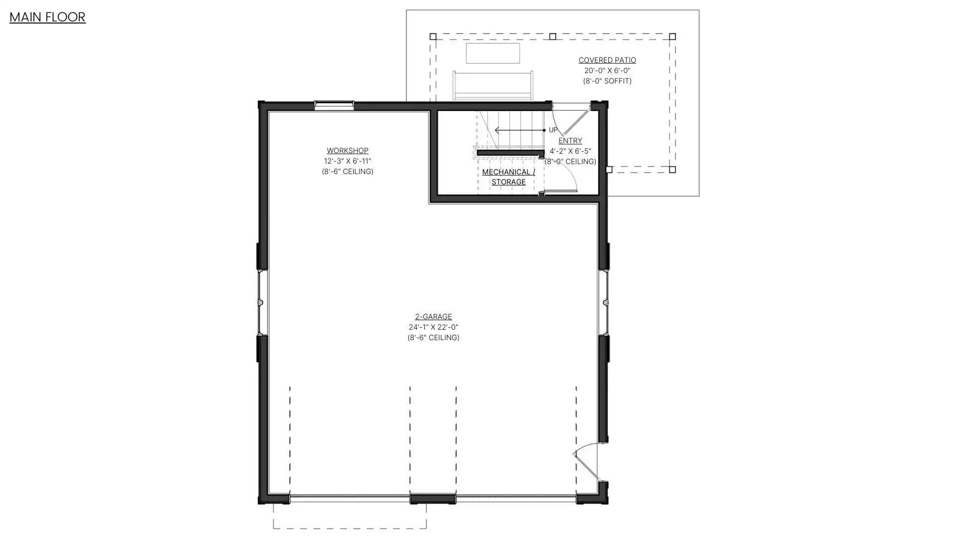
The Allenwood is a two-story, 837-square-foot ADU that combines functionality and farmhouse charm in a compact footprint. It features two cozy upper-floor bedrooms and an open-concept layout ideal for relaxed living. Below, a spacious two-car garage adds versatility, while a large covered patio at the rear extends the living space outdoors. ADUs like the Allenwood offer valuable flexibility, providing a private area for guests, extended family, or renters—perfect for multigenerational living or generating rental income. With a stylish modern farmhouse design, this ADU enhances property value and offers homeowners versatile living options within their own property. 

See All Plan Options
 

FEATURES & DETAILS

Kitchen features
L-Shaped
Bedroom features
Family Style
Primary Bdrm Upstairs
Exterior features
Covered Rear Porch
Outdoor Living Space
Lot Options
Suited for corner lot
Suited for narrow lot
Suited for view lot
Additional features
Laundry 2nd Fl
Open Floor Plan
Garage Location
Front
Garage Options
Attached
Front-entry
With Living Space
1,524 Ft
2
Total Structure
837 Ft
2
Total Heated
34 Ft
2
1st Floor
803 Ft
2
2nd Floor
2
Bedrooms
1
Bathrooms
2
Garage
2
Stories
31' 3"
Width
35' 3"
Depth
22' 11"
Height
8' 0"
Main Floor Ceiling
8' 0"
Upper Floor Ceiling
2x6
Framing
Truss
Roof Framing
4/12
Primary Roof Pitch
14/12
Secondary Roof Pitch
Single
Dwelling Number
None
Bonus Access

Unheated Living Space
687 Ft
2
Garage
121 Ft
2
Porch
 

Plan Package Options

 Select Plan Package
  Select Foundation Option
  Add-Ons (Optional)
INCLUDED WITH YOUR PURCHASE

Free Ground shipping in the U.S.

FREE

Home Building & Product Ideas Organizer

Sub Total
$0
Free Shipping
QUESTIONS OR NEED HELP ORDERING? LIVE CHAT OR CALL US AT 866-214-2242
Plan Packages

Each set of construction documents includes detailed, dimensioned floor plans, basic electric layouts, cross sections, roof details, cabinet layouts and elevations, as well as general IRC specifications. They contain virtually all of the information required to construct your home. The typical plan set does not include any plumbing, HVAC drawings, or engineering stamps due to the wide variety of specific needs, local codes, and climatic conditions. These details and specifications are easily obtained from your builder, contractors, and/or local engineers.

BEST PRICE GUARANTEE

Find the same house plan (modifications included!) and package for less on another site, show us the URL and we'll give you the difference plus an additional 10% back.

100% SATISFACTION GUARANTEE

We offer a one-time, 30-day exchange policy for unused, printed plan packages in the event you aren't satisfied with your first selection.

 
 

Plan 10061  Back to plan page

Loading...