Get discounts,
promos, see our
newest plans
and more!
+ 15% off any plan
See terms opt out anytime


No Thanks

Thanks for
signing up!


Use Code:

SIGNUP15

And save 15% off any plan!

Check your email for details.

CLOSE
Search Plans
Customer Reviews
     

Beautiful Two Story Modern Farmhouse Style House, Plan 8716

 
 

Sq Ft
3,214 FT²

Beds
3

Baths
3.5

Stories
2

Garage
2

Depth
63' 2"

Width
107' 8"
From
$2,150.00
Gorgeous Modern Farmhouse with Angled Front Entry Garage Country Styling with Gabled Dormer Windows & Covered Porch Large Rear Covered Deck Perfect for Outdoor Gatherings Two-Story Living Room with Fireplace and Built-Ins Living Room with Open Staircase to Second Floor View from Living Room to Second Floor Landing View from Second Floor Landing to Living Room Large Patio Doors from Living Room Access Covered Patio Living Room and Staircase Leading to 2nd Floor Large Windows Add Natural Light into 2 Story Living Room View from Living Room into Kitchen Living Room and Kitchen Open Floor Plan with Living and Kitchen View Living Room and Kitchen Luxury Gourmet Kitchen with Island and Ample Cabinetry A Perfect Kitchen Workflow for Prepping & Serving Kitchen Designed with Ample Cabinetry and Countertops View from Kitchen into Great Room Kitchen and Dining Room Area with Patio Doors to Porch Kitchen with Butler's Pantry Beautiful Kitchen Windows with View to Covered Porch Den with Barn Doors Located Left of Front Entry Barn Doors Access Private Den or Home Office Front Entry with Open Staircase to Second Floor Front Entry The Second Story Landing Overlooks Living Room A Bronze Chandelier Accents the Wood and Iron Staircase Access from Hallway and Kitchen to Butler's Pantry Large Butler's Pantry Provides Extra Storage View from Pantry to Kitchen Mud Room with Cubbies, Hooks & Shoe Storage Convenient Built-in Desk Next to Den Hallway View of Den and Built-in Desk 11' x 12' Den Could Easily be Used as a Home Office Den with View into Main Living Area Master Bedroom with Transom Windows for Extra Light Master Bedroom Barn Doors Access Ensuite Bath Master Bed Transom and Casement Windows Add Natural Light Master Bedroom with Ensuite Bath and Walk-In Closet Master Bath with Garden Tub and Corner Windows Master Bath with Double Vanity Sinks & Ample Storage Master Bath Ensuite Bath View into Primary Bedroom Master Bedroom Large Walk-In Closet Laundry Room Conveniently Located off Kitchen Hallway The light filled Laundry has Ample Storage and Counterspace Laundry Room Hallway View of Den and Laundry to Living Room Powder Room Stairway to Bonus Space Mud Room Large Bonus Room with Private Access from Garage 21’ X 24’ Bonus Room Perfect for a Game Room or Guest Suite Bonus Room Windows Maximize Natural Light Bedroom 3 with Access to Shared Bath Bedroom 3 with Corner Closet Bedroom 3 with Closet and Windows to the Backyard Upstairs Bath Features Large Vanity with Lots of Storage View into Bedroom 2 And Staircase Landing Double Windows Add Lots of Natural Light to Bedroom 2 Bedroom 2 with Walk-In Closet Bedroom 2 Bedroom 2 Closet 2nd Floor Landing Open to 1st Floor Living Space View to Main Living Area from Stair Landing 2nd Floor Landing 2nd Floor Landing Front and Right Side View Rear View Showing Angled Garage with Bonus Space Rear View Right View Covered Porch with Handcrafted Wood Ceiling Cladding Rear Covered Porch Perfect for Entertaining Rear Covered Porch with Sliding Door Access Rear Covered Wraparound Porch & Patio Rear Covered Porch Rear Covered Porch 1st Floor Plan 2nd Floor Plan
© copyright by designer
 View All 80 Images | Photographs may reflect modified home
Sq Ft
3,214 FT²
Beds
3
Baths
3.5
Stories
2
Garage
2
Depth
63' 2"
Width
107' 8"
 
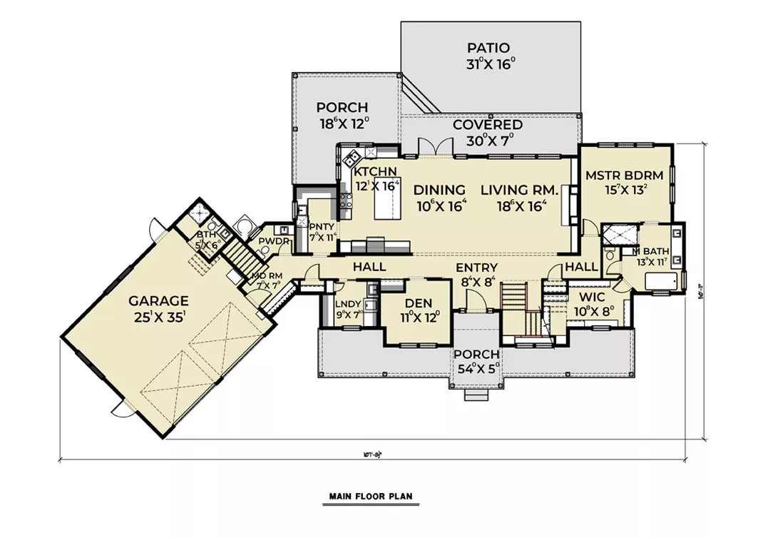
Click to Zoom In on Floor Plan
© copyright by designer
 
 

About This Plan

If you like entertaining in style, this expansive two-story modern farmhouse might be just what you are looking for. An open and inclusive 3,214 square foot layout is only the beginning of what the stylish design has to offer. From great functionality as seen with areas like the three large bedrooms and spacious two car angled garage, two areas that are good for crowds big and small, like the open living room and multi tiered porch and patio, we think that you will love it all! Highlights of this home include the convenient and lovely first floor master suite along with it relaxing bath and walk-in closet. Also, check out the formal den which can double as an office if you would like. And upstairs is just as impressive, offering additional bedrooms, each with their own walk-in closet, as well as an open air loft and even a large bonus room sitting just above the garage! 

See All Plan Options
 

FEATURES & DETAILS

Kitchen features
Kitchen Island
Pantry
Peninsula / Eating Bar
U-Shaped
Walk-in Pantry
Bedroom features
Double Vanity Sink
Primary Bdrm Main Floor
Separate Tub and Shower
Walk-in Closet
Exterior features
Covered Front Porch
Covered Rear Porch
Foundation Options
Crawlspace
Additional features
Bonus Room
Dining Room
Fireplace
Great Room
Home Office
Laundry 1st Fl
Loft / Balcony
Mud Room
Open Floor Plan
Vaulted Ceilings
Garage Location
Front
Garage Options
Attached
Front-entry
With Living Space
3,983 Ft
2
Total Structure
3,214 Ft
2
Total Heated
2,136 Ft
2
1st Floor
671 Ft
2
2nd Floor
3
Bedrooms
3.5
Bathrooms
2
Garage
2
Stories
107' 8"
Width
63' 2"
Depth
26' 10"
Height
9' 0"
Main Floor Ceiling
8' 0"
Upper Floor Ceiling
2x6
Framing
Truss
Roof Framing
4/12
Primary Roof Pitch
13/12
Secondary Roof Pitch
Single
Dwelling Number
2nd Floor
Bonus Access

Unheated Living Space
769 Ft
2
Garage
892 Ft
2
Deck
407 Ft
2
Bonus Room
 

Plan Package Options

 Select Plan Package
$2,600
5 Printed Sets + PDF

Includes 5 physical printed blueprints shipped and delivered within 3-5 business days and a copyright release license to construct one home and to make copies. A complimentary PDF plan set is also emailed within 1 business day for easy sharing and local printing. 

$2,600
$1,275
PDF Bid Set

Home plans stamped "NOT FOR CONSTRUCTION" for cost estimating and bidding purposes only; a minimum 5 set plan package must be purchased within 90 days for a license to build plan set; a credit will be applied towards your house plan upgrade

$1,275
$2,150
PDF Single Build

Digital plans emailed to you in PDF format that allows for printing copies and sharing electronically with contractors, subs, decorators, and more. This package includes a license to build the home one time.

$2,150
$2,650
CAD + PDF Single Build

This plan package is created in AutoCAD and delivered in .DWG format. CAD files are intended for use by design professionals, structural engineers, and builders to update plans for local building codes or to make revisions based on specific needs, lot requirements, and budget considerations. A complimentary PDF copy is included with this package for reference. CAD packages are delivered within 1 to 2 business days.
 
This package also comes with a copyright release for making revisions and printing unlimited copies.

For details on the specific CAD program used, please refer to the PLAN DETAILS section located above the floor plan on each plan page.

$2,650
 Need To Reverse Plan? (Optional)
$195
Readable Reverse

Reverse house plans with readable text and dimensions 

$195
  Select Foundation Option
  Add-Ons (Optional)
INCLUDED WITH YOUR PURCHASE

Free Ground shipping in the Continental U.S.

FREE

Home Building & Product Ideas Organizer

Sub Total
$0
Free Shipping
QUESTIONS OR NEED HELP ORDERING? LIVE CHAT OR CALL US AT 866-214-2242
Plan Packages

Each set of construction documents includes detailed, dimensioned floor plans, basic electric layouts, cross sections, roof details, cabinet layouts and elevations, as well as general IRC specifications. They contain virtually all of the information required to construct your home. The typical plan set does not include any plumbing, HVAC drawings, or engineering stamps due to the wide variety of specific needs, local codes, and climatic conditions. These details and specifications are easily obtained from your builder, contractors, and/or local engineers.

BEST PRICE GUARANTEE

Find the same house plan (modifications included!) and package for less on another site, show us the URL and we'll give you the difference plus an additional 5% back.

100% SATISFACTION GUARANTEE

We offer a one-time, 30-day exchange policy for unused, printed plan packages in the event you aren't satisfied with your first selection. Exchanges are subject to a 20% restocking fee.

 
 

Plan 8716  Back to plan page

Loading...