Get discounts,
promos, see our
newest plans
and more!
+ 15% off any plan
See terms opt out anytime


No Thanks

Thanks for
signing up!


Use Code:

SIGNUP15

And save 15% off any plan!

Check your email for details.

CLOSE
Search Plans
     
20% Off House Plans Sitewide Ends Tuesday
20% Off House Plans Sitewide Ends Tuesday
20% Off House Plans Sitewide Ends Tuesday

Code: VET20
Sale ends midnight 11/11/2025 PST

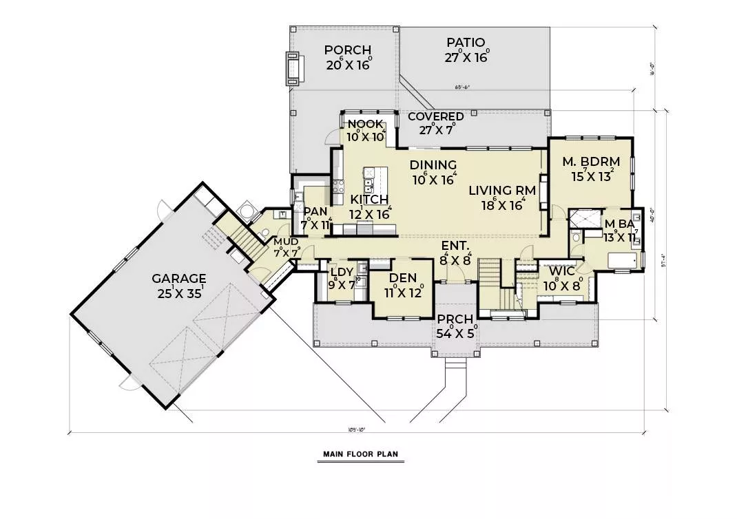
Farmhouse 901 Charming Farm House Style House, Plan 7408

 
 

Sq Ft
3,737 FT²

Beds
5

Baths
3.5

Stories
2

Garage
2

Depth
57' 4"

Width
109' 10"
On Sale
$1,720.00
$2,150.00
© copyright by designer
 View All 7 Images | Photographs may reflect modified home
Sq Ft
3,737 FT²
Beds
5
Baths
3.5
Stories
2
Garage
2
Depth
57' 4"
Width
109' 10"
 
Click to Zoom In on Floor Plan
© copyright by designer
 
 

About This Plan

The quaint and understated details of this classic farmhouse style house plan are not overshadowed by the many features that it offers. This 5 bed 3.5 bath, 3,199 square foot home is the perfect blend of style and functionality. The large covered patio makes outside entertaining and living a breeze, with the added bonus of an outdoor fireplace, perfect for some late night relaxation. The large open floor plan creates a natural flow to the house that is evident beyond the front door. Above the 2-car garage is a huge and versatile bonus room that can be used for whatever your household may need. This plan’s sweeping front porch is ready for a rocking chair and a beautiful sunset. 

See All Plan Options
 

FEATURES & DETAILS

Kitchen features
Butler's Pantry
Kitchen Island
Nook / Breakfast Area
Walk-in Pantry
Bedroom features
Double Vanity Sink
Primary Bdrm Main Floor
Separate Tub and Shower
Walk-in Closet
Exterior features
Covered Front Porch
Covered Rear Porch
Foundation Options
Crawlspace
Additional features
Bonus Room
Dining Room
Fireplace
Great Room
Home Office
Laundry 1st Fl
Mud Room
Open Floor Plan
Garage Location
Side
Garage Options
Attached
Front-entry
4,073 Ft
2
Total Structure
3,737 Ft
2
Total Heated
2,184 Ft
2
1st Floor
1,015 Ft
2
2nd Floor
538 Ft
2
Bonus
5
Bedrooms
3.5
Bathrooms
2
Garage
2
Stories
109' 10"
Width
57' 4"
Depth
29' 3"
Height
10' 0"
Main Floor Ceiling
8' 0"
Upper Floor Ceiling
2x6
Framing
Truss
Roof Framing
13:12
Primary Roof Pitch
8:12
Secondary Roof Pitch
Single
Dwelling Number

Unheated Living Space
874 Ft
2
Garage
410 Ft
2
Porch
633 Ft
2
Patio
 

Plan Package Options

 Select Plan Package
Sale: $1,020
PDF Bid Set
$1,275

Home plans stamped "NOT FOR CONSTRUCTION" for cost estimating and bidding purposes only; a minimum 5 set plan package must be purchased within 90 days for a license to build plan set; a credit will be applied towards your house plan upgrade

Sale: $1,020
Sale: $1,720
PDF Single Build
$2,150

Digital plans emailed to you in PDF format that allows for printing copies and sharing electronically with contractors, subs, decorators, and more. This package includes a license to build the home one time.

Sale: $1,720
Sale: $2,080
5 Printed Sets + PDF
$2,600

Digital plan emailed to you in PDF format that allows for printing copies on a home printer or local print shop and sharing with contractors, subs, decorators, and more. PLUS five printed sets shipped and delivered 3-5 business days.

Sale: $2,080
Sale: $2,120
CAD + PDF Single Build
$2,650

CAD files are a complete set of construction drawings delivered electronically. They can be used for any type of modification—including major design changes and engineering—and include a release granting permission to modify the plan. Most CAD plan orders are emailed the same or next business day.
 
This package also comes with a PDF set of plans and a copyright release for making modifications and printing unlimited copies.
 
CAD files are provided in .dwg format. For details on the specific CAD program used, please refer to the PLAN DETAILS section located above the floor plan on each plan’s page.

Sale: $2,120
 Need To Reverse Plan? (Optional)
$195
Readable Reverse

Reverse house plans with readable text and dimensions 

$195
  Select Foundation Option
  Add-Ons (Optional)
INCLUDED WITH YOUR PURCHASE

Free Ground shipping in the Continental U.S.

FREE

Design consultation with the architect or designer to discuss your plan

Home Building & Product Ideas Organizer

Sub Total
$0
Free Shipping
QUESTIONS OR NEED HELP ORDERING? LIVE CHAT OR CALL US AT 866-214-2242
Plan Packages

Each set of construction documents includes detailed, dimensioned floor plans, basic electric layouts, cross sections, roof details, cabinet layouts and elevations, as well as general IRC specifications. They contain virtually all of the information required to construct your home. The typical plan set does not include any plumbing, HVAC drawings, or engineering stamps due to the wide variety of specific needs, local codes, and climatic conditions. These details and specifications are easily obtained from your builder, contractors, and/or local engineers.

BEST PRICE GUARANTEE

find the same house plan (modifications included!) and package for less on another site, show us the URL and we'll give you the difference plus an additional 5% back.

100% SATISFACTION GUARANTEE

We offer a one-time, 30-day exchange policy for unused, non-electronic plan packages in the event you aren't satisfied with your first selection.

 
 

Plan 7408  Back to plan page

Loading...