Get discounts,
promos, see our
newest plans
and more!
+ 15% off any plan
See terms opt out anytime


No Thanks

Thanks for
signing up!


Use Code:

SIGNUP15

And save 15% off any plan!

Check your email for details.

CLOSE
Search Plans
Customer Reviews
     
20% off ALL House Plans Sitewide
20% off ALL House Plans Sitewide
20% off ALL House Plans Sitewide

Code: SAVE20
Sale ends midnight 5/13/2026 PST

Waterview | Charming Lake Style House, Plan 10612

 
 

Sq Ft
1,979 FT²

Beds
3

Baths
2

Stories
1

Garage
2

Depth
63'

Width
76'
On Sale
$1,264.00
$1,580.00
© copyright by designer
 View All 7 Images | Photographs may reflect modified home
Sq Ft
1,979 FT²
Beds
3
Baths
2
Stories
1
Garage
2
Depth
63'
Width
76'
 
Click to Zoom In on Floor Plan
© copyright by designer
 
 

About This Plan

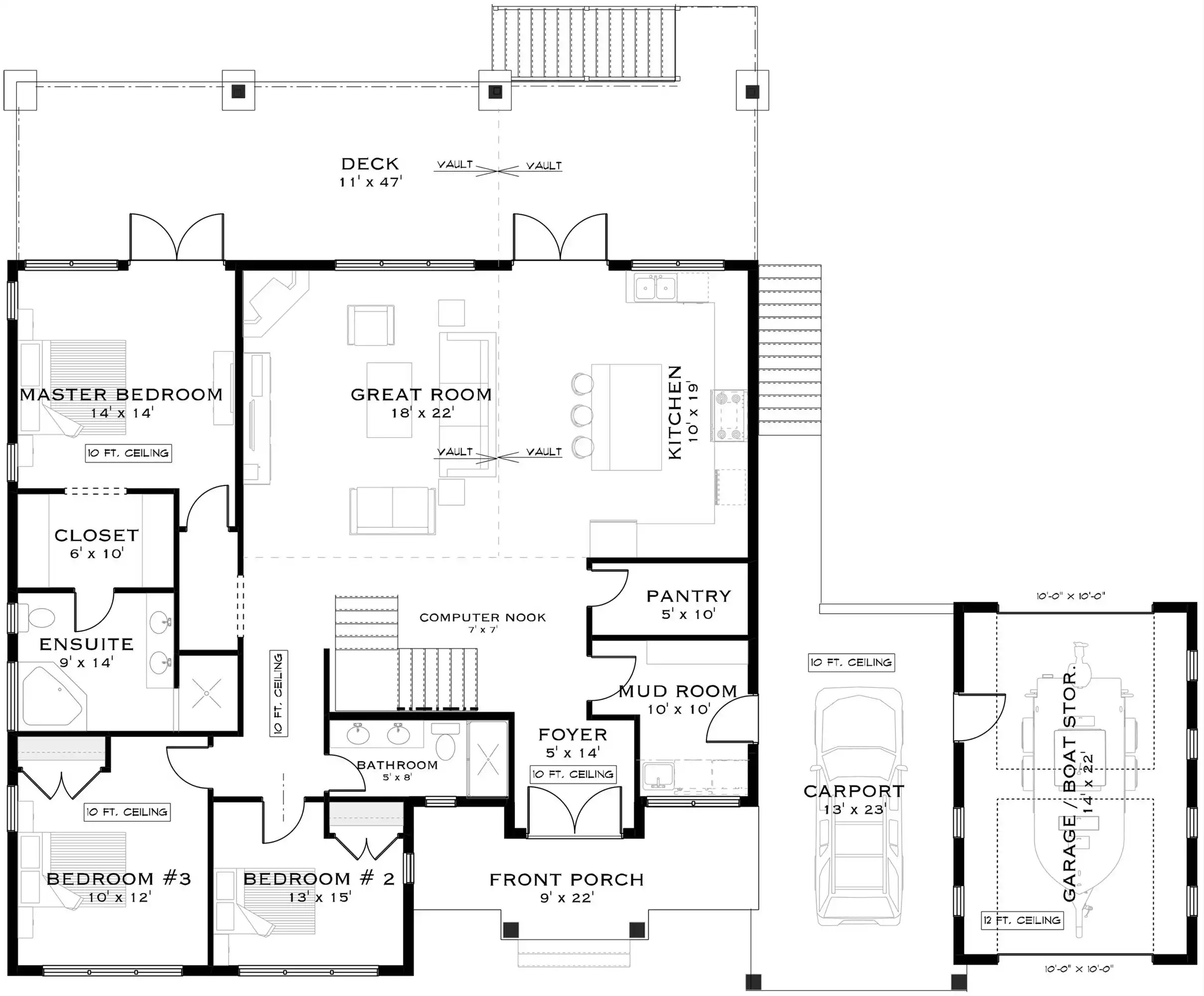
House Plan 10612 is made for a lake! This 1,979-square-foot ranch offers three bedrooms and two bathrooms, and its design really is optimized for lakeside living. There's a carport and a garage bay on the side, and the garage bay has doors in front and back--look at the rear renderings and you'll see that this could be the boat storage/launch of your dreams. Inside the house, a foyer and the laundry/mudroom are placed in front to consolidate entry points. The grand great room has a cathedral vaulted ceiling that spans the whole living space and eat-in kitchen with island seating. With a cozy corner fireplace and a wall of glass, this space is perfect for taking in rear views! And if you want to enjoy the sights from outside, there's also a deck that spans the whole back of the house; a portion of it continues the vaulted ceiling of the great room while there's also an open sundeck area. The bedrooms are grouped on the same side of the house. The primary suite enjoys direct access to the back deck and a walk-through closet that connects to its five-piece bath. The other two bedrooms have front windows and share a four-piece hall bath nearby. If you love this design but need more, just look to the unfinished basement and you can double your square footage!  

See All Plan Options
 

FEATURES & DETAILS

Kitchen features
Kitchen Island
Peninsula / Eating Bar
U-Shaped
Walk-in Pantry
Bedroom features
Double Vanity Sink
Family Style
Primary Bdrm Main Floor
Separate Tub and Shower
Walk-in Closet
Exterior features
Covered Front Porch
Covered Rear Porch
Outdoor Living Space
Rear Porch
Lot Options
Suited for sloping lot
Suited for view lot
Additional features
Fireplace
Foyer
Great Room
Laundry 1st Fl
Mud Room
Open Floor Plan
Unfinished Space
Vaulted Ceilings
Vaulted Great Room/Living
Vaulted Kitchen
Garage Location
Side
Garage Options
Attached
Carport
Front-entry
5,888 Ft
2
Total Structure
1,979 Ft
2
Total Heated
1,979 Ft
2
1st Floor
1,979 Ft
2
Lower Floor
299 Ft
2
Carport
3
Bedrooms
2
Bathrooms
2
Garage
1
Stories
76' 0"
Width
63' 0"
Depth
30' 4"
Height
10' 0"
Main Floor Ceiling
8' 0"
Lower Floor Ceiling
10' 0"
Foyer Ceiling
10' 0"
Primary Ceiling
2x6
Framing
Combination
Roof Framing
6/12
Primary Roof Pitch
Single
Dwelling Number

Unheated Living Space
382 Ft
2
Garage
732 Ft
2
Porch
144 Ft
2
Front Porch
588 Ft
2
Rear Porch
517 Ft
2
Deck
 

Plan Package Options

 Select Plan Package
 Need To Reverse Plan? (Optional)
  Select Foundation Option
  Add-Ons (Optional)
INCLUDED WITH YOUR PURCHASE

Free Ground shipping in the U.S.

FREE

Home Building & Product Ideas Organizer

Sub Total
$0
Free Shipping
QUESTIONS OR NEED HELP ORDERING? LIVE CHAT OR CALL US AT 866-214-2242
Plan Packages

Each set of construction documents typically includes detailed, dimensioned floor plans, basic electric layouts, cross sections, roof details, cabinet layouts, and elevations, as well as general IRC specifications. Please refer to the ARCHITECT or DESIGNER’S PLAN DETAILS link above the floor plan on any plan page to determine the specific details for each plan. Our house plans contain virtually all of the information required to construct your home. The typical plan set does not include plumbing, HVAC drawings, or engineering stamps due to the wide variety of specific needs, local codes, and climatic conditions. These details and specifications are easily obtained from your builder, contractors, and/or local engineers.

BEST PRICE GUARANTEE

Find the same house plan (modifications included!) and package for less on another site, show us the URL and we'll give you the difference plus an additional 10% back.

100% SATISFACTION GUARANTEE

We offer a one-time, 30-day exchange policy for unused, printed plan packages in the event you aren't satisfied with your first selection.

 
 

Plan 10612  Back to plan page

Loading...