Get discounts,
promos, see our
newest plans
and more!
+ 15% off any plan
See terms opt out anytime


No Thanks

Thanks for
signing up!


Use Code:

SIGNUP15

And save 15% off any plan!

Check your email for details.

CLOSE
Search Plans
Customer Reviews
     
15% off ALL House Plans Sitewide
15% off ALL House Plans Sitewide
15% off ALL House Plans Sitewide

Code: SAVE15
Sale ends midnight 4/22/2026 PST

Moonstone Ridge | 3 Bedroom Ranch Style House, Plan 11591

 
 

Sq Ft
1,934 FT²

Beds
3

Baths
2

Stories
1.5

Garage
2

Depth
60'

Width
70' 8"
On Sale
$1,105.00
$1,300.00
© copyright by designer
 View All 4 Images | Photographs may reflect modified home | Video Tour
Sq Ft
1,934 FT²
Beds
3
Baths
2
Stories
1.5
Garage
2
Depth
60'
Width
70' 8"
 

 
Click to Zoom In on Floor Plan
© copyright by designer
 
 

About This Plan

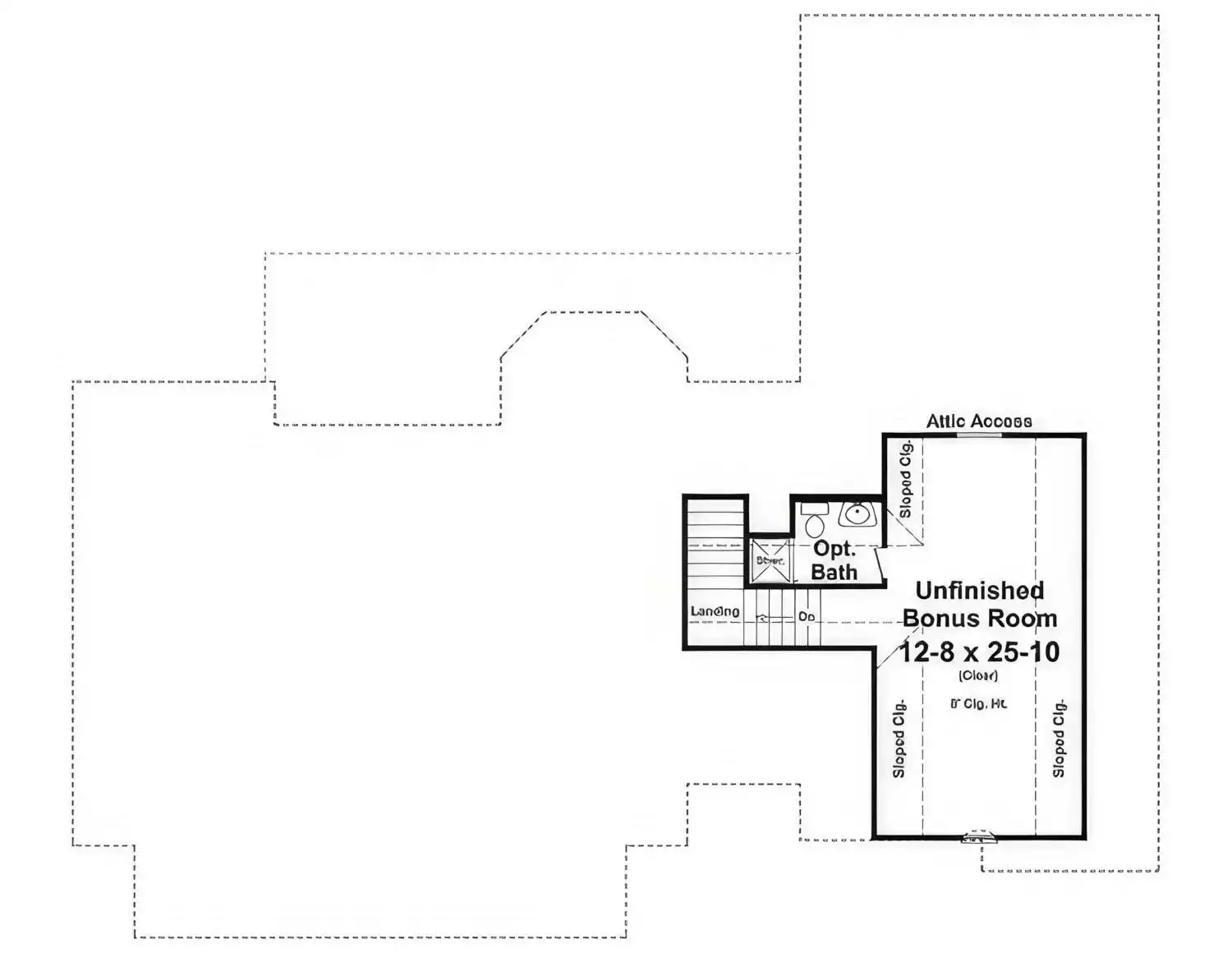
Moonstone Ridge blends classic curb appeal with a warm and functional ranch-style layout designed for everyday living. The covered front porch leads into a welcoming foyer and formal dining room before opening into the vaulted great room, where large windows bring in natural light. The kitchen includes a pantry, peninsula/eating bar, and opens to a sunny breakfast nook overlooking the rear porch. The primary bedroom is tucked privately on one side of the home and features dual walk-in closets and a bathroom with a separate tub and shower. Bedrooms 2 and 3 are located on the opposite hall, sharing a full bath to create a comfortable split-bedroom design. A covered rear porch extends living space outdoors for grilling, gathering, or quiet relaxation. An unfinished bonus room above the garage offers future space for a media room, guest suite, or hobby area. 


See All Plan Options
 

FEATURES & DETAILS

Kitchen features
Nook / Breakfast Area
Pantry
Peninsula / Eating Bar
Bedroom features
Double Vanity Sink
His and Hers Primary Closets
Primary Bdrm Main Floor
Nursery Room
Split Bedrooms
Walk-in Closet
Exterior features
Covered Front Porch
Covered Rear Porch
Additional features
Bonus Room
Dining Room
Exercise Room
Fireplace
Formal LR
Foyer
Great Room
Home Office
Laundry 1st Fl
Library/Media Rm
Rec Room
Storage Space
Unfinished Space
Vaulted Ceilings
Garage Location
Side
Garage Options
Attached
Oversized
3,568 Ft
2
Total Structure
1,934 Ft
2
Total Heated
1,934 Ft
2
1st Floor
3
Bedrooms
2
Bathrooms
2
Garage
1.5
Stories
70' 8"
Width
60' 0"
Depth
28' 2"
Height
9' 0"
Main Floor Ceiling
2x4
Framing
Stick
Roof Framing
12/12
Primary Roof Pitch
10/12 and 4/12
Secondary Roof Pitch
Single
Dwelling Number

Unheated Living Space
745 Ft
2
Garage
192 Ft
2
Front Porch
271 Ft
2
Rear Porch
426 Ft
2
Bonus Room
 

Plan Package Options

 Select Plan Package
 Need To Reverse Plan? (Optional)
  Select Foundation Option
  Add-Ons (Optional)
INCLUDED WITH YOUR PURCHASE

Free Ground shipping in the U.S.

FREE

Home Building & Product Ideas Organizer

Sub Total
$0
Free Shipping
QUESTIONS OR NEED HELP ORDERING? LIVE CHAT OR CALL US AT 866-214-2242
Plan Packages

Each set of construction documents typically includes detailed, dimensioned floor plans, basic electric layouts, cross sections, roof details, cabinet layouts, and elevations, as well as general IRC specifications. Please refer to the ARCHITECT or DESIGNER’S PLAN DETAILS link above the floor plan on any plan page to determine the specific details for each plan. Our house plans contain virtually all of the information required to construct your home. The typical plan set does not include plumbing, HVAC drawings, or engineering stamps due to the wide variety of specific needs, local codes, and climatic conditions. These details and specifications are easily obtained from your builder, contractors, and/or local engineers.

BEST PRICE GUARANTEE

Find the same house plan (modifications included!) and package for less on another site, show us the URL and we'll give you the difference plus an additional 10% back.

100% SATISFACTION GUARANTEE

We offer a one-time, 30-day exchange policy for unused, printed plan packages in the event you aren't satisfied with your first selection.

 
 

Plan 11591  Back to plan page

Loading...