Get discounts,
promos, see our
newest plans
and more!
+ 15% off any plan
See terms opt out anytime


No Thanks

Thanks for
signing up!


Use Code:

SIGNUP15

And save 15% off any plan!

Check your email for details.

CLOSE
Search Plans
Customer Reviews
     
15% off ALL House Plans Sitewide
15% off ALL House Plans Sitewide
15% off ALL House Plans Sitewide

Code: SAVE15
Sale ends midnight 4/22/2026 PST

The Juniper Run | 3 Bedroom Ranch Style House, Plan 11841

 
 

Sq Ft
1,955 FT²

Beds
3

Baths
2.5

Stories
1.5

Garage
2

Depth
48'

Width
72'
On Sale
$1,105.00
$1,300.00
© copyright by designer
 View All 4 Images | Photographs may reflect modified home | HPG-1955BN
Sq Ft
1,955 FT²
Beds
3
Baths
2.5
Stories
1.5
Garage
2
Depth
48'
Width
72'
 

 
Click to Zoom In on Floor Plan
© copyright by designer
 
 

About This Plan

This 1,955 square foot home creates a warm, comfortable layout centered around open gathering spaces and a bright, easy-flow floor plan. The kitchen includes a peninsula eating bar, pantry, and breakfast nook, all connecting naturally to the great room for relaxed daily living. The dining room adds room for meals and hosting, while the home office supports quiet work or study time. A main-floor primary suite features a double vanity, walk-in closet, and a separate tub and shower for a calming retreat. Split bedrooms offer privacy for family or guests, giving everyone their own restful space. A first-floor laundry room and dedicated storage areas help simplify busy routines. With covered front and rear porches and an oversized side-entry garage, this design blends comfort and convenience into a warm and inviting home. 

See All Plan Options
 

FEATURES & DETAILS

Kitchen features
Nook / Breakfast Area
Pantry
Peninsula / Eating Bar
Bedroom features
Double Vanity Sink
Primary Bdrm Main Floor
Separate Tub and Shower
Split Bedrooms
Walk-in Closet
Exterior features
Covered Front Porch
Covered Rear Porch
Outdoor Living Space
Rear Porch
Lot Options
Suited for corner lot
Additional features
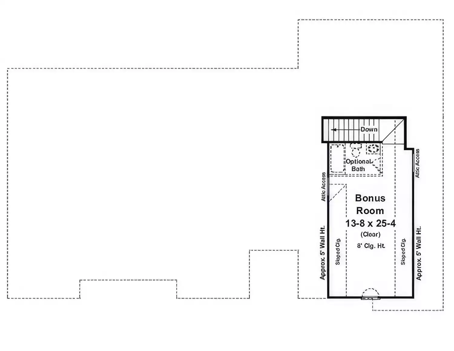
Bonus Room
Dining Room
Fireplace
Great Room
Home Office
Laundry 1st Fl
Storage Space
Garage Location
Side
Garage Options
Attached
Side-entry
3,225 Ft
2
Total Structure
1,955 Ft
2
Total Heated
1,955 Ft
2
1st Floor
3
Bedrooms
2.5
Bathrooms
2
Garage
1.5
Stories
72' 0"
Width
48' 0"
Depth
23' 1"
Height
9' 0"
Main Floor Ceiling
8' 0"
Upper Floor Ceiling
2x4
Framing
Stick
Roof Framing
10/12
Primary Roof Pitch
12/12
Secondary Roof Pitch
Single
Dwelling Number

Unheated Living Space
672 Ft
2
Garage
80 Ft
2
Front Porch
133 Ft
2
Rear Porch
385 Ft
2
Bonus Room
 

Plan Package Options

 Select Plan Package
 Need To Reverse Plan? (Optional)
  Select Foundation Option
  Add-Ons (Optional)
INCLUDED WITH YOUR PURCHASE

Free Ground shipping in the U.S.

FREE

Home Building & Product Ideas Organizer

Sub Total
$0
Free Shipping
QUESTIONS OR NEED HELP ORDERING? LIVE CHAT OR CALL US AT 866-214-2242
Plan Packages

Each set of construction documents typically includes detailed, dimensioned floor plans, basic electric layouts, cross sections, roof details, cabinet layouts, and elevations, as well as general IRC specifications. Please refer to the ARCHITECT or DESIGNER’S PLAN DETAILS link above the floor plan on any plan page to determine the specific details for each plan. Our house plans contain virtually all of the information required to construct your home. The typical plan set does not include plumbing, HVAC drawings, or engineering stamps due to the wide variety of specific needs, local codes, and climatic conditions. These details and specifications are easily obtained from your builder, contractors, and/or local engineers.

BEST PRICE GUARANTEE

Find the same house plan (modifications included!) and package for less on another site, show us the URL and we'll give you the difference plus an additional 10% back.

100% SATISFACTION GUARANTEE

We offer a one-time, 30-day exchange policy for unused, printed plan packages in the event you aren't satisfied with your first selection.

 
 

Plan 11841  Back to plan page

Loading...