Get discounts,
promos, see our
newest plans
and more!
+ 15% off any plan
See terms opt out anytime


No Thanks

Thanks for
signing up!


Use Code:

SIGNUP15

And save 15% off any plan!

Check your email for details.

CLOSE
Search Plans
Customer Reviews
     

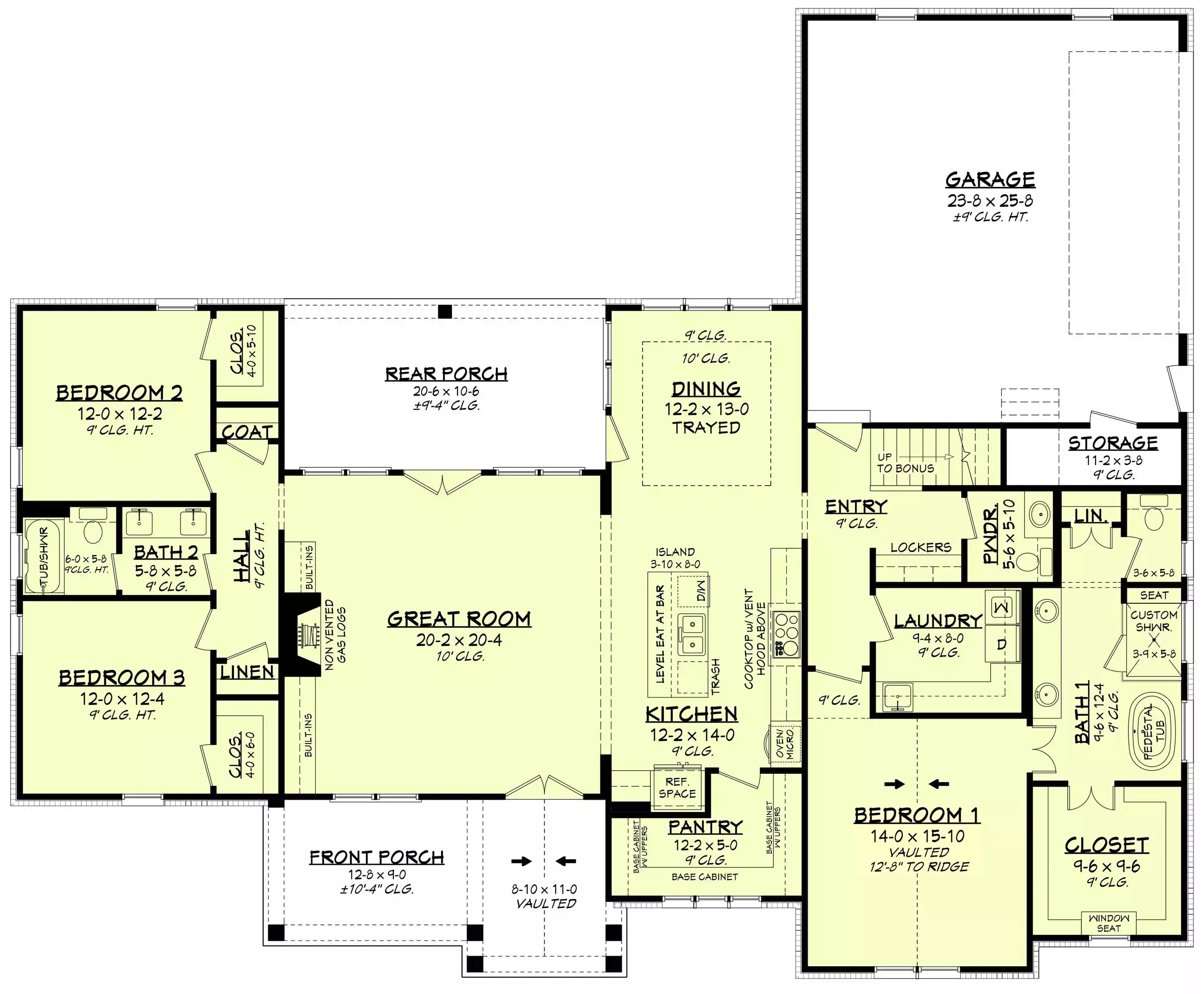
Williamsford 3 Bedroom Modern Farmhouse Style House, Plan 10261

 
 

Sq Ft
2,249 FT²

Beds
3

Baths
2.5

Stories
1.5

Garage
2

Depth
61'

Width
74' 6"
From
$1,495.00
© copyright by designer
 View All 9 Images | Photographs may reflect modified home
Sq Ft
2,249 FT²
Beds
3
Baths
2.5
Stories
1.5
Garage
2
Depth
61'
Width
74' 6"
 
Click to Zoom In on Floor Plan
© copyright by designer
 
 

About This Plan

The Williamsford is a beautifully designed 1,249 sq. ft. home that maximizes space and comfort in a modern farmhouse layout. With 3 bedrooms and 2.5 baths, this plan offers the perfect balance of functionality and charm. The open-concept great room, dining, and kitchen create an inviting atmosphere, ideal for entertaining and everyday living. A vaulted ceiling in the primary suite adds a touch of elegance, while the spa-like ensuite bath with a custom shower enhances relaxation. Thoughtful details like a walk-in pantry, built-in lockers, and a dedicated laundry room add convenience to daily routines. Outdoor spaces include a welcoming front porch and a covered rear porch, perfect for enjoying fresh air year-round. Whether you're looking for a cozy family home or a downsized retreat, the Williamsford delivers style, efficiency, and comfort in a thoughtfully crafted package. 

See All Plan Options
 

FEATURES & DETAILS

Kitchen features
Country Kitchen
Kitchen Island
L-Shaped
Peninsula / Eating Bar
Walk-in Pantry
Bedroom features
Double Vanity Sink
Primary Bdrm Main Floor
Separate Tub and Shower
Split Bedrooms
Walk-in Closet
Exterior features
Covered Front Porch
Covered Rear Porch
Lot Options
Suited for view lot
Additional features
Bonus Room
Dining Room
Fireplace
Great Room
Laundry 1st Fl
Mud Room
Open Floor Plan
Storage Space
Garage Location
Rear
Garage Options
Attached
Side-entry
3,698 Ft
2
Total Structure
2,249 Ft
2
Total Heated
2,249 Ft
2
1st Floor
3
Bedrooms
2.5
Bathrooms
2
Garage
1.5
Stories
74' 6"
Width
61' 0"
Depth
23' 0"
Height
9' 0"
Main Floor Ceiling
10' 0"
Living/Great Room Ceiling
12' 8"
Primary Ceiling
2x4
Framing
Stick
Roof Framing
8/12
Primary Roof Pitch
12/12
Secondary Roof Pitch
Single
Dwelling Number

Unheated Living Space
635 Ft
2
Garage
46 Ft
2
Storage
216 Ft
2
Front Porch
215 Ft
2
Rear Porch
337 Ft
2
Bonus Room
 

Plan Package Options

 Select Plan Package
 Need To Reverse Plan? (Optional)
  Select Foundation Option
  Add-Ons (Optional)
INCLUDED WITH YOUR PURCHASE

Free Ground shipping in the U.S.

FREE

Home Building & Product Ideas Organizer

Sub Total
$0
Free Shipping
QUESTIONS OR NEED HELP ORDERING? LIVE CHAT OR CALL US AT 866-214-2242
Plan Packages

Each set of construction documents typically includes detailed, dimensioned floor plans, basic electric layouts, cross sections, roof details, cabinet layouts, and elevations, as well as general IRC specifications. Please refer to the ARCHITECT or DESIGNER’S PLAN DETAILS link above the floor plan on any plan page to determine the specific details for each plan. Our house plans contain virtually all of the information required to construct your home. The typical plan set does not include plumbing, HVAC drawings, or engineering stamps due to the wide variety of specific needs, local codes, and climatic conditions. These details and specifications are easily obtained from your builder, contractors, and/or local engineers.

BEST PRICE GUARANTEE

Find the same house plan (modifications included!) and package for less on another site, show us the URL and we'll give you the difference plus an additional 10% back.

100% SATISFACTION GUARANTEE

We offer a one-time, 30-day exchange policy for unused, printed plan packages in the event you aren't satisfied with your first selection.

 
 

Plan 10261  Back to plan page

Loading...