Get discounts,
promos, see our
newest plans
and more!
+ 15% off any plan
See terms opt out anytime


No Thanks

Thanks for
signing up!


Use Code:

SIGNUP15

And save 15% off any plan!

Check your email for details.

CLOSE
Search Plans
Customer Reviews
     

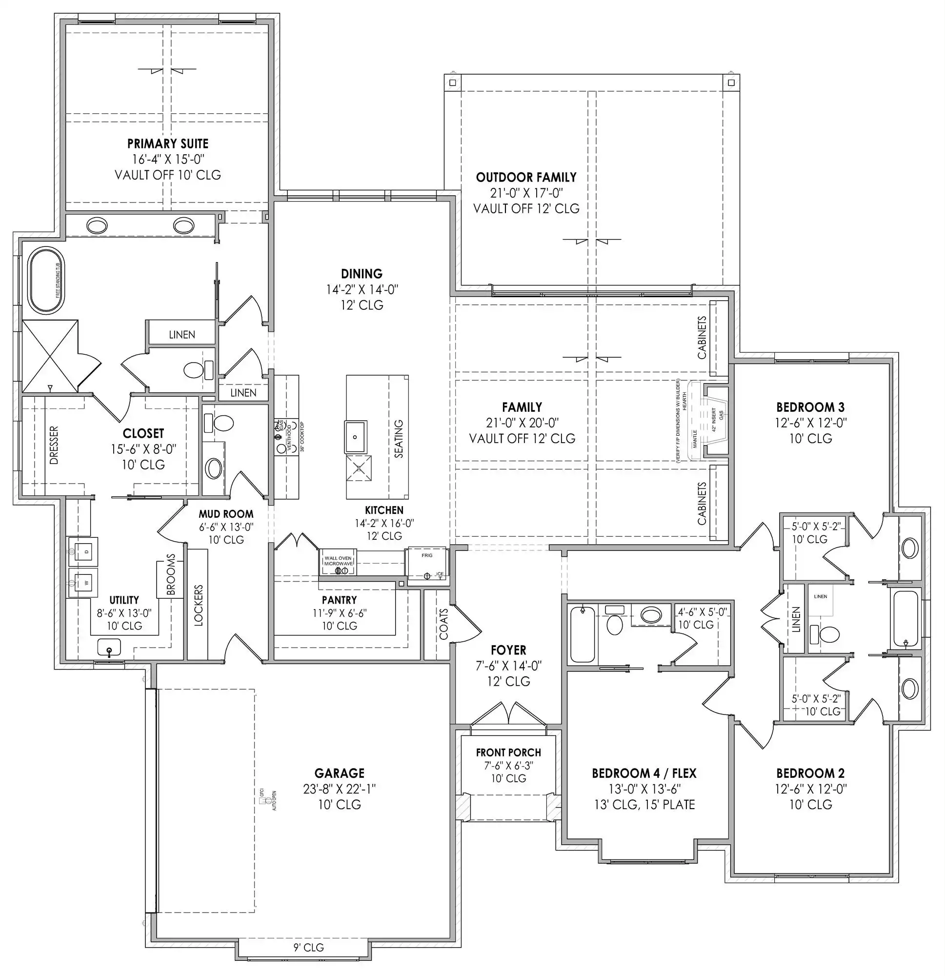
Wilsonville | 4 Bedroom Transitional Style House, Plan 9184

 
 

Sq Ft
3,036 FT²

Beds
4

Baths
3.5

Stories
1

Garage
2

Depth
76' 4"

Width
74'
From
$1,900.00
© copyright by designer
 View All 13 Images | Photographs may reflect modified home
Sq Ft
3,036 FT²
Beds
4
Baths
3.5
Stories
1
Garage
2
Depth
76' 4"
Width
74'
 
Click to Zoom In on Floor Plan
© copyright by designer
 
 

About This Plan

Stop and consider House Plan 9184 if you're in the market for a transitional ranch! This 3,036-square-foot home checks the boxes for today's families with open-concept living and four split bedrooms. A foyer with a coat closet welcomes you inside. From here, there's a hallway with the secondary bedrooms to the right, including a pair in a Jack-and-Jill arrangement and a separate suite that could also be used as flex space. Straight from the foyer, you'll enter into the great room's vaulted living area, complete with a fireplace. This vaulted ceiling continues back onto the covered porch, through a grand, arched patio door/transom window design, to seamlessly connect indoors and out. The island kitchen and dining area both overlook the living area. One hallway behind the kitchen links it to the garage through the mudroom. The powder room and laundry room are also here. The other hallway behind the kitchen brings you to the vaulted primary bedroom. This suite has a large five-piece bath and a walk-in closet that connects to the laundry room on the other side. It's a great single-level setup with plenty of practicality and style!  

See All Plan Options
 

FEATURES & DETAILS

Kitchen features
Kitchen Island
L-Shaped
Walk-in Pantry
Bedroom features
Double Vanity Sink
Primary Bdrm Main Floor
Separate Tub and Shower
Split Bedrooms
Walk-in Closet
Exterior features
Covered Front Porch
Covered Rear Porch
Outdoor Living Space
Lot Options
Suited for corner lot
Suited for view lot
Additional features
Arches
Family Room
Fireplace
Foyer
Great Room
Laundry 1st Fl
Mud Room
Open Floor Plan
Vaulted Ceilings
Vaulted Great Room/Living
Vaulted Primary
Garage Location
Front
Garage Options
Attached
Side-entry
4,057 Ft
2
Total Structure
3,036 Ft
2
Total Heated
3,036 Ft
2
1st Floor
4
Bedrooms
3.5
Bathrooms
2
Garage
1
Stories
74' 0"
Width
76' 4"
Depth
28' 4"
Height
10' 0"
Main Floor Ceiling
12' 0"
Living/Great Room Ceiling
12' 0"
Foyer Ceiling
10' 0"
Primary Ceiling
2x4
Framing
Stick
Roof Framing
12/12
Primary Roof Pitch
14/12
Secondary Roof Pitch
Single
Dwelling Number
None
Bonus Access

Unheated Living Space
573 Ft
2
Garage
53 Ft
2
Front Porch
395 Ft
2
Rear Porch
 

Plan Package Options

 Select Plan Package
 Need To Reverse Plan? (Optional)
  Select Foundation Option
  Add-Ons (Optional)
INCLUDED WITH YOUR PURCHASE

Free Ground shipping in the U.S.

FREE

Home Building & Product Ideas Organizer

Sub Total
$0
Free Shipping
QUESTIONS OR NEED HELP ORDERING? LIVE CHAT OR CALL US AT 866-214-2242
Plan Packages

Each set of construction documents includes detailed, dimensioned floor plans, basic electric layouts, cross sections, roof details, cabinet layouts and elevations, as well as general IRC specifications. They contain virtually all of the information required to construct your home. The typical plan set does not include any plumbing, HVAC drawings, or engineering stamps due to the wide variety of specific needs, local codes, and climatic conditions. These details and specifications are easily obtained from your builder, contractors, and/or local engineers.

BEST PRICE GUARANTEE

Find the same house plan (modifications included!) and package for less on another site, show us the URL and we'll give you the difference plus an additional 10% back.

100% SATISFACTION GUARANTEE

We offer a one-time, 30-day exchange policy for unused, printed plan packages in the event you aren't satisfied with your first selection.

 
 

Plan 9184  Back to plan page

Loading...