Get discounts,
promos, see our
newest plans
and more!
+ 15% off any plan
See terms opt out anytime


No Thanks

Thanks for
signing up!


Use Code:

SIGNUP15

And save 15% off any plan!

Check your email for details.

CLOSE
Search Plans
Customer Reviews
     
20% off ALL House Plans Sitewide

Code: MOM20
Sale ends midnight 5/10/2026 PST

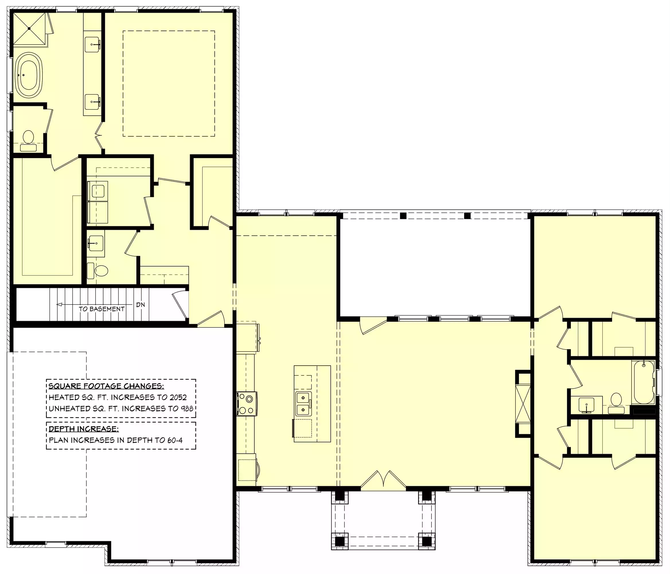
Austin Lane | 3 Bedroom Ranch Style House, Plan 11613

 
 

Sq Ft
1,998 FT²

Beds
3

Baths
2.5

Stories
1

Garage
2

Depth
56'

Width
70' 10"
From
$1,395.00
© copyright by designer
 View All 8 Images | Photographs may reflect modified home
Sq Ft
1,998 FT²
Beds
3
Baths
2.5
Stories
1
Garage
2
Depth
56'
Width
70' 10"
 
Click to Zoom In on Floor Plan
© copyright by designer
 
 

About This Plan

This inviting home offers 1,998 square feet of heated living space with 3 bedrooms and 2.5 baths designed for everyday comfort. The open floor plan centers around a vaulted great room with a fireplace, creating a warm and welcoming space for family gatherings. The kitchen includes a large island, walk-in pantry, peninsula eating bar, and a breakfast nook that connects easily to the dining area. The primary suite is located on the main floor and features a walk-in closet and a private bath with double vanities, a separate tub, and shower. Split bedrooms provide added privacy for family or guests, while a mud room and first-floor laundry add practical convenience. A covered rear porch extends the living space outdoors, offering a comfortable place to relax and unwind. 

See All Plan Options
 

FEATURES & DETAILS

Kitchen features
Kitchen Island
Nook / Breakfast Area
Peninsula / Eating Bar
Walk-in Pantry
Bedroom features
Double Vanity Sink
Primary Bdrm Main Floor
Separate Tub and Shower
Split Bedrooms
Walk-in Closet
Exterior features
Covered Rear Porch
Lot Options
Suited for corner lot
Additional features
Dining Room
Fireplace
Great Room
Laundry 1st Fl
Mud Room
Open Floor Plan
Storage Space
Vaulted Great Room/Living
Garage Location
Front
Garage Options
Attached
Side-entry
2,932 Ft
2
Total Structure
1,998 Ft
2
Total Heated
1,998 Ft
2
1st Floor
3
Bedrooms
2.5
Bathrooms
2
Garage
1
Stories
70' 10"
Width
56' 0"
Depth
21' 0"
Height
9' 0"
Main Floor Ceiling
9' 4"
Lower Floor Ceiling
2x4
Framing
Stick
Roof Framing
8/12
Primary Roof Pitch
3/12
Secondary Roof Pitch
Single
Dwelling Number
None
Bonus Access

Unheated Living Space
606 Ft
2
Garage
30 Ft
2
Storage
298 Ft
2
Porch
63 Ft
2
Front Porch
235 Ft
2
Rear Porch
 

Plan Package Options

 Select Plan Package
 Need To Reverse Plan? (Optional)
  Select Foundation Option
  Add-Ons (Optional)
INCLUDED WITH YOUR PURCHASE

Free Ground shipping in the U.S.

FREE

Home Building & Product Ideas Organizer

Sub Total
$0
Free Shipping
QUESTIONS OR NEED HELP ORDERING? LIVE CHAT OR CALL US AT 866-214-2242
Plan Packages

Each set of construction documents typically includes detailed, dimensioned floor plans, basic electric layouts, cross sections, roof details, cabinet layouts, and elevations, as well as general IRC specifications. Please refer to the ARCHITECT or DESIGNER’S PLAN DETAILS link above the floor plan on any plan page to determine the specific details for each plan. Our house plans contain virtually all of the information required to construct your home. The typical plan set does not include plumbing, HVAC drawings, or engineering stamps due to the wide variety of specific needs, local codes, and climatic conditions. These details and specifications are easily obtained from your builder, contractors, and/or local engineers.

BEST PRICE GUARANTEE

Find the same house plan (modifications included!) and package for less on another site, show us the URL and we'll give you the difference plus an additional 10% back.

100% SATISFACTION GUARANTEE

We offer a one-time, 30-day exchange policy for unused, printed plan packages in the event you aren't satisfied with your first selection.

 
 

Plan 11613  Back to plan page

Loading...