Get discounts,
promos, see our
newest plans
and more!
+ 15% off any plan
See terms opt out anytime


No Thanks

Thanks for
signing up!


Use Code:

SIGNUP15

And save 15% off any plan!

Check your email for details.

CLOSE
Search Plans
Customer Reviews
     
15% off ALL House Plans Sitewide
15% off ALL House Plans Sitewide
15% off ALL House Plans Sitewide

Code: SAVE15
Sale ends midnight 4/22/2026 PST

Abbington Springs | 3 Bedroom Ranch Style House, Plan 11653

 
 

Sq Ft
1,804 FT²

Beds
3

Baths
2

Stories
1

Garage
2

Depth
53' 10"

Width
70' 8"
On Sale
$1,105.00
$1,300.00
© copyright by designer
 View All 4 Images | Photographs may reflect modified home | Video Tour
Sq Ft
1,804 FT²
Beds
3
Baths
2
Stories
1
Garage
2
Depth
53' 10"
Width
70' 8"
 

 
Click to Zoom In on Floor Plan
© copyright by designer
 
 

About This Plan

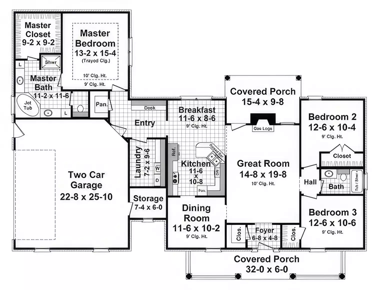
Abbington Springs blends timeless traditional styling with a highly functional split-bedroom floor plan. The great room features a vaulted ceiling and flows into the kitchen, breakfast nook, and dining room, creating an inviting space for everyday living and entertaining. The primary suite sits on its own wing and includes a generous walk-in closet and a bath with both a soaking tub and separate shower. Bedrooms 2 and 3 share a full hall bath on the opposite side of the home, providing privacy for family or guests. A dedicated laundry room, pantry, and extra storage help keep the home organized and efficient. Outdoor living is easy with both a 32' covered front porch and a covered rear porch off the great room. A side-entry 2-car garage completes this charming ranch design. 

See All Plan Options
 

FEATURES & DETAILS

Kitchen features
Nook / Breakfast Area
Pantry
Peninsula / Eating Bar
U-Shaped
Walk-in Pantry
Bedroom features
Double Vanity Sink
Primary Bdrm Main Floor
Separate Tub and Shower
Split Bedrooms
Walk-in Closet
Exterior features
Covered Front Porch
Covered Rear Porch
Lot Options
Suited for view lot
Additional features
Dining Room
Fireplace
Foyer
Great Room
Home Office
Laundry 1st Fl
Library/Media Rm
Storage Space
Vaulted Ceilings
Garage Location
Side
Garage Options
Attached
Oversized
2,770 Ft
2
Total Structure
1,804 Ft
2
Total Heated
1,804 Ft
2
1st Floor
3
Bedrooms
2
Bathrooms
2
Garage
1
Stories
70' 8"
Width
53' 10"
Depth
25' 2"
Height
9' 0"
Main Floor Ceiling
2x4
Framing
Stick
Roof Framing
10 in 12 & 14 in 12
Primary Roof Pitch
12:12
Secondary Roof Pitch
Single
Dwelling Number

Unheated Living Space
641 Ft
2
Garage
192 Ft
2
Front Porch
133 Ft
2
Rear Porch
 

Plan Package Options

 Select Plan Package
 Need To Reverse Plan? (Optional)
  Select Foundation Option
  Add-Ons (Optional)
INCLUDED WITH YOUR PURCHASE

Free Ground shipping in the U.S.

FREE

Home Building & Product Ideas Organizer

Sub Total
$0
Free Shipping
QUESTIONS OR NEED HELP ORDERING? LIVE CHAT OR CALL US AT 866-214-2242
Plan Packages

Each set of construction documents typically includes detailed, dimensioned floor plans, basic electric layouts, cross sections, roof details, cabinet layouts, and elevations, as well as general IRC specifications. Please refer to the ARCHITECT or DESIGNER’S PLAN DETAILS link above the floor plan on any plan page to determine the specific details for each plan. Our house plans contain virtually all of the information required to construct your home. The typical plan set does not include plumbing, HVAC drawings, or engineering stamps due to the wide variety of specific needs, local codes, and climatic conditions. These details and specifications are easily obtained from your builder, contractors, and/or local engineers.

BEST PRICE GUARANTEE

Find the same house plan (modifications included!) and package for less on another site, show us the URL and we'll give you the difference plus an additional 10% back.

100% SATISFACTION GUARANTEE

We offer a one-time, 30-day exchange policy for unused, printed plan packages in the event you aren't satisfied with your first selection.

 
 

Plan 11653  Back to plan page

Loading...