Get discounts,
promos, see our
newest plans
and more!
+ 15% off any plan
See terms opt out anytime


No Thanks

Thanks for
signing up!


Use Code:

SIGNUP15

And save 15% off any plan!

Check your email for details.

CLOSE
Search Plans
Customer Reviews
     
15% off ALL House Plans Sitewide
15% off ALL House Plans Sitewide
15% off ALL House Plans Sitewide

Code: HONOR
Sale ends midnight 5/29/2026 PST

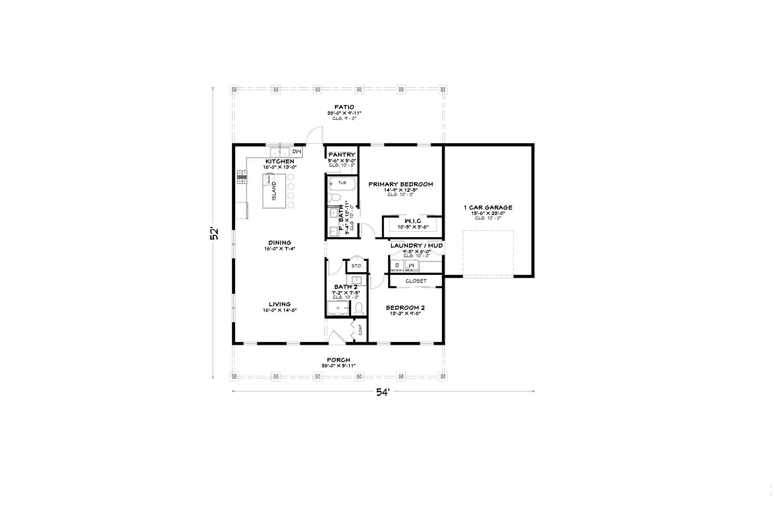
Ashford Drive | 2 Bedroom Ranch Style House, Plan 12325

 
 

Sq Ft
1,368 FT²

Beds
2

Baths
2

Stories
1

Garage
1

Depth
52'

Width
54'
On Sale
$1,100.75
$1,295.00
© copyright by designer
 View All 13 Images | Photographs may reflect modified home | Video Tour
Sq Ft
1,368 FT²
Beds
2
Baths
2
Stories
1
Garage
1
Depth
52'
Width
54'
 

 
Click to Zoom In on Floor Plan
© copyright by designer
 
 

About This Plan

This 1368 square feet, 1 story home plan offers 2 bedrooms and 2 baths in a compact yet highly functional open floor plan. The main living area flows seamlessly from the great room into the dining space and L-shaped kitchen, creating an inviting atmosphere for everyday living. The kitchen features a central island, peninsula with eating bar, and walk-in pantry to maximize storage and prep space. The primary bedroom is conveniently located on the main floor and includes a walk-in closet and double vanity sink for added comfort. A secondary bedroom and full bath provide flexible space for family or guests. First-floor laundry and a mud room enhance organization and convenience. Covered front and rear porches, along with dedicated outdoor living space, extend the home outdoors. The attached garage with side placement and front-entry access adds practicality while maintaining curb appeal. 

See All Plan Options
 

FEATURES & DETAILS

Kitchen features
Kitchen Island
L-Shaped
Peninsula / Eating Bar
Walk-in Pantry
Bedroom features
Double Vanity Sink
Family Style
Primary Bdrm Main Floor
Walk-in Closet
Exterior features
Covered Front Porch
Covered Rear Porch
Outdoor Living Space
Lot Options
Suited for corner lot
Additional features
Laundry 1st Fl
Mud Room
Open Floor Plan
Garage Location
Side
Garage Options
Attached
Front-entry
2,360 Ft
2
Total Structure
1,368 Ft
2
Total Heated
1,368 Ft
2
1st Floor
2
Bedrooms
2
Bathrooms
1
Garage
1
Stories
54' 0"
Width
52' 0"
Depth
16' 9"
Height
10' 0"
Main Floor Ceiling
2x6
Framing
Truss
Roof Framing
2/12
Primary Roof Pitch
Single
Dwelling Number

Unheated Living Space
381 Ft
2
Garage
228 Ft
2
Porch
383 Ft
2
Patio
 

Plan Package Options

 Select Plan Package
 Need To Reverse Plan? (Optional)
  Select Foundation Option
  Add-Ons (Optional)
INCLUDED WITH YOUR PURCHASE

Free Ground shipping in the U.S.

FREE

Home Building & Product Ideas Organizer

Sub Total
$0
Free Shipping
QUESTIONS OR NEED HELP ORDERING? LIVE CHAT OR CALL US AT 866-214-2242
Plan Packages

Each set of construction documents typically includes detailed, dimensioned floor plans, basic electric layouts, cross sections, roof details, cabinet layouts, and elevations, as well as general IRC specifications. Please refer to the ARCHITECT or DESIGNER’S PLAN DETAILS link above the floor plan on any plan page to determine the specific details for each plan. Our house plans contain virtually all of the information required to construct your home. The typical plan set does not include plumbing, HVAC drawings, or engineering stamps due to the wide variety of specific needs, local codes, and climatic conditions. These details and specifications are easily obtained from your builder, contractors, and/or local engineers.

BEST PRICE GUARANTEE

Find the same house plan (modifications included!) and package for less on another site, show us the URL and we'll give you the difference plus an additional 10% back.

100% SATISFACTION GUARANTEE

We offer a one-time, 30-day exchange policy for unused, printed plan packages in the event you aren't satisfied with your first selection.

 
 

Plan 12325  Back to plan page

Loading...