Get discounts,
promos, see our
newest plans
and more!
+ 15% off any plan
See terms opt out anytime


No Thanks

Thanks for
signing up!


Use Code:

SIGNUP15

And save 15% off any plan!

Check your email for details.

CLOSE
Search Plans
Customer Reviews
     
15% off ALL House Plans Sitewide

Code: SAVE15
Sale ends midnight 4/22/2026 PST

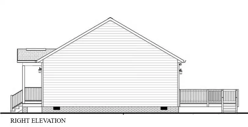
Everton | Small Affordable Ranch Style House, Plan 11229

 
 

Sq Ft
1,316 FT²

Beds
3

Baths
2

Stories
1

Garage
0

Depth
28'

Width
47'
On Sale
$888.25
$1,045.00
© copyright by designer
 View All 12 Images | Photographs may reflect modified home
Sq Ft
1,316 FT²
Beds
3
Baths
2
Stories
1
Garage
0
Depth
28'
Width
47'
 
Click to Zoom In on Floor Plan
© copyright by designer
 
 

About This Plan

If you're looking for a budget-friendly ranch, House Plan 11229 is here for your consideration! This neat design packs 1,316 square feet with three bedrooms and two bathrooms in a perfectly rectangular footprint to keep costs down. Step inside and the common areas spread on the right side of the house, with a cathedral vaulted ceiling spanning the living area in front and the eat-in kitchen in back. The laundry room off the kitchen connects to the rear deck and could serve as a mudroom, too. The hallway on the left side of the house places the secondary bedrooms in front while their hall bath and the primary suite with a four-piece ensuite are in back. This would be a great home for first-time buyers or empty nesters looking for flexibility!  

See All Plan Options
 

FEATURES & DETAILS

Kitchen features
Country Kitchen
L-Shaped
Nook / Breakfast Area
Bedroom features
Double Vanity Sink
Family Style
Primary Bdrm Main Floor
Walk-in Closet
Exterior features
Deck
Front Porch
Additional features
Great Room
Laundry 1st Fl
Mud Room
Open Floor Plan
Vaulted Ceilings
Vaulted Great Room/Living
Vaulted Kitchen
Garage Options
None
1,480 Ft
2
Total Structure
1,316 Ft
2
Total Heated
1,316 Ft
2
1st Floor
1,428 Ft
2
Lower Floor
3
Bedrooms
2
Bathrooms
0
Garage
1
Stories
47' 0"
Width
28' 0"
Depth
18' 0"
Height
8' 0"
Main Floor Ceiling
9' 0"
Lower Floor Ceiling
2x4
Framing
Truss
Roof Framing
7/12
Primary Roof Pitch
8/12
Secondary Roof Pitch
Single
Dwelling Number
None
Bonus Access

Unheated Living Space
20 Ft
2
Front Porch
144 Ft
2
Deck
 

Plan Package Options

 Select Plan Package
 Need To Reverse Plan? (Optional)
  Select Foundation Option
  Add-Ons (Optional)
INCLUDED WITH YOUR PURCHASE

Free Ground shipping in the U.S.

FREE

Home Building & Product Ideas Organizer

Sub Total
$0
Free Shipping
QUESTIONS OR NEED HELP ORDERING? LIVE CHAT OR CALL US AT 866-214-2242
Plan Packages

Each set of construction documents typically includes detailed, dimensioned floor plans, basic electric layouts, cross sections, roof details, cabinet layouts, and elevations, as well as general IRC specifications. Please refer to the ARCHITECT or DESIGNER’S PLAN DETAILS link above the floor plan on any plan page to determine the specific details for each plan. Our house plans contain virtually all of the information required to construct your home. The typical plan set does not include plumbing, HVAC drawings, or engineering stamps due to the wide variety of specific needs, local codes, and climatic conditions. These details and specifications are easily obtained from your builder, contractors, and/or local engineers.

BEST PRICE GUARANTEE

Find the same house plan (modifications included!) and package for less on another site, show us the URL and we'll give you the difference plus an additional 10% back.

100% SATISFACTION GUARANTEE

We offer a one-time, 30-day exchange policy for unused, printed plan packages in the event you aren't satisfied with your first selection.

 
 

Plan 11229  Back to plan page

Loading...