Get discounts,
promos, see our
newest plans
and more!
+ 15% off any plan
See terms opt out anytime


No Thanks

Thanks for
signing up!


Use Code:

SIGNUP15

And save 15% off any plan!

Check your email for details.

CLOSE
Search Plans
Customer Reviews
     
15% off ALL House Plans Sitewide
15% off ALL House Plans Sitewide
15% off ALL House Plans Sitewide

Code: SAVE15
Sale ends midnight 4/19/2026 PST

Sugarcreek | 2 Bedroom Ranch Style House, Plan 12503

 
 

Sq Ft
1,188 FT²

Beds
2

Baths
2

Stories
1

Garage
0

Depth
33'

Width
44'
On Sale
$1,100.75
$1,295.00
© copyright by designer
 View All 25 Images | Photographs may reflect modified home | Video Tour
Sq Ft
1,188 FT²
Beds
2
Baths
2
Stories
1
Garage
0
Depth
33'
Width
44'
 

 
Click to Zoom In on Floor Plan
© copyright by designer
 
 

About This Plan

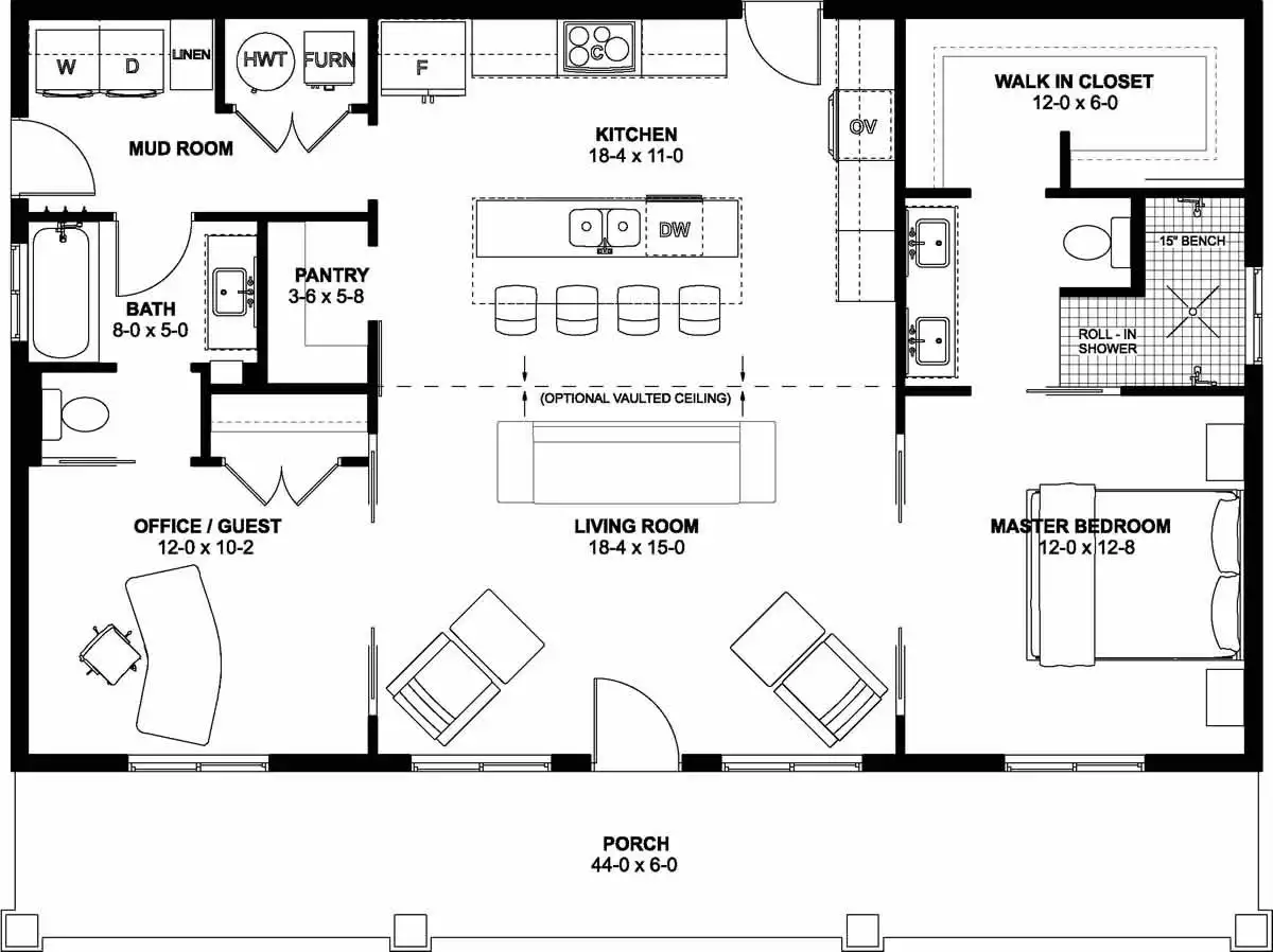
At 1188 square feet, this 2-bedroom, 2-bath home offers a roomy and thoughtfully designed layout centered around open, bright living. The open floor plan connects the great room and kitchen, where a 9.5-foot island provides seating for up to four and flows into a walk-in pantry for added storage. Optional vaulted ceilings rise to 13 feet 3 inches, enhancing the sense of space and natural light throughout the main living areas. Pocket doors create flexible transitions to the primary suite and guest room, allowing for privacy or a wide 5-foot opening for improved flow. The primary suite includes a spacious walk-in closet and a well-appointed bath with a dual vanity and a walk-in shower over 6 feet long with dual shower heads and a built-in bench. Accessibility is thoughtfully considered with 32-inch doors throughout, along with a mud room and laundry area featuring a linen cabinet and mechanical storage. A full guest bath and flexible second bedroom or home office add versatility, while the covered front porch creates a warm and welcoming outdoor living space. 

See All Plan Options
 

FEATURES & DETAILS

Kitchen features
Kitchen Island
Pantry
Walk-in Pantry
Bedroom features
Double Vanity Sink
Primary Bdrm Main Floor
Split Bedrooms
Walk-in Closet
Exterior features
Covered Front Porch
Lot Options
Suited for narrow lot
Additional features
Great Room
Home Office
Laundry 1st Fl
Mud Room
Open Floor Plan
Vaulted Great Room/Living
Vaulted Kitchen
Garage Options
None
1,452 Ft
2
Total Structure
1,188 Ft
2
Total Heated
1,188 Ft
2
1st Floor
2
Bedrooms
2
Bathrooms
0
Garage
1
Stories
44' 0"
Width
33' 0"
Depth
19' 9"
Height
9' 0"
Main Floor Ceiling
2x4 or 2x6
Framing
Truss
Roof Framing
8/12
Primary Roof Pitch
4/12
Secondary Roof Pitch
Single
Dwelling Number
None
Bonus Access

Unheated Living Space
264 Ft
2
Front Porch
 

Plan Package Options

 Select Plan Package
 Need To Reverse Plan? (Optional)
  Select Foundation Option
  Add-Ons (Optional)
INCLUDED WITH YOUR PURCHASE

Free Ground shipping in the U.S.

FREE

Home Building & Product Ideas Organizer

Sub Total
$0
Free Shipping
QUESTIONS OR NEED HELP ORDERING? LIVE CHAT OR CALL US AT 866-214-2242
Plan Packages

Each set of construction documents typically includes detailed, dimensioned floor plans, basic electric layouts, cross sections, roof details, cabinet layouts, and elevations, as well as general IRC specifications. Please refer to the ARCHITECT or DESIGNER’S PLAN DETAILS link above the floor plan on any plan page to determine the specific details for each plan. Our house plans contain virtually all of the information required to construct your home. The typical plan set does not include plumbing, HVAC drawings, or engineering stamps due to the wide variety of specific needs, local codes, and climatic conditions. These details and specifications are easily obtained from your builder, contractors, and/or local engineers.

BEST PRICE GUARANTEE

Find the same house plan (modifications included!) and package for less on another site, show us the URL and we'll give you the difference plus an additional 10% back.

100% SATISFACTION GUARANTEE

We offer a one-time, 30-day exchange policy for unused, printed plan packages in the event you aren't satisfied with your first selection.

 
 

Plan 12503  Back to plan page

Loading...