Get discounts,
promos, see our
newest plans
and more!
+ 15% off any plan
See terms opt out anytime


No Thanks

Thanks for
signing up!


Use Code:

SIGNUP15

And save 15% off any plan!

Check your email for details.

CLOSE
Search Plans
Customer Reviews
     
15% off ALL House Plans Sitewide
15% off ALL House Plans Sitewide
15% off ALL House Plans Sitewide

Code: HONOR
Sale ends midnight 5/31/2026 PST

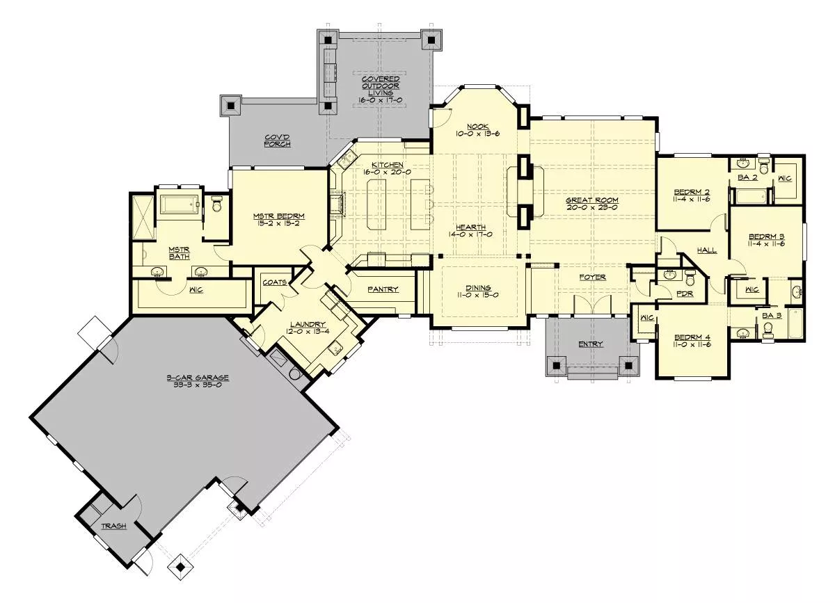
Fitchdale 4 Bedroom Craftsman Style House, Plan 7466

 
 

Sq Ft
3,270 FT²

Beds
4

Baths
3.5

Stories
1

Garage
3

Depth
88'

Width
124'
On Sale
$1,827.50
$2,150.00
© copyright by designer
 View All 25 Images | Photographs may reflect modified home
Sq Ft
3,270 FT²
Beds
4
Baths
3.5
Stories
1
Garage
3
Depth
88'
Width
124'
 
Click to Zoom In on Floor Plan
© copyright by designer
 
 

About This Plan

Everything about House Plan 7466, a sprawling Craftsman estate, is centered around comfort and ease of living. This 3,270 square foot ranch-style plan is accessible and spacious thanks to its single-level layout. An attached 3-car garage joins with the sharp yet rustic details of the façade, such as the gabled roofline with exposed wood and stone elements, to create a stately yet welcoming feeling. As you step inside and into the foyer, you are immediately greeted with an amazing layout that places the common spaces between the bedrooms. The expansive great room sits directly ahead, featuring a brilliant double-sided fireplace that it shares with the hearth room, as well as providing access to the three auxiliary bedrooms. Two of these bedrooms share a Jack-and-Jill style bath, and the other has its own private ensuite and walk-in closet, making it a perfect place for guests. Continue across the house and you'll find an exceptional U-shaped kitchen with two islands overlooking the hearth room, which is open to the dining room and breakfast nook on either side. A spacious walk-in pantry provides ample storage for food, while the breakfast nook leads out on to a great covered back porch complete with a built-in barbecue! The garage enters the home into the mudroom and laundry room, in a convenient location by the pantry. Finally, no home would be complete without a great primary suite, and this plan provides just that. Relax in the large bedroom and soothing spa bath. You'll want for nothing with this five-piece ensuite and large walk-in closet!

  

See All Plan Options
 

FEATURES & DETAILS

Kitchen features
Country Kitchen
Kitchen Island
U-Shaped
Walk-in Pantry
Bedroom features
Double Vanity Sink
Guest Suite
Primary Bdrm Main Floor
Separate Tub and Shower
Split Bedrooms
Walk-in Closet
Exterior features
Covered Front Porch
Covered Rear Porch
Outdoor Kitchen
Outdoor Living Space
Foundation Options
Crawlspace
Lot Options
Suited for view lot
Additional features
Dining Room
Family Room
Fireplace
Foyer
Great Room
Laundry 1st Fl
Mud Room
Open Floor Plan
Vaulted Ceilings
Vaulted Great Room/Living
Garage Location
Side
Garage Options
Attached
Front-entry
4,430 Ft
2
Total Structure
3,270 Ft
2
Total Heated
3,270 Ft
2
1st Floor
4
Bedrooms
3.5
Bathrooms
3
Garage
1
Stories
124' 0"
Width
88' 0"
Depth
23' 0"
Height
9' 0"
Main Floor Ceiling
2x6
Framing
Truss
Roof Framing
8/12
Primary Roof Pitch
Single
Dwelling Number
None
Bonus Access

Unheated Living Space
1,160 Ft
2
Garage
 

Plan Package Options

 Select Plan Package
 Need To Reverse Plan? (Optional)
  Select Foundation Option
  Add-Ons (Optional)
INCLUDED WITH YOUR PURCHASE

Free Ground shipping in the U.S.

FREE

Home Building & Product Ideas Organizer

Sub Total
$0
Free Shipping
IMPORTANT NOTE: Due to state regulations, this home is not available for purchase in the State of Washington. Contact us for more information.
QUESTIONS OR NEED HELP ORDERING? LIVE CHAT OR CALL US AT 866-214-2242
Plan Packages

Each set of construction documents typically includes detailed, dimensioned floor plans, basic electric layouts, cross sections, roof details, cabinet layouts, and elevations, as well as general IRC specifications. Please refer to the ARCHITECT or DESIGNER’S PLAN DETAILS link above the floor plan on any plan page to determine the specific details for each plan. Our house plans contain virtually all of the information required to construct your home. The typical plan set does not include plumbing, HVAC drawings, or engineering stamps due to the wide variety of specific needs, local codes, and climatic conditions. These details and specifications are easily obtained from your builder, contractors, and/or local engineers.

BEST PRICE GUARANTEE

Find the same house plan (modifications included!) and package for less on another site, show us the URL and we'll give you the difference plus an additional 10% back.

100% SATISFACTION GUARANTEE

We offer a one-time, 30-day exchange policy for unused, printed plan packages in the event you aren't satisfied with your first selection.

 
 

Plan 7466  Back to plan page

Loading...