Get discounts,
promos, see our
newest plans
and more!
+ 15% off any plan
See terms opt out anytime


No Thanks

Thanks for
signing up!


Use Code:

SIGNUP15

And save 15% off any plan!

Check your email for details.

CLOSE
Search Plans
Customer Reviews
     

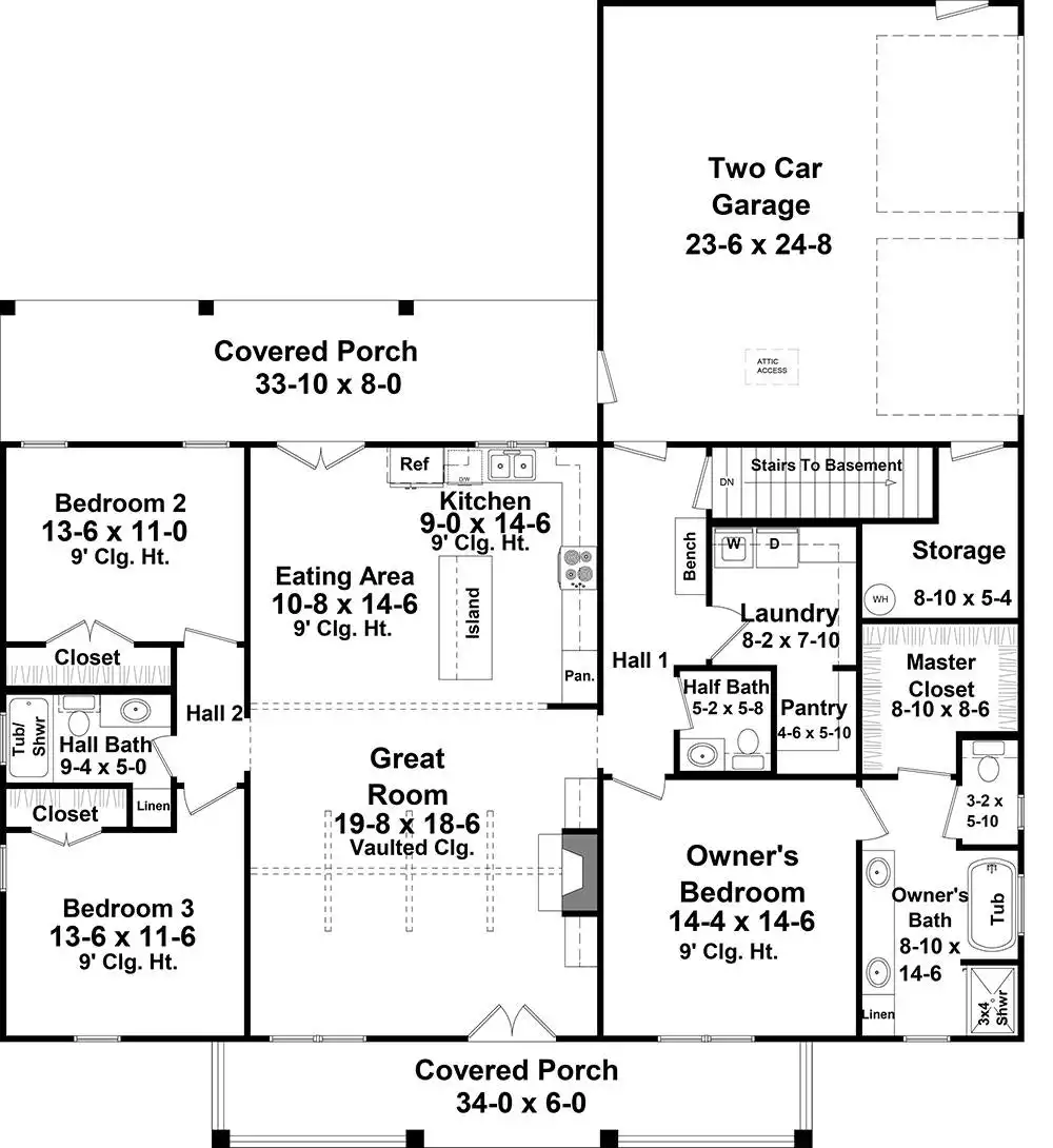
The Dunham 3 Bedroom Country Farmhouse Style House, Plan 9175

 
 

Sq Ft
1,800 FT²

Beds
3

Baths
2.5

Stories
1

Garage
2

Depth
59' 6"

Width
58'
From
$1,300.00
© copyright by designer
 View All 4 Images | Photographs may reflect modified home
Sq Ft
1,800 FT²
Beds
3
Baths
2.5
Stories
1
Garage
2
Depth
59' 6"
Width
58'
 
Click to Zoom In on Floor Plan
© copyright by designer
 
 

About This Plan

Are you looking for a great country-style ranch with exterior symmetry and a modestly sized interior? Take a look at House Plan 9175, an 1,800-square-foot design with a cute facade, a side-entry garage in back, and a wonderfully laid out floor plan. First up, the open-concept interior makes up the heart of the home, with a vaulted ceiling over the great room in front and an island kitchen beside dining space in back. The primary bedroom suite is located on one side, with a spacious five-piece bath and a walk-in closet. The powder room and large laundry/pantry are also on this side of the house, along with the entry from the garage. The other two bedrooms and a hall bath to share round out this lovely design in the opposite hallway.  

See All Plan Options
 

FEATURES & DETAILS

Kitchen features
Country Kitchen
Kitchen Island
L-Shaped
Nook / Breakfast Area
Pantry
Peninsula / Eating Bar
Bedroom features
Primary Bdrm Main Floor
Separate Tub and Shower
Split Bedrooms
Walk-in Closet
Exterior features
Covered Front Porch
Covered Rear Porch
Additional features
Fireplace
Great Room
Home Office
Laundry 1st Fl
Library/Media Rm
Mud Room
Open Floor Plan
Storage Space
Vaulted Great Room/Living
Garage Location
Rear
Garage Options
Attached
Rear-entry
Side-entry
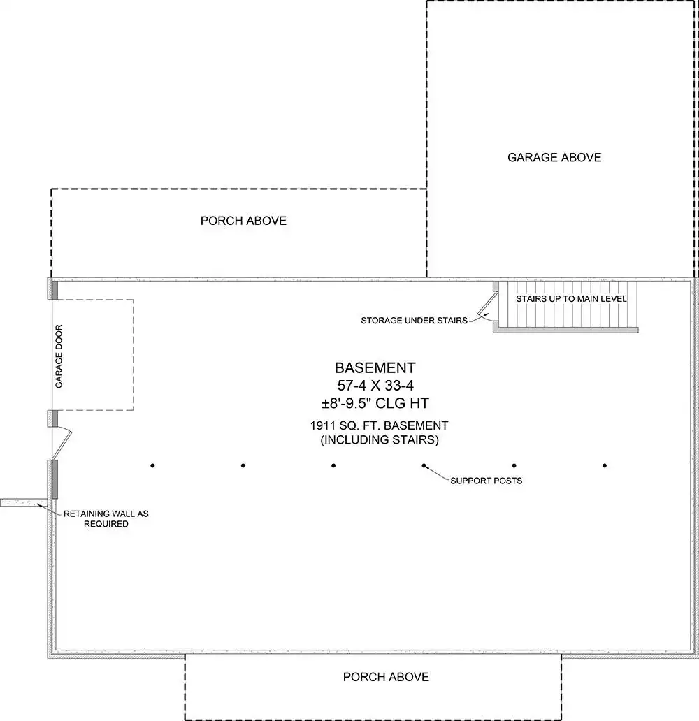
1,800 Ft
2
Total Heated
3
Bedrooms
2.5
Bathrooms
2
Garage
1
Stories
58' 0"
Width
59' 6"
Depth
23' 9"
Height
9' 0"
Main Floor Ceiling
2x4
Framing
Stick
Roof Framing
8 in 12
Primary Roof Pitch
10 in 12
Secondary Roof Pitch
Single
Dwelling Number
None
Bonus Access

Unheated Living Space
642 Ft
2
Garage
204 Ft
2
Front Porch
270 Ft
2
Rear Porch
 

Plan Package Options

 Select Plan Package
$1,150
Study Set - Printed
One printed set of house plans stamped NOT FOR CONSTRUCTION". This set is intended for review purposes and are mailed to you. To build from the plans, you need to upgrade to a licensed set.
$1,150
$1,400
5 Printed Sets

Five Printed Sets of Residential Construction Drawings are typically 24” x 36” documents and come with a license to construct a single residence shipped to a physical address. Keep in mind PDF Plan Packages are our most popular choice which allows you to print as many copies as you need and to electronically send files to your builder, subcontractors, etc.

$1,400
$1,600
5 Printed Sets + PDF

Includes 5 physical printed blueprints shipped and delivered within 3-5 business days and a copyright release license to construct one home and to make copies. A complimentary PDF plan set is also emailed within 1 business day for easy sharing and local printing. 

$1,600
$1,300
PDF Single Build

Digital plans emailed to you in PDF format that allows for printing copies and sharing electronically with contractors, subs, decorators, and more. This package includes a license to build the home one time.

$1,300
$1,950
CAD + PDF Single Build

This plan package is created in AutoCAD and delivered in .DWG format. CAD files are intended for use by design professionals, structural engineers, and builders to update plans for local building codes or to make revisions based on specific needs, lot requirements, and budget considerations. A complimentary PDF copy is included with this package for reference. CAD packages are delivered within 1 to 2 business days.
 
This package also comes with a copyright release for making revisions and printing unlimited copies.

For details on the specific CAD program used, please refer to the PLAN DETAILS section located above the floor plan on each plan page.

$1,950
 Need To Reverse Plan? (Optional)
$150
Readable Reverse

Reverse house plans with readable text and dimensions 

$150
  Select Foundation Option
  Add-Ons (Optional)
INCLUDED WITH YOUR PURCHASE

Free Ground shipping in the Continental U.S.

FREE

Home Building & Product Ideas Organizer

Sub Total
$0
Free Shipping
QUESTIONS OR NEED HELP ORDERING? LIVE CHAT OR CALL US AT 866-214-2242
Plan Packages

Each set of construction documents includes detailed, dimensioned floor plans, basic electric layouts, cross sections, roof details, cabinet layouts and elevations, as well as general IRC specifications. They contain virtually all of the information required to construct your home. The typical plan set does not include any plumbing, HVAC drawings, or engineering stamps due to the wide variety of specific needs, local codes, and climatic conditions. These details and specifications are easily obtained from your builder, contractors, and/or local engineers.

BEST PRICE GUARANTEE

Find the same house plan (modifications included!) and package for less on another site, show us the URL and we'll give you the difference plus an additional 5% back.

100% SATISFACTION GUARANTEE

We offer a one-time, 30-day exchange policy for unused, printed plan packages in the event you aren't satisfied with your first selection. Exchanges are subject to a 20% restocking fee.

 
 

Plan 9175  Back to plan page

Loading...