Get discounts,
promos, see our
newest plans
and more!
+ 15% off any plan
See terms opt out anytime


No Thanks

Thanks for
signing up!


Use Code:

SIGNUP15

And save 15% off any plan!

Check your email for details.

CLOSE
Search Plans
Customer Reviews
     
15% off ALL House Plans Sitewide
15% off ALL House Plans Sitewide
15% off ALL House Plans Sitewide

Code: HONOR
Sale ends midnight 5/31/2026 PST

Haystack II Beautiful Modern Farmhouse Style, Plan 2386

 
 

Sq Ft
1,928 FT²

Beds
3

Baths
3.5

Stories
1

Garage
2

Depth
50' 7"

Width
86' 6"
On Sale
$1,100.75
$1,295.00
© copyright by designer
 View All 24 Images | Photographs may reflect modified home | Video Tour
Sq Ft
1,928 FT²
Beds
3
Baths
3.5
Stories
1
Garage
2
Depth
50' 7"
Width
86' 6"
 

 
Click to Zoom In on Floor Plan
© copyright by designer
 
 

About This Plan

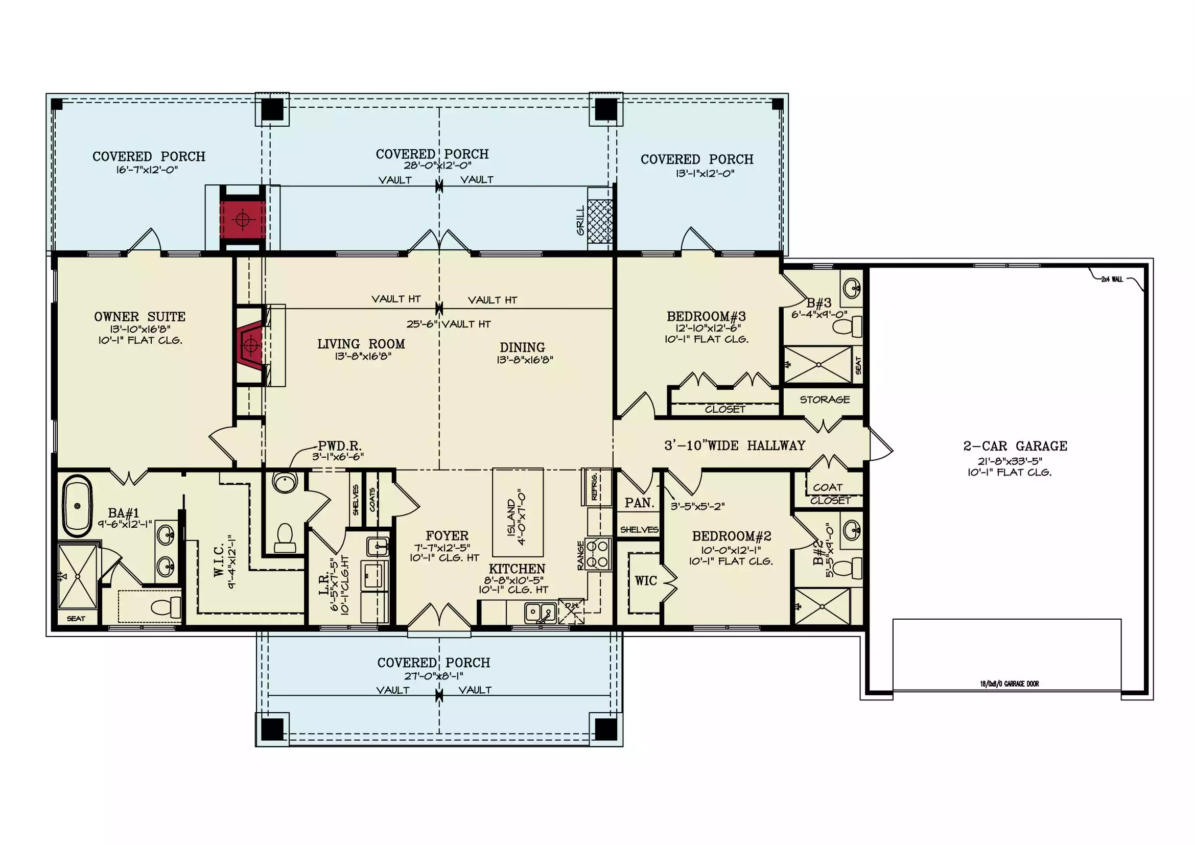
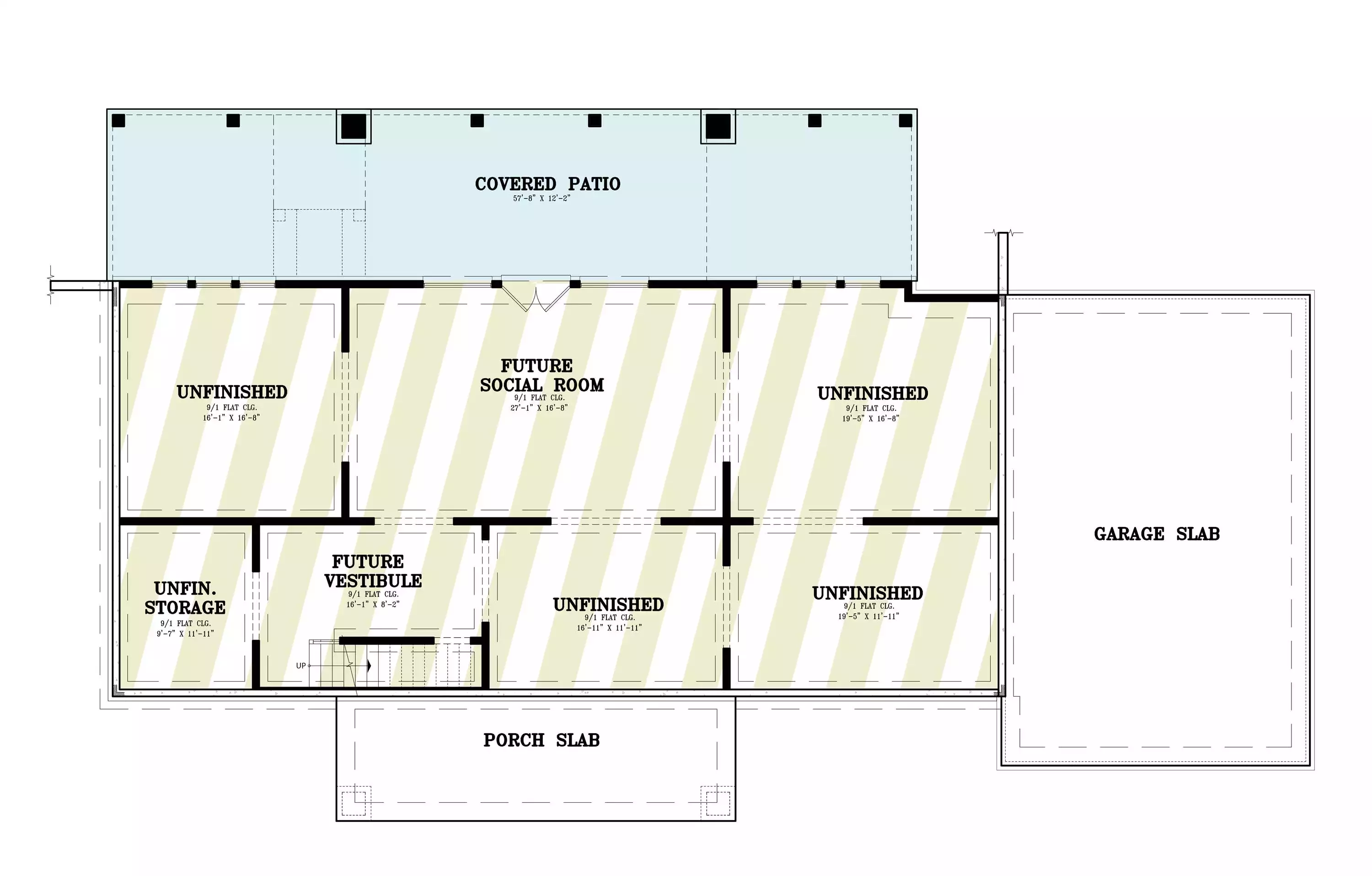
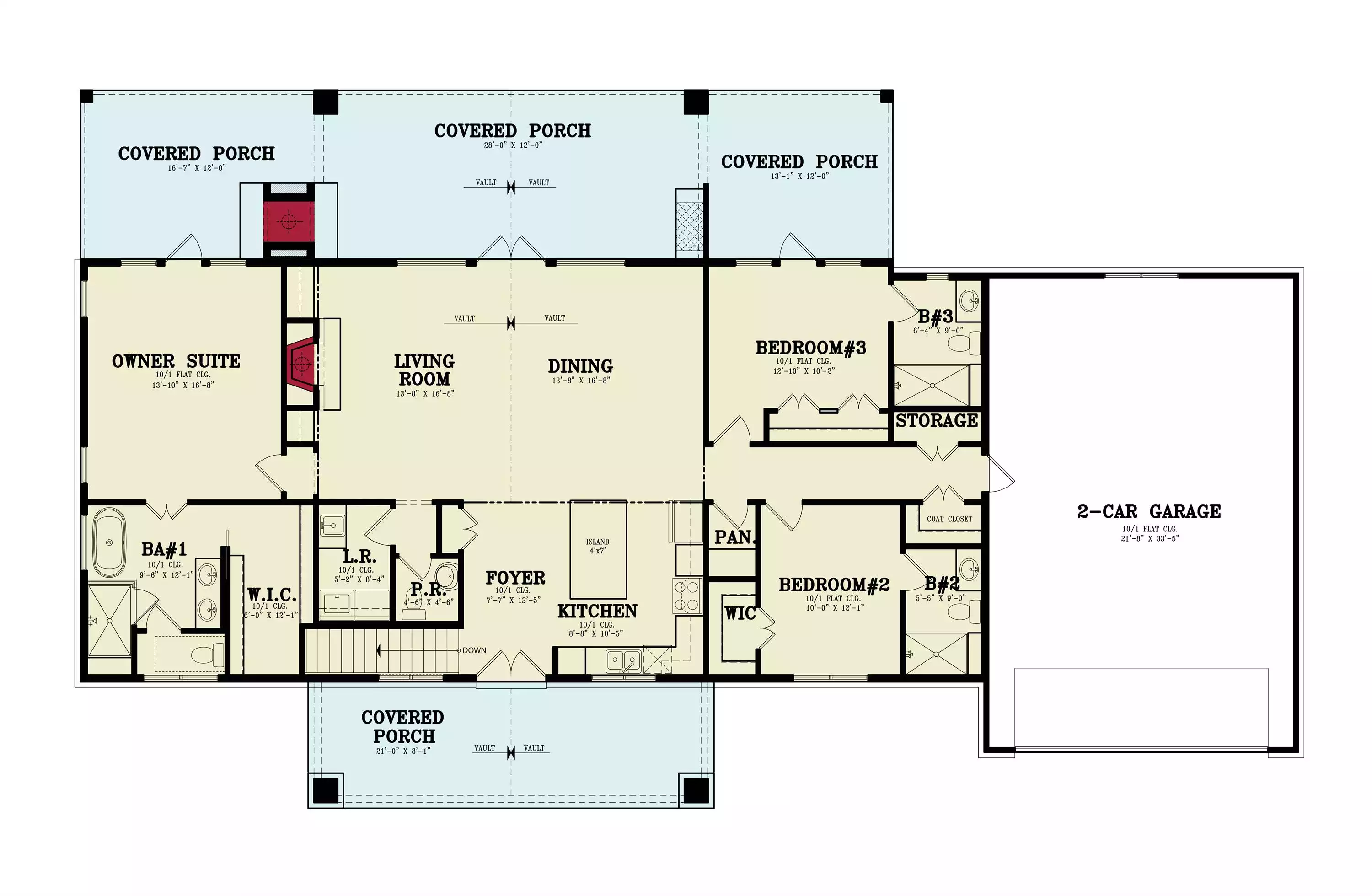
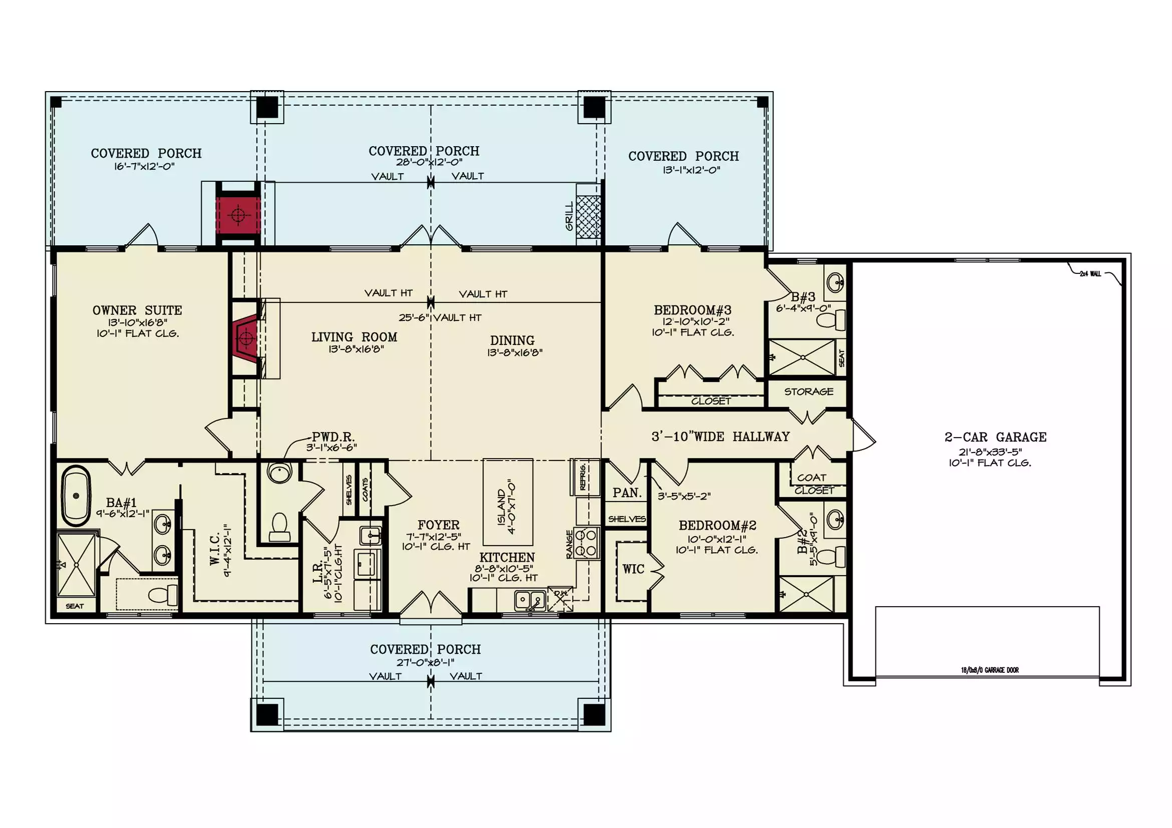
Here by popular demand! House Plan 2386 is the two-car attached garage version of House Plan 7623, a rustic ranch made for a natural location! This design boasts 1,928 square feet across a wide layout without as much depth, so it's poised to take in sweeping views. Inside, a vaulted great room makes up the center of the floor plan, with an L-shaped island kitchen beside the front entry and a dramatic vaulted ceiling with large and high windows over the living and dining areas. On one side, you'll find the luxurious primary suite with a five-piece bath and a large walk-in closet. The laundry and powder room are also on this side of the house while the other two bedroom suites sit opposite one another in the hallway that attaches to the garage. But that's not all! There's a nearly full-width back porch with vaulted and flat ceilings as well as an outdoor fireplace. Just imagine enjoying this home year-round or in your favorite location spot! 

Love this plan but need more space? Its sister design, House Plan 10853, adds a bonus room, extra bedroom, and flex space—all neatly arranged on a second story. 

See All Plan Options
 

FEATURES & DETAILS

Kitchen features
Kitchen Island
L-Shaped
Pantry
Bedroom features
Double Vanity Sink
Guest Suite
Primary Bdrm Main Floor
Separate Tub and Shower
Split Bedrooms
Walk-in Closet
Exterior features
Covered Front Porch
Covered Rear Porch
Outdoor Living Space
Lot Options
Suited for view lot
Additional features
Fireplace
Great Room
Laundry 1st Fl
Open Floor Plan
Vaulted Ceilings
Vaulted Great Room/Living
Garage Location
Side
Garage Options
Attached
Front-entry
3,664 Ft
2
Total Structure
1,928 Ft
2
Total Heated
1,928 Ft
2
1st Floor
1,883 Ft
2
Lower Floor
3
Bedrooms
3.5
Bathrooms
2
Garage
1
Stories
86' 6"
Width
50' 7"
Depth
26' 8"
Height
10' 1"
Main Floor Ceiling
9' 0"
Lower Floor Ceiling
2x6
Framing
Stick
Roof Framing
12/12
Primary Roof Pitch
Single
Dwelling Number
None
Bonus Access

Unheated Living Space
749 Ft
2
Garage
260 Ft
2
Front Porch
727 Ft
2
Rear Porch
 

Plan Package Options

 Select Plan Package
 Need To Reverse Plan? (Optional)
  Select Foundation Option
  Add-Ons (Optional)
INCLUDED WITH YOUR PURCHASE

Free Ground shipping in the U.S.

FREE

Home Building & Product Ideas Organizer

Sub Total
$0
Free Shipping
QUESTIONS OR NEED HELP ORDERING? LIVE CHAT OR CALL US AT 866-214-2242
Plan Packages

Each set of construction documents typically includes detailed, dimensioned floor plans, basic electric layouts, cross sections, roof details, cabinet layouts, and elevations, as well as general IRC specifications. Please refer to the ARCHITECT or DESIGNER’S PLAN DETAILS link above the floor plan on any plan page to determine the specific details for each plan. Our house plans contain virtually all of the information required to construct your home. The typical plan set does not include plumbing, HVAC drawings, or engineering stamps due to the wide variety of specific needs, local codes, and climatic conditions. These details and specifications are easily obtained from your builder, contractors, and/or local engineers.

BEST PRICE GUARANTEE

Find the same house plan (modifications included!) and package for less on another site, show us the URL and we'll give you the difference plus an additional 10% back.

100% SATISFACTION GUARANTEE

We offer a one-time, 30-day exchange policy for unused, printed plan packages in the event you aren't satisfied with your first selection.

 
 

Plan 2386  Back to plan page

Loading...