Get discounts,
promos, see our
newest plans
and more!
+ 15% off any plan
See terms opt out anytime


No Thanks

Thanks for
signing up!


Use Code:

SIGNUP15

And save 15% off any plan!

Check your email for details.

CLOSE
Search Plans
Customer Reviews
     
15% off ALL House Plans Sitewide
15% off ALL House Plans Sitewide
15% off ALL House Plans Sitewide

Code: HONOR
Sale ends midnight 5/31/2026 PST

Chesterville 3 Bedroom Country Style House, Plan 10092

 
 

Sq Ft
1,826 FT²

Beds
3

Baths
2.5

Stories
1.5

Garage
2

Depth
66' 2"

Width
58'
On Sale
$1,105.00
$1,300.00
© copyright by designer
 View All 4 Images | Photographs may reflect modified home
Sq Ft
1,826 FT²
Beds
3
Baths
2.5
Stories
1.5
Garage
2
Depth
66' 2"
Width
58'
 
Click to Zoom In on Floor Plan
© copyright by designer
 
 

About This Plan

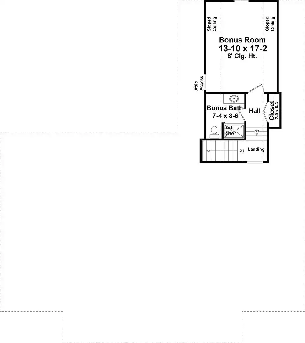
If you want a great country home for a family, see what House Plan 10092 has to offer. This 1,826-square-foot ranch boasts a simple rectangular shape for the main floor plan, plus another rectangle on the back for the garage, so it's more affordable than most to build! Inside, you'll find a vaulted open great room in the center of the floor plan, with the island kitchen open to the eating space in back. On one side, two bedrooms are separated by a hall bath. On the other, the primary suite has its privacy and a comfortable five-piece bath and walk-in closet. The half bath, laundry room/pantry, and access to the two-car garage are also in this hallway. But that's not all! Head up the stairs and there's a bonus room and a bonus bath you can finish later on when you need more space!  

See All Plan Options
 

FEATURES & DETAILS

Kitchen features
Kitchen Island
L-Shaped
Nook / Breakfast Area
Pantry
Walk-in Pantry
Bedroom features
Double Vanity Sink
Primary Bdrm Main Floor
Separate Tub and Shower
Split Bedrooms
Walk-in Closet
Exterior features
Covered Front Porch
Covered Rear Porch
Outdoor Kitchen
Lot Options
Suited for corner lot
Additional features
Bonus Room
Exercise Room
Fireplace
Great Room
Laundry 1st Fl
Open Floor Plan
Storage Space
Unfinished Space
Vaulted Ceilings
Vaulted Great Room/Living
Garage Location
Rear
Garage Options
Attached
Side-entry
3,395 Ft
2
Total Structure
1,826 Ft
2
Total Heated
1,826 Ft
2
1st Floor
3
Bedrooms
2.5
Bathrooms
2
Garage
1.5
Stories
58' 0"
Width
66' 2"
Depth
22' 9"
Height
9' 0"
Main Floor Ceiling
8' 0"
Upper Floor Ceiling
Vaulted' 0"
Living/Great Room Ceiling
2x4
Framing
Stick
Roof Framing
8/12
Primary Roof Pitch
12/12
Secondary Roof Pitch
Single
Dwelling Number
2nd Floor
Bonus Access

Unheated Living Space
753 Ft
2
Garage
204 Ft
2
Front Porch
239 Ft
2
Rear Porch
373 Ft
2
Bonus Room
 

Plan Package Options

 Select Plan Package
 Need To Reverse Plan? (Optional)
  Select Foundation Option
  Add-Ons (Optional)
INCLUDED WITH YOUR PURCHASE

Free Ground shipping in the U.S.

FREE

Home Building & Product Ideas Organizer

Sub Total
$0
Free Shipping
QUESTIONS OR NEED HELP ORDERING? LIVE CHAT OR CALL US AT 866-214-2242
Plan Packages

Each set of construction documents typically includes detailed, dimensioned floor plans, basic electric layouts, cross sections, roof details, cabinet layouts, and elevations, as well as general IRC specifications. Please refer to the ARCHITECT or DESIGNER’S PLAN DETAILS link above the floor plan on any plan page to determine the specific details for each plan. Our house plans contain virtually all of the information required to construct your home. The typical plan set does not include plumbing, HVAC drawings, or engineering stamps due to the wide variety of specific needs, local codes, and climatic conditions. These details and specifications are easily obtained from your builder, contractors, and/or local engineers.

BEST PRICE GUARANTEE

Find the same house plan (modifications included!) and package for less on another site, show us the URL and we'll give you the difference plus an additional 10% back.

100% SATISFACTION GUARANTEE

We offer a one-time, 30-day exchange policy for unused, printed plan packages in the event you aren't satisfied with your first selection.

 
 

Plan 10092  Back to plan page

Loading...