Get discounts,
promos, see our
newest plans
and more!
+ 15% off any plan
See terms opt out anytime


No Thanks

Thanks for
signing up!


Use Code:

SIGNUP15

And save 15% off any plan!

Check your email for details.

CLOSE
Search Plans
Customer Reviews
     

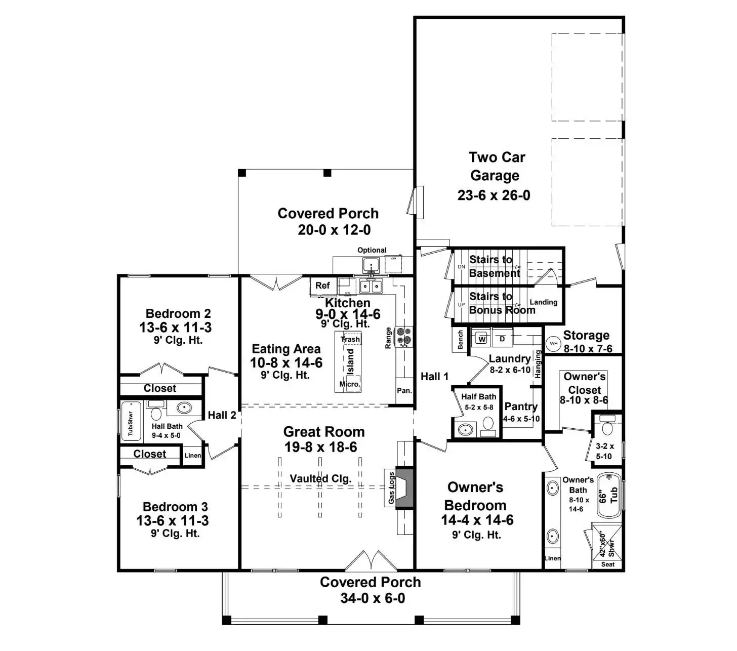
The Eastly 3 Bedroom Country Style House, Plan 10072

 
 

Sq Ft
1,826 FT²

Beds
3

Baths
2.5

Stories
1.5

Garage
2

Depth
65' 2"

Width
58'
From
$1,300.00
© copyright by designer
 View All 6 Images | Photographs may reflect modified home
Sq Ft
1,826 FT²
Beds
3
Baths
2.5
Stories
1.5
Garage
2
Depth
65' 2"
Width
58'
 
Click to Zoom In on Floor Plan
© copyright by designer
 
 

About This Plan

If you need an affordable home for a family, consider House Plan 10072! This 1,826-square-foot country ranch offers open-concept living with a vaulted great room and an island kitchen overlooking the eating area in the center of the layout and three bedrooms split across for privacy. The owners' suite offers a lovely five-piece bath and a walk-in closet while the other two bedrooms share a hall bath. A powder room, a laundry room that includes a walk-in pantry, and the garage with storage space round out the main level. If you need more, there's a bonus room and another full bath over the garage that would make a nice media room or bedroom!  

See All Plan Options
 

FEATURES & DETAILS

Kitchen features
Country Kitchen
Kitchen Island
L-Shaped
Nook / Breakfast Area
Pantry
Walk-in Pantry
Bedroom features
Double Vanity Sink
Primary Bdrm Main Floor
Separate Tub and Shower
Split Bedrooms
Walk-in Closet
Exterior features
Covered Front Porch
Covered Rear Porch
Outdoor Kitchen
Lot Options
Suited for corner lot
Additional features
Bonus Room
Fireplace
Great Room
Laundry 1st Fl
Open Floor Plan
Storage Space
Unfinished Space
Vaulted Ceilings
Vaulted Great Room/Living
Garage Location
Rear
Garage Options
Attached
Oversized
Side-entry
3,315 Ft
2
Total Structure
1,826 Ft
2
Total Heated
1,826 Ft
2
1st Floor
3
Bedrooms
2.5
Bathrooms
2
Garage
1.5
Stories
58' 0"
Width
65' 2"
Depth
23' 9"
Height
9' 0"
Main Floor Ceiling
8' 0"
Upper Floor Ceiling
Vaulted' 0"
Living/Great Room Ceiling
9' 0"
Primary Ceiling
2x4
Framing
Stick
Roof Framing
8/12
Primary Roof Pitch
10/12
Secondary Roof Pitch
Single
Dwelling Number
1st Floor
Bonus Access

Unheated Living Space
642 Ft
2
Garage
204 Ft
2
Front Porch
270 Ft
2
Rear Porch
373 Ft
2
Bonus Room
 

Plan Package Options

 Select Plan Package
 Need To Reverse Plan? (Optional)
  Select Foundation Option
  Add-Ons (Optional)
INCLUDED WITH YOUR PURCHASE

Free Ground shipping in the U.S.

FREE

Home Building & Product Ideas Organizer

Sub Total
$0
Free Shipping
QUESTIONS OR NEED HELP ORDERING? LIVE CHAT OR CALL US AT 866-214-2242
Plan Packages

Each set of construction documents includes detailed, dimensioned floor plans, basic electric layouts, cross sections, roof details, cabinet layouts and elevations, as well as general IRC specifications. They contain virtually all of the information required to construct your home. The typical plan set does not include any plumbing, HVAC drawings, or engineering stamps due to the wide variety of specific needs, local codes, and climatic conditions. These details and specifications are easily obtained from your builder, contractors, and/or local engineers.

BEST PRICE GUARANTEE

Find the same house plan (modifications included!) and package for less on another site, show us the URL and we'll give you the difference plus an additional 10% back.

100% SATISFACTION GUARANTEE

We offer a one-time, 30-day exchange policy for unused, printed plan packages in the event you aren't satisfied with your first selection.

 
 

Plan 10072  Back to plan page

Loading...