Get discounts,
promos, see our
newest plans
and more!
+ 15% off any plan
See terms opt out anytime


No Thanks

Thanks for
signing up!


Use Code:

SIGNUP15

And save 15% off any plan!

Check your email for details.

CLOSE
Search Plans
Customer Reviews
     
15% off ALL House Plans Sitewide
15% off ALL House Plans Sitewide
15% off ALL House Plans Sitewide

Code: HONOR
Sale ends midnight 5/31/2026 PST

Loghan 4 Bedroom Cottage Style House, Plan 2805

 
 

Sq Ft
1,612 FT²

Beds
4

Baths
2

Stories
1

Garage
0

Depth
40'

Width
48'
On Sale
$1,428.00
$1,680.00
© copyright by designer
 View All 11 Images | Photographs may reflect modified home
Sq Ft
1,612 FT²
Beds
4
Baths
2
Stories
1
Garage
0
Depth
40'
Width
48'
 
Click to Zoom In on Floor Plan
© copyright by designer
 
 

About This Plan

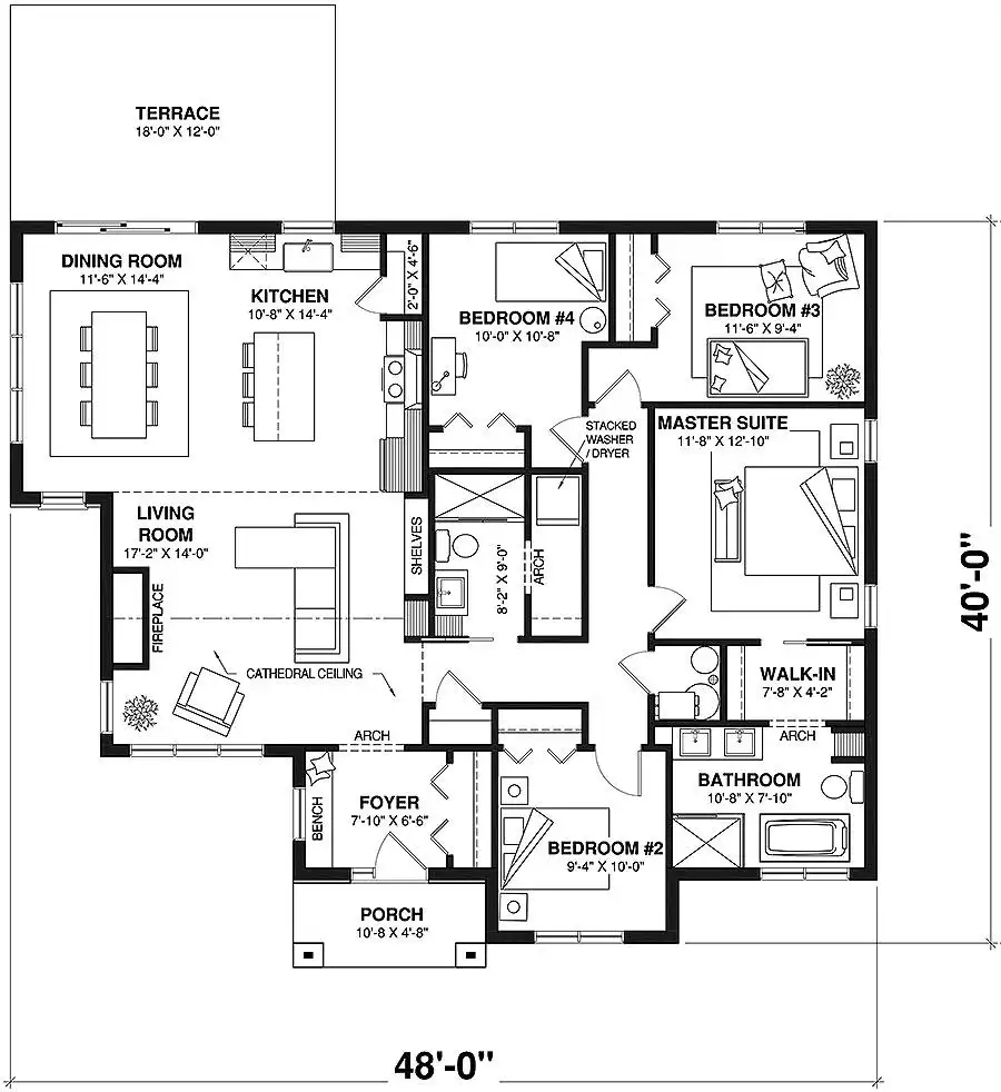
If you're looking for a beautiful, modestly sized home for a family, consider House Plan 2805! This adorable one-story cottage offers 1,612 square feet with open living, four grouped bedrooms, and two bathrooms. When you enter, a thoughtful foyer with a closet on one side and a bench on the other welcomes you home. An arched doorway leads to the great room, where you'll enjoy a vaulted living space with a fireplace in front and an island kitchen overlooking the dining area in back. The hallway to the side includes all four bedrooms. There's one bedroom with front windows and two with back windows while the primary suite is placed on the side, complete with its own walk-through closet and private five-piece bath. The secondary bedrooms share a central three-piece hall bath. The laundry is tucked through an arched doorway in the hall bathroom. This is a perfectly balanced home for growing families!  

See All Plan Options
 

FEATURES & DETAILS

Kitchen features
Kitchen Island
L-Shaped
Pantry
Bedroom features
Double Vanity Sink
Family Style
Primary Bdrm Main Floor
Separate Tub and Shower
Walk-in Closet
Exterior features
Front Porch
Rear Porch
Lot Options
Suited for view lot
Additional features
Arches
Dining Room
Family Room
Fireplace
Foyer
Great Room
Laundry 1st Fl
Mud Room
Open Floor Plan
Vaulted Ceilings
Vaulted Great Room/Living
Garage Options
None
1,871 Ft
2
Total Structure
1,612 Ft
2
Total Heated
1,612 Ft
2
1st Floor
4
Bedrooms
2
Bathrooms
0
Garage
1
Stories
48' 0"
Width
40' 0"
Depth
21' 9"
Height
9' 0"
Main Floor Ceiling
12' 8"
Living/Great Room Ceiling
9' 0"
Foyer Ceiling
9' 0"
Primary Ceiling
2x6
Framing
Truss
Roof Framing
9/12
Primary Roof Pitch
Single
Dwelling Number
None
Bonus Access

Unheated Living Space
43 Ft
2
Front Porch
216 Ft
2
Patio
 

Plan Package Options

 Select Plan Package
 Need To Reverse Plan? (Optional)
  Select Foundation Option
  Add-Ons (Optional)
INCLUDED WITH YOUR PURCHASE

Free Ground shipping in the U.S.

FREE

Home Building & Product Ideas Organizer

Sub Total
$0
Free Shipping
Please allow 3-5 business days for delivery of this plan Please check our PDFs NOW collection for plans that can be downloaded and received immediately or live chat us to help you find a similar plan available now.
QUESTIONS OR NEED HELP ORDERING? LIVE CHAT OR CALL US AT 866-214-2242
Plan Packages

Each set of construction documents typically includes detailed, dimensioned floor plans, basic electric layouts, cross sections, roof details, cabinet layouts, and elevations, as well as general IRC specifications. Please refer to the ARCHITECT or DESIGNER’S PLAN DETAILS link above the floor plan on any plan page to determine the specific details for each plan. Our house plans contain virtually all of the information required to construct your home. The typical plan set does not include plumbing, HVAC drawings, or engineering stamps due to the wide variety of specific needs, local codes, and climatic conditions. These details and specifications are easily obtained from your builder, contractors, and/or local engineers.

BEST PRICE GUARANTEE

Find the same house plan (modifications included!) and package for less on another site, show us the URL and we'll give you the difference plus an additional 10% back.

100% SATISFACTION GUARANTEE

We offer a one-time, 30-day exchange policy for unused, printed plan packages in the event you aren't satisfied with your first selection.

 
 

Plan 2805  Back to plan page

Loading...