Get discounts,
promos, see our
newest plans
and more!
+ 15% off any plan
See terms opt out anytime


No Thanks

Thanks for
signing up!


Use Code:

SIGNUP15

And save 15% off any plan!

Check your email for details.

CLOSE
Search Plans
Customer Reviews
     
15% off ALL House Plans Sitewide
15% off ALL House Plans Sitewide
15% off ALL House Plans Sitewide

Code: SAVE15
Sale ends midnight 4/22/2026 PST

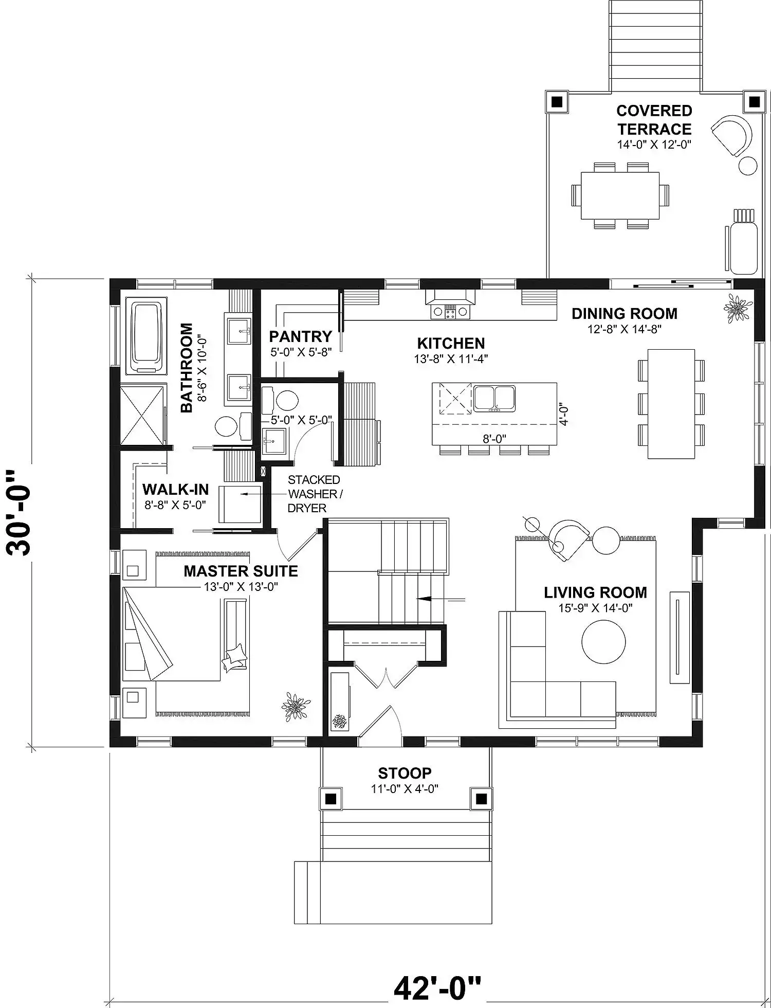
Fraserdale | 1 Bedroom Cottage Style House, Plan 11736

 
 

Sq Ft
1,204 FT²

Beds
1

Baths
1.5

Stories
1

Garage
0

Depth
30'

Width
42'
On Sale
$1,283.50
$1,510.00
© copyright by designer
 View All 4 Images | Photographs may reflect modified home
Sq Ft
1,204 FT²
Beds
1
Baths
1.5
Stories
1
Garage
0
Depth
30'
Width
42'
 
Click to Zoom In on Floor Plan
© copyright by designer
 
 

About This Plan

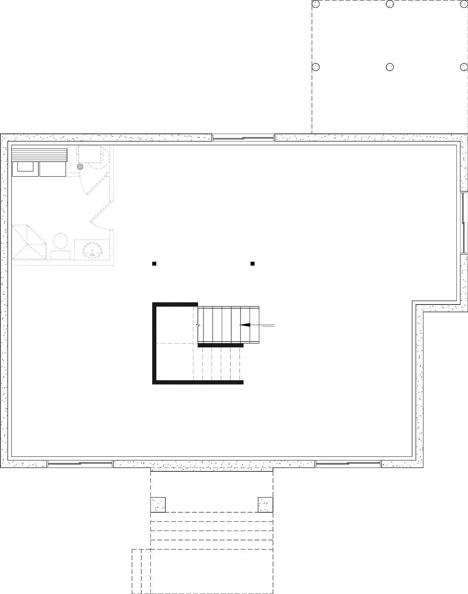
Fraserdale is a thoughtfully designed 1-bedroom bungalow that delivers comfortable main-level living with room to grow. The open floor plan connects the kitchen, dining, and living areas, creating a bright and welcoming space for everyday life. A kitchen island and walk-in pantry provide practical storage and prep space without overwhelming the layout. The primary bedroom is located on the main floor and includes generous closet space and a well-appointed bathroom, while a convenient half bath serves guests. Covered front and rear outdoor spaces extend the living area beyond the interior walls. An unfinished basement below offers excellent potential for future bedrooms, recreation space, or storage as needs evolve. 

See All Plan Options
 

FEATURES & DETAILS

Kitchen features
Kitchen Island
L-Shaped
Walk-in Pantry
Bedroom features
Double Vanity Sink
His and Hers Primary Closets
Primary Bdrm Main Floor
Separate Tub and Shower
Walk-in Closet
Exterior features
Covered Front Porch
Covered Rear Porch
Additional features
Dining Room
Family Room
Foyer
Laundry 1st Fl
Open Floor Plan
1,204 Ft
2
Total Heated
1,204 Ft
2
1st Floor
1,204 Ft
2
Lower Floor
1
Bedrooms
1.5
Bathrooms
0
Garage
1
Stories
42'
Width
30'
Depth
24'
Height
9' 0"
Main Floor Ceiling
2x6
Framing
Truss
Roof Framing
8/12
Primary Roof Pitch
Single
Dwelling Number

Unheated Living Space
 

Plan Package Options

 Select Plan Package
 Need To Reverse Plan? (Optional)
  Select Foundation Option
  Add-Ons (Optional)
INCLUDED WITH YOUR PURCHASE

Free Ground shipping in the U.S.

FREE

Home Building & Product Ideas Organizer

Sub Total
$0
Free Shipping
Please allow 3-5 business days for delivery of this plan Please check our PDFs NOW collection for plans that can be downloaded and received immediately or live chat us to help you find a similar plan available now.
QUESTIONS OR NEED HELP ORDERING? LIVE CHAT OR CALL US AT 866-214-2242
Plan Packages

Each set of construction documents typically includes detailed, dimensioned floor plans, basic electric layouts, cross sections, roof details, cabinet layouts, and elevations, as well as general IRC specifications. Please refer to the ARCHITECT or DESIGNER’S PLAN DETAILS link above the floor plan on any plan page to determine the specific details for each plan. Our house plans contain virtually all of the information required to construct your home. The typical plan set does not include plumbing, HVAC drawings, or engineering stamps due to the wide variety of specific needs, local codes, and climatic conditions. These details and specifications are easily obtained from your builder, contractors, and/or local engineers.

BEST PRICE GUARANTEE

Find the same house plan (modifications included!) and package for less on another site, show us the URL and we'll give you the difference plus an additional 10% back.

100% SATISFACTION GUARANTEE

We offer a one-time, 30-day exchange policy for unused, printed plan packages in the event you aren't satisfied with your first selection.

 
 

Plan 11736  Back to plan page

Loading...