Get discounts,
promos, see our
newest plans
and more!
+ 15% off any plan
See terms opt out anytime


No Thanks

Thanks for
signing up!


Use Code:

SIGNUP15

And save 15% off any plan!

Check your email for details.

CLOSE
Search Plans
Customer Reviews
     
15% off ALL House Plans Sitewide
15% off ALL House Plans Sitewide
15% off ALL House Plans Sitewide

Code: HONOR
Sale ends midnight 5/31/2026 PST

Bonzai 2 | Walkout Basement Contemporary Style House, Plan 10691

 
 

Sq Ft
1,528 FT²

Beds
3

Baths
2

Stories
1

Garage
0

Depth
37'

Width
26'
On Sale
$1,428.00
$1,680.00
© copyright by designer
 View All 8 Images | Photographs may reflect modified home
Sq Ft
1,528 FT²
Beds
3
Baths
2
Stories
1
Garage
0
Depth
37'
Width
26'
 
Click to Zoom In on Floor Plan
© copyright by designer
 
 

About This Plan

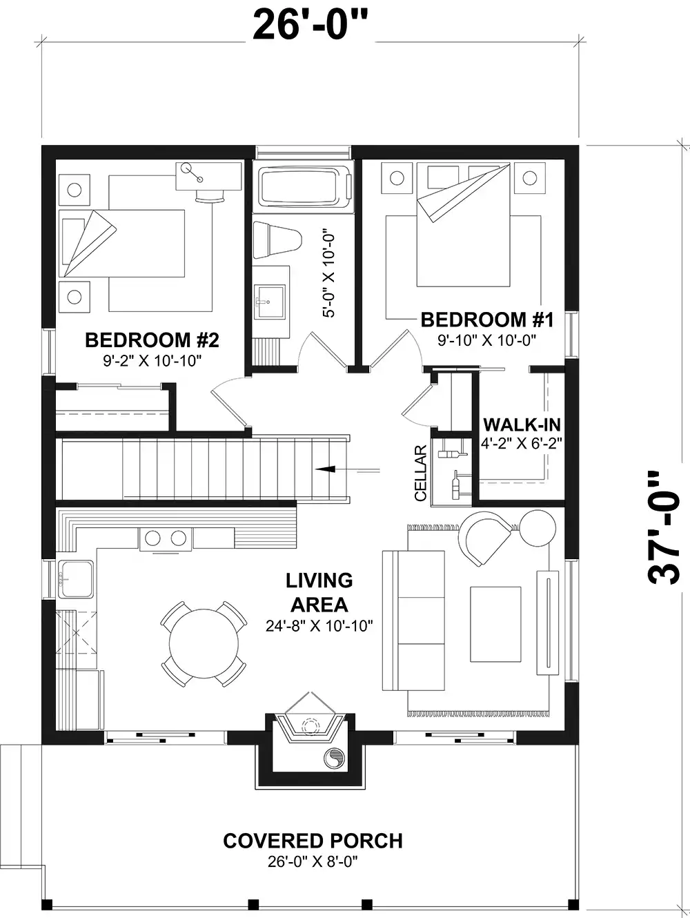
If you're looking for an affordable vacation home solution for a slope, give House Plan 10691 a try! This cute contemporary design boasts a rectangular footprint and a finished walkout basement to maximize bang for your buck. It offers 1,528 square feet split evenly between the main and lower levels, with three bedrooms and two bathrooms total. The main level includes an eat-in kitchen and living space in front, where they share views of the fireplace. In back, you'll find two bedrooms that share a three-piece hall bath. Make sure to notice the wine cellar across from the staircase! Head downstairs to find the final bedroom and bath, the family room with a wood-burning stove, and the laundry room. With a covered patio off the basement and a covered porch above, this design was made for views and enjoying the fresh air! 

See All Plan Options
 

FEATURES & DETAILS

Kitchen features
Country Kitchen
L-Shaped
Bedroom features
Primary Bdrm Main Floor
Walk-in Closet
Exterior features
Covered Front Porch
Outdoor Living Space
Lot Options
Suited for narrow lot
Suited for sloping lot
Suited for view lot
Additional features
Family Room
Fireplace
Great Room
Open Floor Plan
Vaulted Ceilings
Vaulted Great Room/Living
Vaulted Kitchen
Vaulted Primary
Wine Cellar
Garage Options
None
1,944 Ft
2
Total Structure
1,528 Ft
2
Total Heated
764 Ft
2
1st Floor
764 Ft
2
Lower Floor
3
Bedrooms
2
Bathrooms
0
Garage
1
Stories
26' 0"
Width
37' 0"
Depth
24' 5"
Height
8' 0"
Main Floor Ceiling
8' 0"
Lower Floor Ceiling
12' 0"
Living/Great Room Ceiling
2x6
Framing
Truss
Roof Framing
2/12
Primary Roof Pitch
Single
Dwelling Number

Unheated Living Space
208 Ft
2
Front Porch
208 Ft
2
Patio
 

Plan Package Options

 Select Plan Package
 Need To Reverse Plan? (Optional)
  Select Foundation Option
  Add-Ons (Optional)
INCLUDED WITH YOUR PURCHASE

Free Ground shipping in the U.S.

FREE

Home Building & Product Ideas Organizer

Sub Total
$0
Free Shipping
Please allow 3-5 business days for delivery of this plan Please check our PDFs NOW collection for plans that can be downloaded and received immediately or live chat us to help you find a similar plan available now.
QUESTIONS OR NEED HELP ORDERING? LIVE CHAT OR CALL US AT 866-214-2242
Plan Packages

Each set of construction documents typically includes detailed, dimensioned floor plans, basic electric layouts, cross sections, roof details, cabinet layouts, and elevations, as well as general IRC specifications. Please refer to the ARCHITECT or DESIGNER’S PLAN DETAILS link above the floor plan on any plan page to determine the specific details for each plan. Our house plans contain virtually all of the information required to construct your home. The typical plan set does not include plumbing, HVAC drawings, or engineering stamps due to the wide variety of specific needs, local codes, and climatic conditions. These details and specifications are easily obtained from your builder, contractors, and/or local engineers.

BEST PRICE GUARANTEE

Find the same house plan (modifications included!) and package for less on another site, show us the URL and we'll give you the difference plus an additional 10% back.

100% SATISFACTION GUARANTEE

We offer a one-time, 30-day exchange policy for unused, printed plan packages in the event you aren't satisfied with your first selection.

 
 

Plan 10691  Back to plan page

Loading...