Get discounts,
promos, see our
newest plans
and more!
+ 15% off any plan
See terms opt out anytime


No Thanks

Thanks for
signing up!


Use Code:

SIGNUP15

And save 15% off any plan!

Check your email for details.

CLOSE
Search Plans
Customer Reviews
     
15% off ALL House Plans Sitewide
15% off ALL House Plans Sitewide
15% off ALL House Plans Sitewide

Code: SAVE15
Sale ends midnight 4/19/2026 PST

The Bethel Outdoor Living Modern Farmhouse Style House, Plan 6579

 
 

Sq Ft
3,250 FT²

Beds
3

Baths
2.5

Stories
2

Garage
2

Depth
64' 10"

Width
85'
On Sale
$1,827.50
$2,150.00
© copyright by designer
 View All 8 Images | Photographs may reflect modified home
Sq Ft
3,250 FT²
Beds
3
Baths
2.5
Stories
2
Garage
2
Depth
64' 10"
Width
85'
 
Click to Zoom In on Floor Plan
© copyright by designer
 
 

About This Plan

This modern farmhouse checks off all of the boxes inside and out and even goes beyond the good ideas you might not have ever thought of.

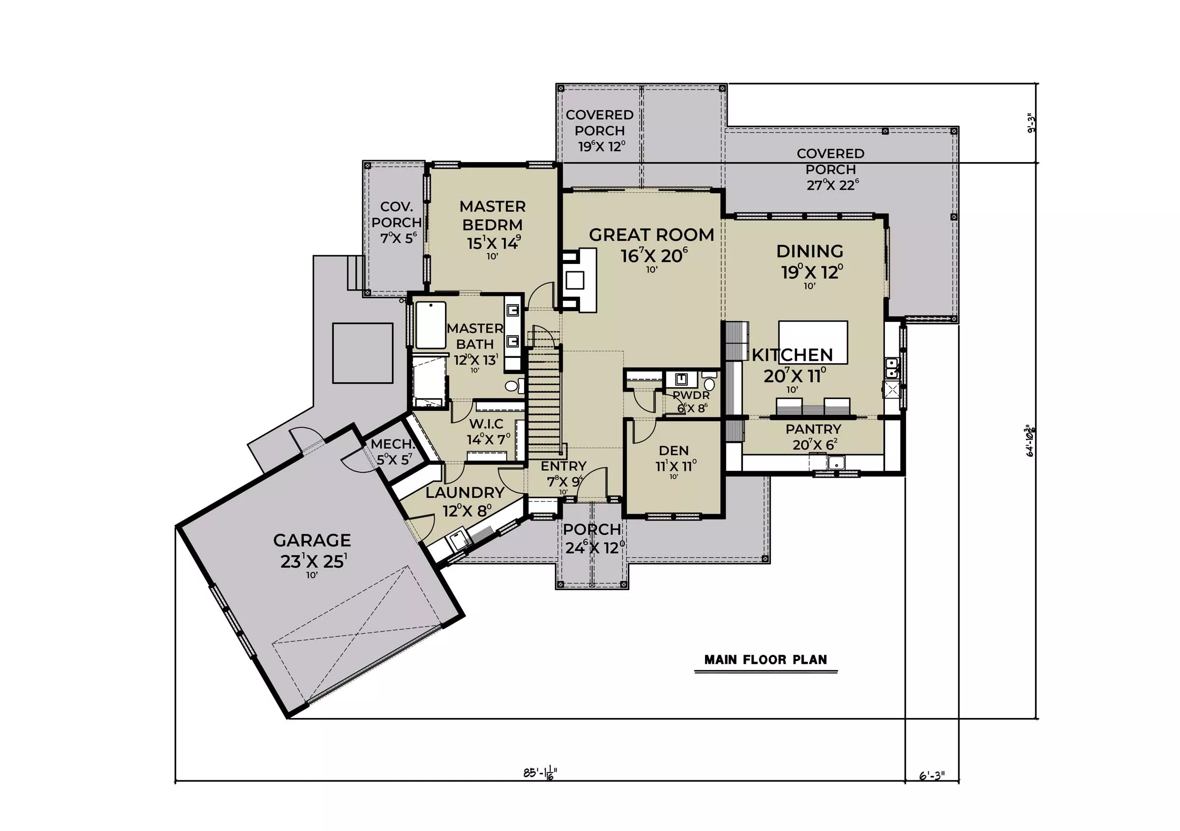
From the expansive covered front porch, your guests will enter your 3,250 heated sq.ft. 2 story home directly into a 10’ ceiling casual foyer, flanked by a den that could be used as a home office, a library to have a cup of morning coffee, or even as a guest suite.

The laundry room is situated perfectly by the family entrance from the 2 car garage (with a utility sink and a window). It also has the easy-access for the master closet, which is huge in today’s trends.

The master of the home will have a sigh of relief upon entering the spa-like retreat that has a large stand-alone tub with a picture window and an equally large shower. It’s also buffered by the stairwell of the home providing noise minimizing as well as additional privacy. The private covered porch is just the right spot for your morning coffee and quiet time, as well as a great nightly shared glass of wine as you wind down.

You can’t barely mention the kitchen without also immediately mentioning its to die for PANTRY. With 20’ x 6’, not only do you have ample cabinet space, your kitchen workspace is doubled with countertops as well as a window. It is separated by pocket doors, which will help keep your apron from snagging on a door knob right as you’re hurrying to get dinner on the table.

The expansive covered porches provide the perfect backdrop for family get-togethers for Easter egg hunts and summer Saturday bbqs.

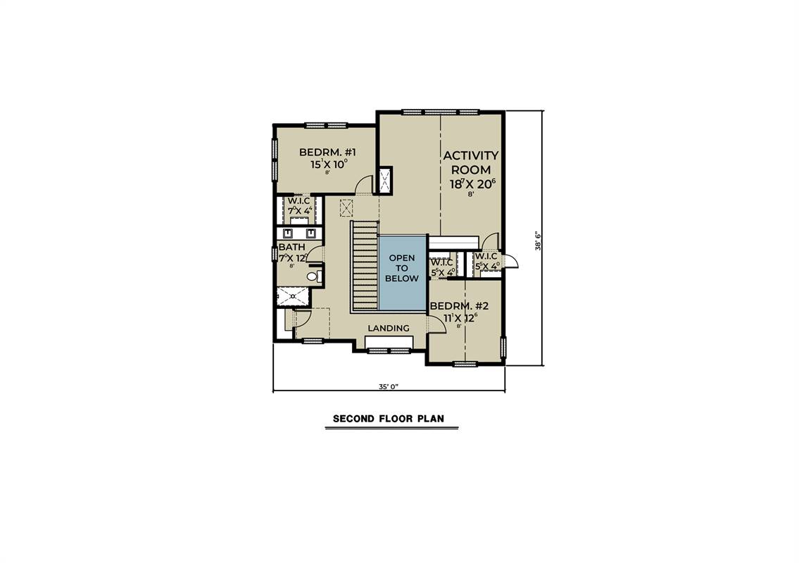
The upstairs has the two secondary bedrooms that share a hallway bath. There is an additional large walk-in closet off the huge flex room, a great place to keep board games and blankets for family movie and game nights. 

See All Plan Options
 

FEATURES & DETAILS

Kitchen features
Butler's Pantry
Kitchen Island
U-Shaped
Walk-in Pantry
Bedroom features
Double Vanity Sink
Primary Bdrm Main Floor
Separate Tub and Shower
Walk-in Closet
Exterior features
Covered Front Porch
Covered Rear Porch
Lot Options
Suited for view lot
Additional features
Dining Room
Fireplace
Great Room
Home Office
Laundry 1st Fl
Open Floor Plan
Rec Room
Vaulted Foyer
Garage Location
Front
Garage Options
Attached
Front-entry
3,866 Ft
2
Total Structure
3,250 Ft
2
Total Heated
2,133 Ft
2
1st Floor
1,117 Ft
2
2nd Floor
3
Bedrooms
2.5
Bathrooms
2
Garage
2
Stories
85' 0"
Width
64' 10"
Depth
35' 4"
Height
10' 0"
Main Floor Ceiling
8' 0"
Upper Floor Ceiling
2x6
Framing
Truss
Roof Framing
10:12
Primary Roof Pitch
12:12
Secondary Roof Pitch
Single
Dwelling Number

Unheated Living Space
616 Ft
2
Garage
708 Ft
2
Porch
 

Plan Package Options

 Select Plan Package
 Need To Reverse Plan? (Optional)
  Select Foundation Option
  Add-Ons (Optional)
INCLUDED WITH YOUR PURCHASE

Free Ground shipping in the U.S.

FREE

Home Building & Product Ideas Organizer

Sub Total
$0
Free Shipping
QUESTIONS OR NEED HELP ORDERING? LIVE CHAT OR CALL US AT 866-214-2242
Plan Packages

Each set of construction documents includes detailed, dimensioned floor plans, basic electric layouts, cross sections, roof details, cabinet layouts and elevations, as well as general IRC specifications. They contain virtually all of the information required to construct your home. The typical plan set does not include any plumbing, HVAC drawings, or engineering stamps due to the wide variety of specific needs, local codes, and climatic conditions. These details and specifications are easily obtained from your builder, contractors, and/or local engineers.

BEST PRICE GUARANTEE

Find the same house plan (modifications included!) and package for less on another site, show us the URL and we'll give you the difference plus an additional 10% back.

100% SATISFACTION GUARANTEE

We offer a one-time, 30-day exchange policy for unused, printed plan packages in the event you aren't satisfied with your first selection.

 
 

Plan 6579  Back to plan page

Loading...