Get discounts,
promos, see our
newest plans
and more!
+ 15% off any plan
See terms opt out anytime


No Thanks

Thanks for
signing up!


Use Code:

SIGNUP15

And save 15% off any plan!

Check your email for details.

CLOSE
Search Plans
Customer Reviews
     
20% Off House Plans Sitewide Ends Sunday
20% Off House Plans Sitewide Ends Sunday
20% Off House Plans Sitewide Ends Sunday

Code: HOLIDAY
Sale ends midnight 12/26/2025 PST

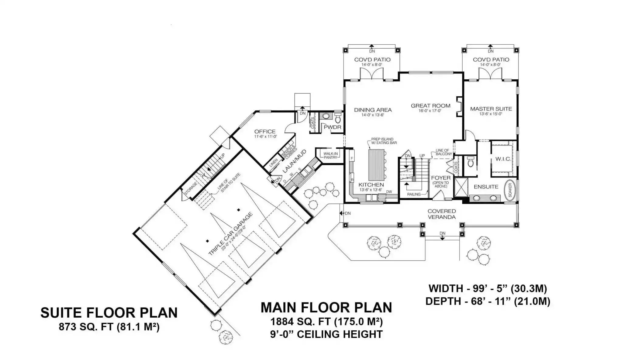
Stones River 4 Bedroom Craftsman Style House, Plan 2824

 
 

Sq Ft
3,292 FT²

Beds
4

Baths
3.5

Stories
2

Garage
3

Depth
68' 11"

Width
99' 4"
On Sale
$1,812.80
$2,266.00
© copyright by designer
 View All 8 Images | Photographs may reflect modified home
Sq Ft
3,292 FT²
Beds
4
Baths
3.5
Stories
2
Garage
3
Depth
68' 11"
Width
99' 4"
 
Click to Zoom In on Floor Plan
© copyright by designer
 
 

About This Plan

Stones River is a spacious 4,057 sq. ft. two-story Craftsman design that blends elegance and functionality. Featuring four bedrooms and 3.5 baths, this home is perfect for growing families or those who love to entertain. The primary suite, located on the first floor, offers privacy with its own covered patio access, while the remaining three bedrooms and a versatile bonus room are situated upstairs. The heart of the home is an open-concept living space that seamlessly connects the living, dining, and kitchen areas. A private office on the first floor provides a quiet retreat for work or study. Outdoor living is enhanced by a covered patio off the dining area. A three-car garage offers ample parking and includes additional living space above, ideal for a guest suite or studio. Stones River is the perfect blend of modern amenities and Craftsman charm. 

See All Plan Options
 

FEATURES & DETAILS

Kitchen features
Kitchen Island
L-Shaped
Peninsula / Eating Bar
Walk-in Pantry
Bedroom features
Double Vanity Sink
Primary Bdrm Main Floor
Separate Tub and Shower
Split Bedrooms
Walk-in Closet
Exterior features
Covered Front Porch
Covered Rear Porch
Lot Options
Suited for view lot
Additional features
Foyer
Great Room
Home Office
Laundry 1st Fl
Mud Room
Open Floor Plan
Storage Space
Vaulted Foyer
Garage Options
Attached
Front-entry
6,246 Ft
2
Total Structure
3,292 Ft
2
Total Heated
1,884 Ft
2
1st Floor
1,408 Ft
2
2nd Floor
1,884 Ft
2
Lower Floor
4
Bedrooms
3.5
Bathrooms
3
Garage
2
Stories
99' 4"
Width
68' 11"
Depth
28' 4"
Height
9' 0"
Main Floor Ceiling
8' 0"
Upper Floor Ceiling
2x6
Framing
Truss
Roof Framing
12/12
Primary Roof Pitch
5/12
Secondary Roof Pitch
Single
Dwelling Number
2nd Floor
Bonus Access

Unheated Living Space
1,070 Ft
2
Garage
224 Ft
2
Deck
873 Ft
2
Bonus Room
 

Plan Package Options

 Select Plan Package
Sale: $1,813
PDF Single Build
$2,266

Digital plans emailed to you in PDF format that allows for printing copies and sharing electronically with contractors, subs, decorators, and more. This package includes a license to build the home one time.

Sale: $1,813
Sale: $1,934
5 Printed Sets + PDF
$2,417

Digital plan emailed to you in PDF format that allows for printing copies on a home printer or local print shop and sharing with contractors, subs, decorators, and more. PLUS five printed sets shipped and delivered 3-5 business days.

Sale: $1,934
Sale: $3,367
CAD + PDF Single Build
$4,209

CAD files are a complete set of construction drawings delivered electronically. They can be used for any type of modification—including major design changes and engineering—and include a release granting permission to modify the plan. Most CAD plan orders are emailed the same or next business day.
 
This package also comes with a PDF set of plans and a copyright release for making modifications and printing unlimited copies.
 
CAD files are provided in .dwg format. For details on the specific CAD program used, please refer to the PLAN DETAILS section located above the floor plan on each plan’s page.

Sale: $3,367
Sale: $6,710
CAD + PDF Unlimited Build
$8,388

CAD files are a complete set of construction drawings delivered electronically. They can be used for any type of modification—including major design changes and engineering—and include a release granting permission to modify the plan. Most CAD plan orders are emailed the same or next business day.
 
This package also comes with a PDF set of plans and a multi-use building license, granting permission to construct the home an unlimited number of times, along with a copyright release for making modifications and printing unlimited copies.
 
CAD files are provided in .dwg format. For details on the specific CAD program used, please refer to the PLAN DETAILS section located above the floor plan on each plan’s page.

Sale: $6,710
 Need To Reverse Plan? (Optional)
$200
Readable Reverse

Reverse house plans with readable text and dimensions 

$200
  Select Foundation Option
  Add-Ons (Optional)
INCLUDED WITH YOUR PURCHASE

Free Ground shipping in the Continental U.S.

FREE

Design consultation with the architect or designer to discuss your plan

Home Building & Product Ideas Organizer

Sub Total
$0
Free Shipping
QUESTIONS OR NEED HELP ORDERING? LIVE CHAT OR CALL US AT 866-214-2242
Plan Packages

Each set of construction documents includes detailed, dimensioned floor plans, basic electric layouts, cross sections, roof details, cabinet layouts and elevations, as well as general IRC specifications. They contain virtually all of the information required to construct your home. The typical plan set does not include any plumbing, HVAC drawings, or engineering stamps due to the wide variety of specific needs, local codes, and climatic conditions. These details and specifications are easily obtained from your builder, contractors, and/or local engineers.

BEST PRICE GUARANTEE

find the same house plan (modifications included!) and package for less on another site, show us the URL and we'll give you the difference plus an additional 5% back.

100% SATISFACTION GUARANTEE

We offer a one-time, 30-day exchange policy for unused, non-electronic plan packages in the event you aren't satisfied with your first selection.

 
 

Plan 2824  Back to plan page

Loading...