Get discounts,
promos, see our
newest plans
and more!
+ 15% off any plan
See terms opt out anytime


No Thanks

Thanks for
signing up!


Use Code:

SIGNUP15

And save 15% off any plan!

Check your email for details.

CLOSE
Search Plans
Customer Reviews
     
22% Off House Plans Sitewide Ends Sunday

Code: SAVE22
Sale ends midnight 12/7/2025 PST

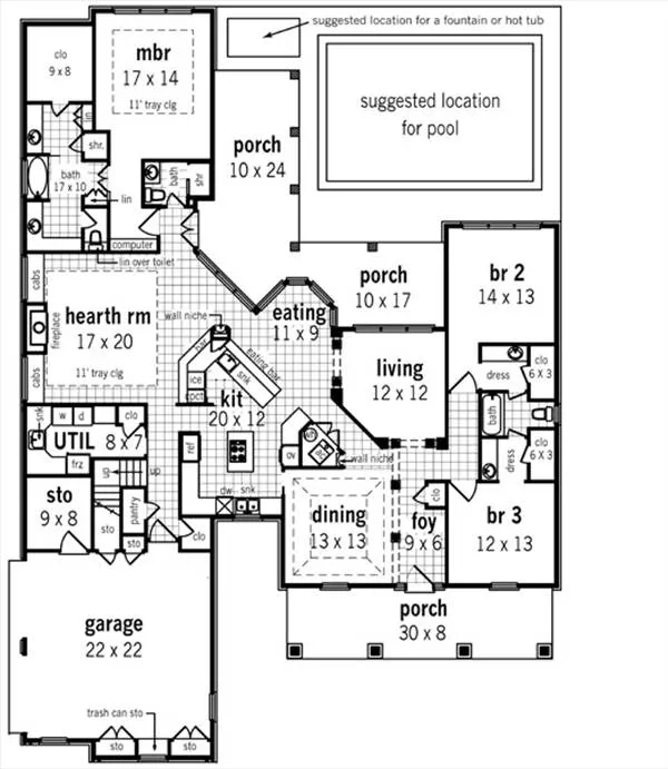
Sq Ft
2,643 FT²

Beds
3

Baths
2.5

Stories
1

Garage
2

Depth
87'

Width
62'
From
$1,200.00
EXCLUSIVE PLAN
© copyright by designer
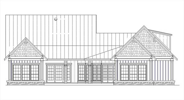
 View All 6 Images | Photographs may reflect modified home
Sq Ft
2,643 FT²
Beds
3
Baths
2.5
Stories
1
Garage
2
Depth
87'
Width
62'
 
Click to Zoom In on Floor Plan
© copyright by designer
 
 

About This Plan

This spectacular design has a kitchen that accomodates an eating bar, a wet bar, an island and a great view of the pool area. The kitchen overlooks the Hearth room which features a raised ceiling, fireplace and built-ins. A half bath is convenient to the hearth room and to the rear porch and pool area. 

See All Plan Options
 

FEATURES & DETAILS

Foundation Options
Slab
Lot Options
Suited for corner lot
Garage Location
Front
Garage Options
Attached
Side-entry
3,892 Ft
2
Total Structure
2,643 Ft
2
Total Heated
3
Bedrooms
2.5
Bathrooms
2
Garage
1
Stories
62' 0"
Width
87' 0"
Depth
26' 0"
Height
11' & 9'' 0"
Main Floor Ceiling
8'' 0"
Upper Floor Ceiling
2x4
Framing
Stick
Roof Framing
12/12
Primary Roof Pitch
4:12
Secondary Roof Pitch
Single
Dwelling Number

Unheated Living Space
489 Ft
2
Garage
98 Ft
2
Storage
662 Ft
2
Porch
342 Ft
2
Bonus Room
 

Plan Package Options

 Select Plan Package
$950
PDF Bid Set
PDFs NOW!™

Home plans stamped "NOT FOR CONSTRUCTION" for cost estimating and bidding purposes only; a minimum 5 set plan package must be purchased within 90 days for a license to build plan set; a credit will be applied towards your house plan upgrade

$950
$1,200
PDF Single Build
PDFs NOW!™

Digital plans emailed to you in PDF format that allows for printing copies and sharing electronically with contractors, subs, decorators, and more. This package includes a license to build the home one time.

$1,200
$1,235
4 Printed Sets

Four printed sets of construction drawings shipped and received in 3-5 business days

$1,235
$1,280
5 Printed Sets

Five Printed Sets of Residential Construction Drawings are typically 24” x 36” documents and come with a license to construct a single residence shipped to a physical address. Keep in mind PDF Plan Packages are our most popular choice which allows you to print as many copies as you need and to electronically send files to your builder, subcontractors, etc.

$1,280
$1,390
8 Printed Sets

Eight Printed Sets of Construction Drawings, typically 24” x 36” documents, with a license to construct a single residence shipped to your physical address. PDF Plan Packages are our most popular choice which allows you to print as many copies as you need and to electronically send files to your builder, subcontractors, bank/mortgage reps, material stores, decorators and more.

$1,390
$2,200
CAD + PDF Single Build

CAD files are a complete set of construction drawings delivered electronically. They can be used for any type of modification—including major design changes and engineering—and include a release granting permission to modify the plan. Most CAD plan orders are emailed the same or next business day.
 
This package also comes with a PDF set of plans and a copyright release for making modifications and printing unlimited copies.
 
CAD files are provided in .dwg format. For details on the specific CAD program used, please refer to the PLAN DETAILS section located above the floor plan on each plan’s page.

$2,200
 Need To Reverse Plan? (Optional)
$150
Readable Reverse

Reverse house plans with readable text and dimensions 

$150
  Select Foundation Option
  Add-Ons (Optional)
INCLUDED WITH YOUR PURCHASE

Free Ground shipping in the Continental U.S.

FREE

Design consultation with the architect or designer to discuss your plan

Home Building & Product Ideas Organizer

Sub Total
$0
Free Shipping
QUESTIONS OR NEED HELP ORDERING? LIVE CHAT OR CALL US AT 866-214-2242
Plan Packages

Each set of construction documents includes detailed, dimensioned floor plans, basic electric layouts, cross sections, roof details, cabinet layouts and elevations, as well as general IRC specifications. They contain virtually all of the information required to construct your home. The typical plan set does not include any plumbing, HVAC drawings, or engineering stamps due to the wide variety of specific needs, local codes, and climatic conditions. These details and specifications are easily obtained from your builder, contractors, and/or local engineers.

BEST PRICE GUARANTEE

find the same house plan (modifications included!) and package for less on another site, show us the URL and we'll give you the difference plus an additional 5% back.

100% SATISFACTION GUARANTEE

We offer a one-time, 30-day exchange policy for unused, non-electronic plan packages in the event you aren't satisfied with your first selection.

 
 

Plan 2300  Back to plan page

Loading...