Get discounts,
promos, see our
newest plans
and more!
+ 15% off any plan
See terms opt out anytime


No Thanks

Thanks for
signing up!


Use Code:

SIGNUP15

And save 15% off any plan!

Check your email for details.

CLOSE
Search Plans
Customer Reviews
     
America’s Top Home Plans
Trusted House Plans From America's Leading Architects & Designers

Sq Ft
2,850 FT²

Beds
3

Baths
2.5

Stories
2

Garage
3

Depth
52'

Width
73'
From
$972.00
© copyright by designer
 View All 16 Images | Photographs may reflect modified home
Sq Ft
2,850 FT²
Beds
3
Baths
2.5
Stories
2
Garage
3
Depth
52'
Width
73'
 
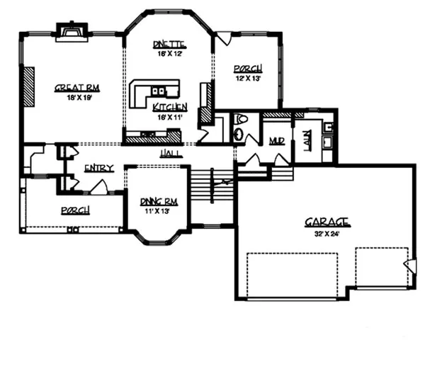
Click to Zoom In on Floor Plan
© copyright by designer
 
 

About This Plan

 

See All Plan Options
 

FEATURES & DETAILS

Kitchen features
Kitchen Island
Nook / Breakfast Area
Walk-in Pantry
Exterior features
Front Porch
Foundation Options
Basement
Daylight Basement
Additional features
Home Office
Garage Location
Front
Garage Options
Attached
Front-entry
2,850 Ft
2
Total Heated
1,596 Ft
2
1st Floor
1,254 Ft
2
2nd Floor
1,508 Ft
2
Lower Floor
3
Bedrooms
2.5
Bathrooms
3
Garage
2
Stories
73' 0"
Width
52' 0"
Depth
42' 0"
Height
9' 0"
Main Floor Ceiling
2x6
Framing
Truss
Roof Framing
10/12
Primary Roof Pitch
Single
Dwelling Number

Unheated Living Space
875 Ft
2
Garage
151 Ft
2
Porch
 

Plan Package Options

 Select Plan Package
  Select Foundation Option
  Add-Ons (Optional)
INCLUDED WITH YOUR PURCHASE

Free Ground shipping in the U.S.

FREE

Home Building & Product Ideas Organizer

Sub Total
$0
Free Shipping
QUESTIONS OR NEED HELP ORDERING? LIVE CHAT OR CALL US AT 866-214-2242
Plan Packages

Each set of construction documents typically includes detailed, dimensioned floor plans, basic electric layouts, cross sections, roof details, cabinet layouts, and elevations, as well as general IRC specifications. Please refer to the ARCHITECT or DESIGNER’S PLAN DETAILS link above the floor plan on any plan page to determine the specific details for each plan. Our house plans contain virtually all of the information required to construct your home. The typical plan set does not include plumbing, HVAC drawings, or engineering stamps due to the wide variety of specific needs, local codes, and climatic conditions. These details and specifications are easily obtained from your builder, contractors, and/or local engineers.

BEST PRICE GUARANTEE

Find the same house plan (modifications included!) and package for less on another site, show us the URL and we'll give you the difference plus an additional 10% back.

100% SATISFACTION GUARANTEE

We offer a one-time, 30-day exchange policy for unused, printed plan packages in the event you aren't satisfied with your first selection.

 
 

Plan 6169  Back to plan page

Loading...